Logo Passei Direto
Buscar
Material
páginas com resultados encontrados.
páginas com resultados encontrados.
left-side-bubbles-backgroundright-side-bubbles-background

Crie sua conta grátis para liberar esse material. 🤩

Já tem uma conta?

Ao continuar, você aceita os Termos de Uso e Política de Privacidade

Prévia do material em texto

6.
32
0.
15
3.
11
0.
15
2.
85
0.
15
0.
85
0.
15
1.
20
0.
15
2.
85
0.
15
3.
00
1.
30
0.
15
3.
29
0.
15
4.
03
1.65 0.15 1.95 0.15 0.90 0.20
0.15 1.00 0.50 0.15 3.00 0.20
0.20 1.45 0.15 2.10 0.90 0.20
4.
03
0.
15
3.
29
0.
15
1.
30
0.
15
2.
85
0.
15
2.
85
0.
15
1.
20
0.
15
0.
85
0.
15
2.
85
0.
15
3.
11
0.
15
6.
32
5.00
0.
15
3.
38
0.
50
19
.6
5
0.
50
5.
67
0.
15
30
.0
0
0.
15
3.
38
0.
50
19
.6
5
0.
50
5.
67
0.
15
0.20 4.60 0.20
P2
P4
P3
P4
P3
P3
P1
J1
J1
J1
J1
B1
B1
B1
J1
11.18 m²
Suite
2.54 m²
Banheiro 1
5.56 m²
Quarto 1
5.56 m²
Quarto 2
7.52 m²
Hall
2.34 m²
Banheiro 2
1.79 m²
A. Serviço
8.69 m²
Cozinha
14.31 m²
Sala
A
A
B B
P5
35
%
35
%
35%
0.
90
2.
10
3.
20
0.
90
2.
10
0.
90
3.
20
0.
15
4.
63
2.
70
0.
90
3.
74 3
.7
44.
28
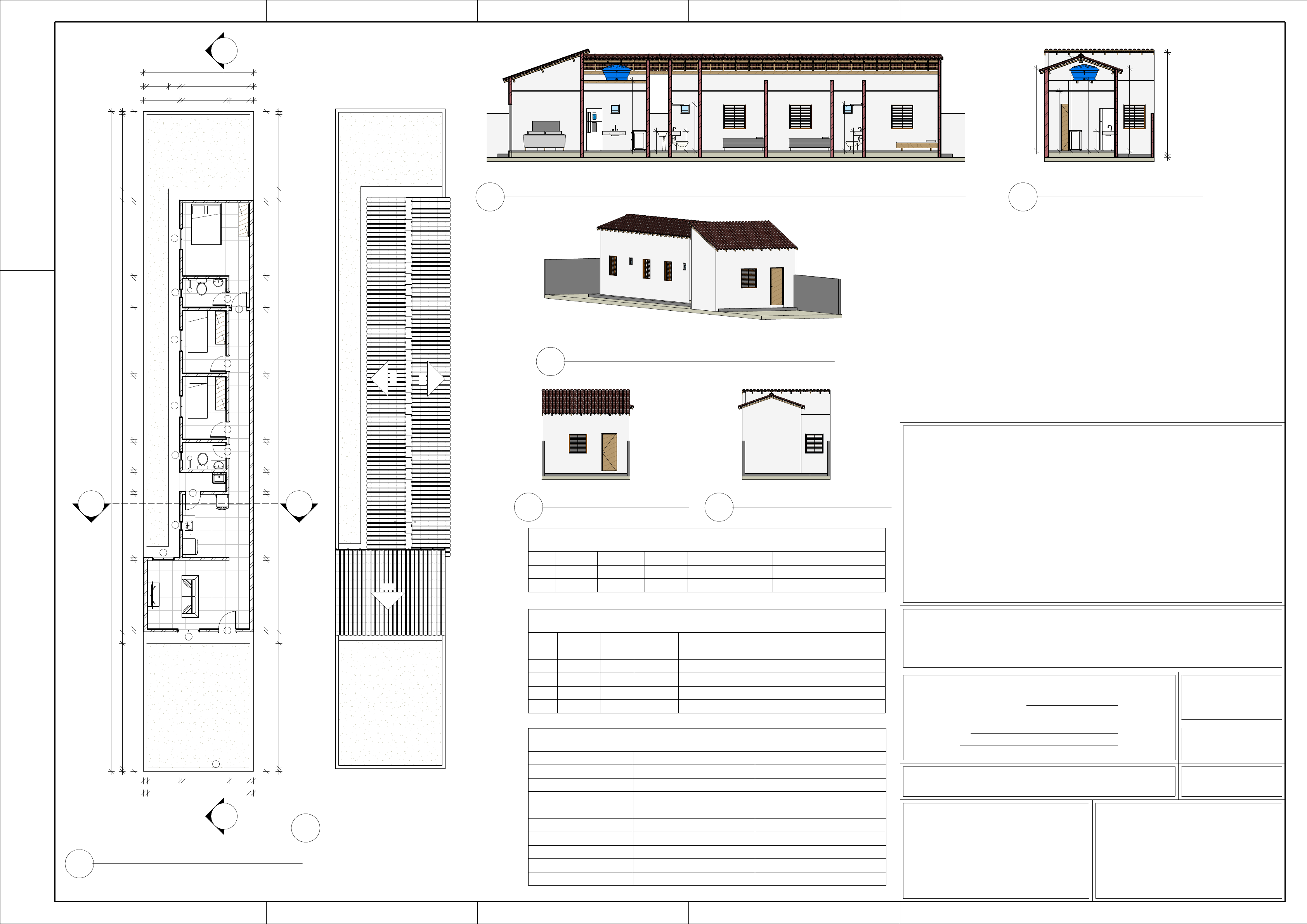
 1 : 100
Planta de Baixa
1
 1 : 100
Cobertura e Locação
2
 1 : 100
Corte AA
3 1 : 100
Corte BB
4
Perspectiva
5
Tabela de Ambiente
Nome Área Perímetro
A. Serviço 1.79 m² 5.90
Banheiro 1 2.54 m² 6.50
Banheiro 2 2.34 m² 6.30
Cozinha 8.69 m² 12.00
Hall 7.52 m² 18.50
Quarto 1 5.56 m² 9.60
Quarto 2 5.56 m² 9.60
Sala 14.31 m² 15.42
Suite 11.18 m² 15.49
Tabela de Janelas
Cód. Quant. Altura Largura Altura do Peitoril Descrição
J1 5 1.10 1.00 1.00 Janela de Madeira
B1 3 0.40 0.40 1.70 Basculante de Vidro
Tabela de Portas
Cód. Quant. Altura Largura Descrição
P1 1 2.10 0.80 Porta de Madeira
P2 1 2.10 0.70 Porta de Madeira
P3 3 2.10 0.70 Porta de Compensado
P4 2 2.10 0.60 Porta de Compensado
P5 1 2.10 3.00 Portão de Metal
PRANCHA:
TAXA DE OCUPAÇÃO :
TAXA DE SOLO NATURAL :
ÁREA DO TERRENO :
ÁREA DE PROJEÇÃO DO TELHADO :
DATA:
NÚMERO DA FOLHA:
PROPRIETÁRIO: RESPONSÁVEL TÉCNICO:
ÁREA DE CONSTRUÇÃO DO PAVIMENTO TÉRREO :
ESCALA:
Memorial Descritivo
01-PISO -CERÂMICA CERBRÁS, MODELO ARARIPE 46x46, COR CINZA 
-REVESTIMENTO W.C-CERÂMICA SIMILAR AO PISO, COR CINZA COM 
ALTURA DE 1,60m, COZINHA COM 4 PEÇAS SOBRE A PIA
02-LOUÇA SANITÁRIA, COR BRANCO, C/ DESCARGA ACOPLADA 
03-TORNEIRAS DAS PIAS DA COZINHA E BANHEIRO - EM METAL CROMADO MARCA JED
04-BANCADAS EM GRANITO VERDE UBATUBA
05-COBERTURA- EM MADEIRA QUADRADA APARELHADA, C/ TELHA CERAMICA ACERT OU 
SIMILAR, INCL=35%
06-ESQUADRIAS - EXTERNAS -MADEIRA (PORTAS E JANELAS) -VIDRO (BASCULANTES)
- INTERNAS- MADEIRA COMPENSADA (PORTAS)
07-PINTURA -TINTA VERBRAS COR BRANCA (INTERNA)
-TINTA VERBRAS COR BRANCA (EXTERNA) 
08-ALVENARIA - REBOCADA, EMASSADA NAS ÁREAS INTERNAS
09-CAIXA D'ÁGUA-DE FIBRA CAPACIDADE 500L, (VER CORTES)
10-SOLEIRAS- EM GRANITO VERDE UBATUBA (PORTAS, JANELAS)
11-TOMADAS E INTERRUPTORES- MARCA PLUZIE, MODELO SIMPLES
12-FORRO EM GESSO LISO SEM PINTURA 
PROJETO ARQUITETÔNICO
RUA JOSÉ GOMES DE ARAUJO, LOTE J, QUADRA 111, LOTEAMENTO PLANALTO, BAIRRO
CONSELHEIRO ALBERTO SILVA, PARNAÍBA - PI
150.00m²
68.00m²
81.00m²
54.67%
45.33%
Como Indicado
07/08/2023
P. 01PLANTA BAIXA, PLANTA DE LOCAÇÃO E COBERTURA,CORTES, FACHADAS, PERSPECTIVA E SITUAÇÃO
0
0
CAIO BESSA DE OLIVEIRA
1919137696
1 : 125
Fachada Posterior
61 : 125
Fachada Frontal
7

Mais conteúdos dessa disciplina