Logo Passei Direto
Buscar
Material
páginas com resultados encontrados.
páginas com resultados encontrados.
left-side-bubbles-backgroundright-side-bubbles-background

Crie sua conta grátis para liberar esse material. 🤩

Já tem uma conta?

Ao continuar, você aceita os Termos de Uso e Política de Privacidade

Prévia do material em texto

0,0
0,0
ViaVia
Calçada
Alinhamento
do imóvel
Calçada
Alinhamento
do imóvel
Comprimento da faixa
0,0
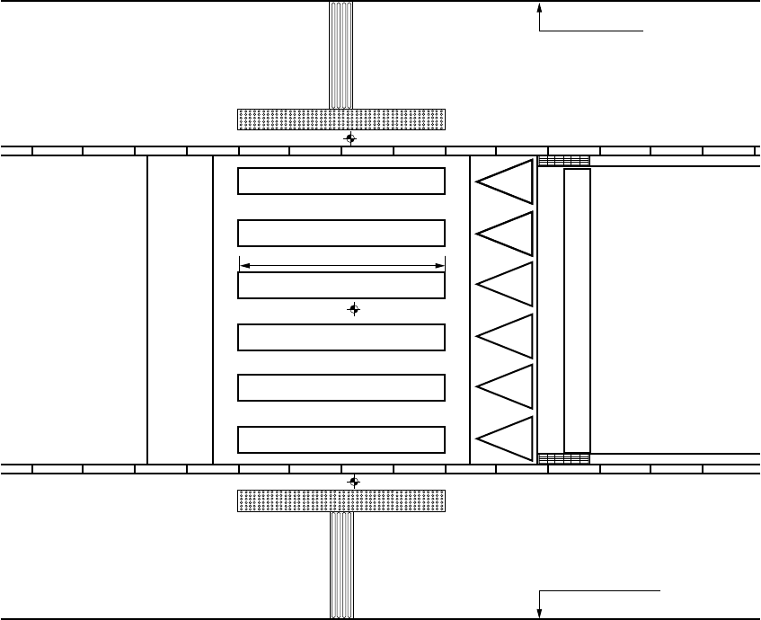
Figura 92 – Faixa elevada para travessia – Exemplo – Vista superior
6.12.7.3 Rebaixamento de calçadas 
Os rebaixamentos de calçadas devem ser construídos na direção do fluxo da travessia de pedestres. 
A inclinação deve ser constante e não superior a 8,33 % (1:12) no sentido longitudinal da rampa 
central e na rampa das abas laterais. A largura mínima do rebaixamento é de 1,50 m. O rebaixamento 
não pode diminuir a faixa livre de circulação, de no mínimo 1,20 m, da calçada, conforme Figura 93.
79
ABNT NBR 9050:2015
© ABNT 2015 - Todos os direitos reservados

Mais conteúdos dessa disciplina