Logo Passei Direto
Buscar
Material
páginas com resultados encontrados.
páginas com resultados encontrados.
left-side-bubbles-backgroundright-side-bubbles-background

Experimente o Premium!star struck emoji

Acesse conteúdos dessa e de diversas outras disciplinas.

Libere conteúdos
sem pagar

Ajude estudantes e ganhe conteúdos liberados!

Prévia do material em texto

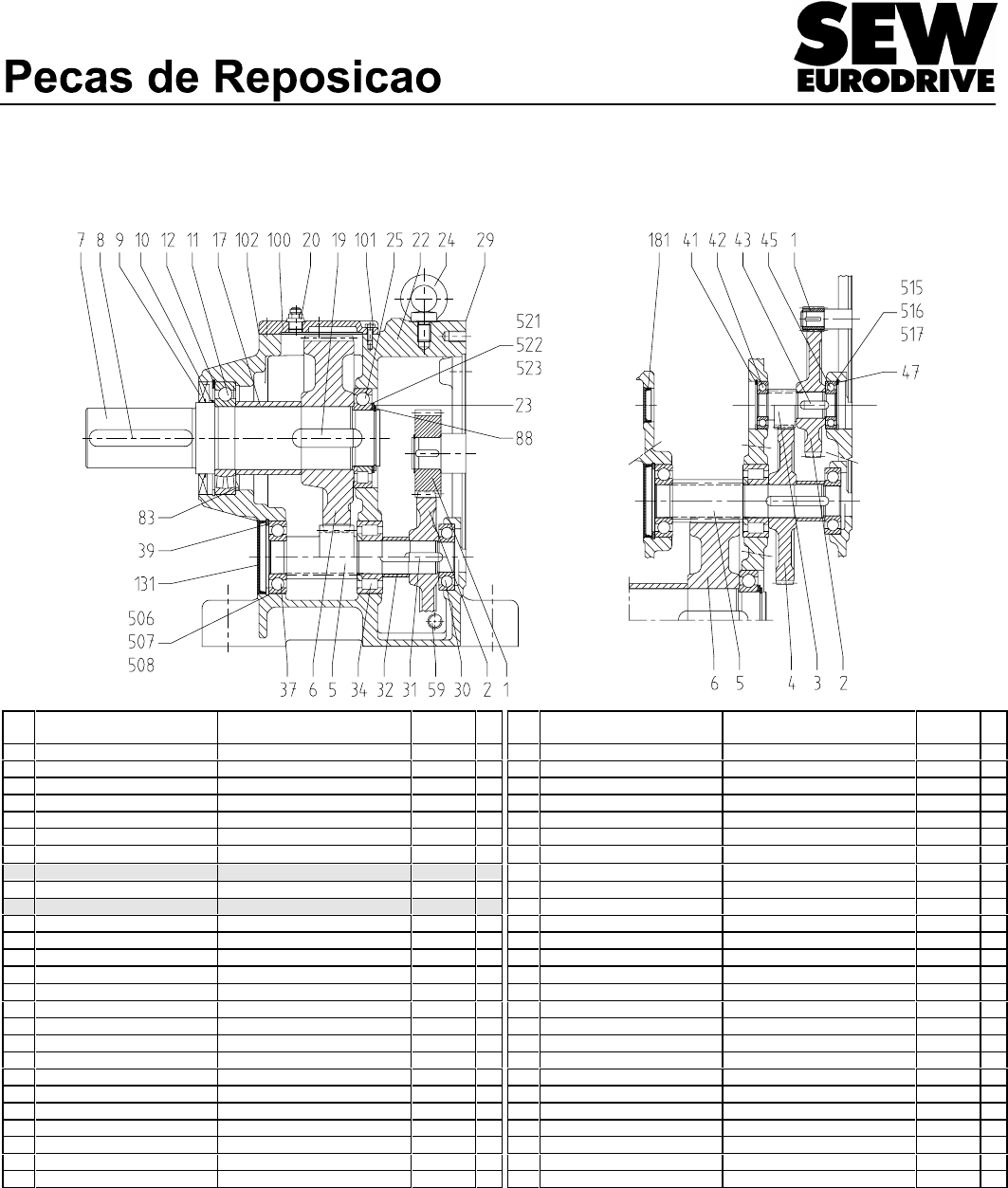
Redutor de engrenagens helicoidais 01 252 296 
R77A 
 
 
 
Execução com 2 estágios Execução com 3 estágios 
 
 
 
Nº 
 
Denominção Designação DIN Código Pç. Nº 
 
Denominção Designação DIN Código Pç. 
1 Pinhão * 1 32 Distanciador 641 104 5 1 
2 Engrenagem * 1 34 Rolamento rolos cil BC1-0312 013 695 6 1 
3 Eixo pinhão * 1 37 Rolamento de esferas DIN625 6304 010 508 2 1 
4 Engrenagem * 1 39 Anel de retenção DIN472 52x2 010 319 5 1 
5 Eixo pinhão * 1 41 Anel de retenção DIN472 47x1,75 010 318 7 1 
6 Engrenagem * 1 42 Rolamento de esferas DIN625 6303 010 507 4 1 
7 Eixo de saída . 40x80 mm 641 144 4 1 43 Chaveta DIN6885 B 6x6x12-55HRC 013 483 X 1 
7 Eixo de saída (pol.) . 1.625x3.15 in. 641 145 2 1 45 Rolamento de esferas DIN625 6303 010 507 4 1 
8 Chaveta DIN6885 A 12x8x70-C45K 010 034 X 1 47 Anel de retenção DIN472 47x1,75 010 318 7 1 
8 3/8x3/8x2-1/4 in. 806 924 7 1 59 Bujão M12x1,5 011 430 8 5 
9 Retentor BA-SF 52x100x10/7-NBR 017 784 9 1 83 Anel Nilos b) 6309 AV 010 721 2 1 
10 Retentor a) B1-SF52x94x8/11,5-FPM 017 429 7 1 88 Anel de retenção DIN471 40x1,75 010 283 0 1 
11 Rolamento de esferas DIN625 6309-Z-J 010 526 0 1 100 Tampa do redutor 641 254 8 1 
11 Rolam<utocomp.rolos b) DIN635 213 09E 011 091 4 1 101 Parafuso sextavado ISO4017 M 6x16-8.8 010 105 2 8 
12 Anel de retenção DIN472 100x3 010 327 6 1 102 Junta 643 505 X 1 
17 Distanciador 641 103 7 1 131 Tampão 52x7 012 443 5 1 
19 Chaveta DIN6885 B 14x9x40-55HRC 010 060 9 1 181 Tampão 24x7 012 444 3 1 
20 Válvula de respiro M12x1,5-MS 013 031 1 1 506 Arruela de ajuste DIN988 42x52x0,1 010 375 6 X) 
22 Carcaça 641 111 8 1 507 Arruela de ajuste DIN988 42x52x0,3 010 399 3 X) 
23 Arruela de encosto DIN988 S 40x50x2,5 010 352 7 1 508 Arruela de ajuste DIN988 42x52x0,5 012 041 3 X) 
24 Parafuso olhal DIN580 M 10 010 229 6 1 515 Arruela de ajuste DIN988 37x47x0,1 010 373 X X) 
25 Rolamento de esferas DIN625 6208 010 490 6 1 516 Arruela de ajuste DIN988 37x47x0,3 010 397 7 X) 
25 Rolamento rolos cil b) DIN5412 NUP 208E 013 697 2 1 517 Arruela de ajuste DIN988 37x47x0,5 012 340 4 X) 
29 Cola e mat vedação 910 255 8 X) 521 Arruela de ajuste DIN988 40x50x0,1 010 374 8 X) 
30 Rolamento de esferas DIN625 6304 010 508 2 1 522 Arruela de ajuste DIN988 40x50x0,3 010 398 5 X) 
31 Chaveta DIN6885 B 8x7x18-55HRC 013 485 6 1 523 Arruela de ajuste DIN988 40x50x0,5 012 346 3 X) 
 
Peças com dimensoes em polegadas sao escritas em itálico, sobre fundo cinzento. 
 
* Os engrenamentos tem seu código gravado. Informar sempre este código 
X) Conforme necessidade 
a) Vedação dupla 
b) Rolamentos reforçados 
 
Em caso de pedido de peças de reposição, mencionar o inscrito na plaqueta, denominação, código e número de fabricação. 
Nos motoredutores são flangeados motores, variadores ou tampas especiais. Peças de reposição para estes vide lista à parte 
 
 
08/1999 Reservâmo-nos todos os direitos sobre estes dados técnicos. Todos os direitos reservados conforme DIN 34.

Mais conteúdos dessa disciplina