Logo Passei Direto
Buscar
Material
páginas com resultados encontrados.
páginas com resultados encontrados.
left-side-bubbles-backgroundright-side-bubbles-background

Crie sua conta grátis para liberar esse material. 🤩

Já tem uma conta?

Ao continuar, você aceita os Termos de Uso e Política de Privacidade

Prévia do material em texto

A
B
C
8 97654320 1
D
F
G
H
13121110
E
K
17161514 18
A
B
C
D
F
G
H
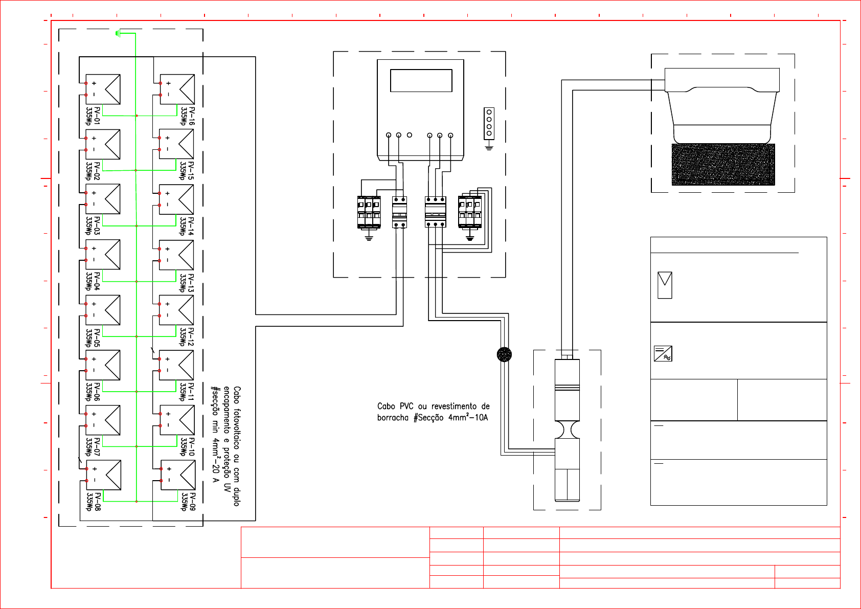
DIAGRAMA FUNCIONAL
CONTEÚDO
Tatiane Costa
TITULO:
Projetista
Data
3CVPotência bomba
Inversor 3 HP 2,2kW
Sistema solar de bombeamento de água - 3CV
Centro de Estudos Avançados de Promoção Social e Ambiental
Arquivo:
Projeto Saúde e Alegria
Projeto_Bombeamento_3CV_RV00
02
01
DE :
FOLHA :
Sistema de bombeamento de água solar - 3CV
E
I
J
K
L
I
J
L
SIMBOLOGIA
Vmpp: 37,3V Isc: 9,22A Impp: 8,89A
Vm: 1000V
DPS Classe II
min=600V ou 1000V
proteção UV (se possível)
A extensão dos módulos até o conversor de 
Tolerância: 0% a +5% Voc: 47V
Potência máxima (Pmax): 335Wp
Tipo de célula: Silício Policristalino
Dimensões painel: 1970 x 992 x 40mm 
Eficiência: 17,3%
220V 50/60Hz 
Alimentação 1 fase
Corrente de saída nominal de 10A
Inversor de frequência 3HP - 2,2kW
Fotovoltaico ou com duplo encapamento, 
Cabo CC
Conversor de
frequência
R S T U V W
Armazenador de água
+ -
+
-
+ -
Material do caderno de especificações técnicas de projetos off-grid
Bomba de 3 CV -
Trifásica/220V
Chave de transferência
opcional - Solar/Diesel
Sistema de condicionamento
de potência e proteção
*Inserção de sensor de
nível de água (bóia)
com instalação de
acordo com o manual
do conversor de
frequência
220V
*verificar no manual do
conversor de frequência o
tipo de ligação (fase-fase)
Sistema fotovoltaico
16 módulos de 335Wp
Conexão mista (série/paralelo)
Disjuntor
25 Ac.c.
DPS 600 Vc.c.
40kA
Disjuntor
15 Ac.a.
DPS 275 Vc.a.
40kA/65kA
Barra de
aterramento
Proteção CC Proteção CA
min=40kA ou 65kA
DPS Classe II
275V 40/65kA
Disjuntor 15A
frequência adotar cabo de secção min de 4mm² ou 6mm² 
Secção de 4mm² para distâncias acima de 50 até 160m
Revestimento de PVC ou borracha (70°C)
Cabo CA - Imax=12A
14/10/2019
Secção de 6mm² para distâncias acima de 160 até 250m
Maiores distâncias ou correntes no circuito requer novo
dimensionamento e projeto
Tensão elétrica Trifásico/220V
Disjuntor 25A

Mais conteúdos dessa disciplina