Logo Passei Direto
Buscar
Material
páginas com resultados encontrados.
páginas com resultados encontrados.
left-side-bubbles-backgroundright-side-bubbles-background

Crie sua conta grátis para liberar esse material. 🤩

Já tem uma conta?

Ao continuar, você aceita os Termos de Uso e Política de Privacidade

left-side-bubbles-backgroundright-side-bubbles-background

Crie sua conta grátis para liberar esse material. 🤩

Já tem uma conta?

Ao continuar, você aceita os Termos de Uso e Política de Privacidade

Prévia do material em texto

1. Comprando quatro artigos numa loja de materiais para construção, uma pessoa tem para cada 
artigo as seguintes informações: 
• Nome; 
• Preço; 
• Percentual de Desconto; 
Tendo isso em vista, calcule o valor de desconto e o valor da mercadoria. Por fim, mostre um 
relatório do total arrecadado pela loja. 
 
2. No supermercado, foi comprado: 
• N kg de café com custo unitário Q. 
• L litros de leite com custo unitário P. 
• B Quilos de banana com custo unitário T. 
Crie a planilha: nome do produto, total gasto em cada produto e total das compras no mercado. 
 
3. Com dez números em mãos, faça uma planilha Excel que: 
• Determine a soma dos dez números. 
• Determine a raiz quadrada do produto dos dez números 
• Encontre o maior e o menor número dos dez. 
• Encontre a média. 
Para este itens deverão ser utilizadas as respectivas funções do Excel que dizem 
respeito a cada um deles. 
 
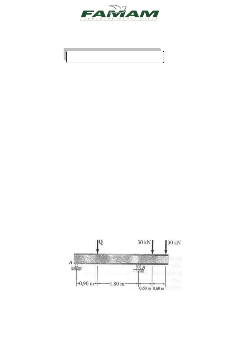
4. Três cargas são aplicadas a uma viga. A viga é apoiada em um rolete (apoio simples) em A e em 
uma articulação em B. Desprezando o peso da viga, desenvolva uma planilha que calcule as 
reações A e B para qualquer valor de Q. 
 
 
5. Faça uma planilha que forneça o valor da temperatura em Fahrenheit e Kelvin, a partir da 
temperatura em Graus Celsius. 
 
6. Elaborar a planilha abaixo, fazendo-se o que se pede: Fazer uma folha de pagamento e calcular o 
novo salário, baseado no aumento. Se o salário for menor ou igual a R$ 1.000,00, aumento de 
40%. Se for maior que R$ 1.000,00, aumento de 30%. Os valores R$ 360,00 e R$ 1.260,00 da 
primeira linha também deverão ser calculados. 
Nome:_____________________________________________ Data: ___/___/______ 
Curso:___________________ Turma:________ Computação Gráfica 
Professor: Walter Souza 
 
Atividade Avaliativa 01 
 
 
7. A escola Tio Sam de Idiomas cobra as seguintes mensalidades dos alunos: Nível I = R$ 51,50; 
Nível II = R$ 65,00; Nível III = R$ 80,00; Nível IV = R$ 100,00. Para os alunos que pagam as 
mensalidades até o dia 1º de cada mês, tem um desconto de 15%, para os que pagam até dia 5, 
desconto de 10% e, para os que pagam até o dia 10 de cada mês, desconto de 3,89%. Monte 
uma planilha para saber o valor do desconto e valor final de cada mensalidade. 
8. No Auto Posto Enche o Tanque, cobram-se os seguintes preços de combustíveis com prazo de 20 
dias: gasolina comum = R$ 2,992; álcool = R$ 2,1095; diesel = R$ 2,283; gasolina aditivada = R$ 
3,054. Para pagamentos à vista têm-se um desconto de 5,3% e para cheques pré-datados acima 
de 21 dias, cobra-se um acréscimo de 8,9%. Monte uma planilha para exibir o preço dos 
combustíveis à vista e à prazo. 
9. Elaborar a planilha abaixo, fazendo-se o que se pede: 
Empresa Borborema 
 
Código Produto Jan Fev Mar Total 1º Trim. Máximo Mínimo Média 
1 Porca 4.500,00 5.040,00 5.696,00 
2 Parafuso 6.250,00 7.000,00 7.910,00 
3 Arruela 3.300,00 3.696,00 4.176,00 
4 Prego 8.000,00 8.690,00 10.125,00 
5 Alicate 4.557,00 5.104,00 5.676,00 
6 Martelo 3.260,00 3.640,00 4.113,00 
 
Totais 
 
Código Produto Abr Mai Jun Total 2º Trim. Máximo Mínimo Média 
1 Porca 6.265,00 6.954,00 7.858,00 
2 Parafuso 8.701,00 9.658,00 10.197,00 
3 Arruela 4.569,00 5.099,00 5.769,00 
4 Prego 12.341,00 12.365,00 13.969,00 
5 Alicate 6.344,00 7.042,00 7.957,00 
6 Martelo 4.525,00 5.022,00 5.671,00 
 
Totais 
 
Total do Semestre

Mais conteúdos dessa disciplina