Logo Passei Direto
Buscar
Material
páginas com resultados encontrados.
páginas com resultados encontrados.
left-side-bubbles-backgroundright-side-bubbles-background

Crie sua conta grátis para liberar esse material. 🤩

Já tem uma conta?

Ao continuar, você aceita os Termos de Uso e Política de Privacidade

Prévia do material em texto

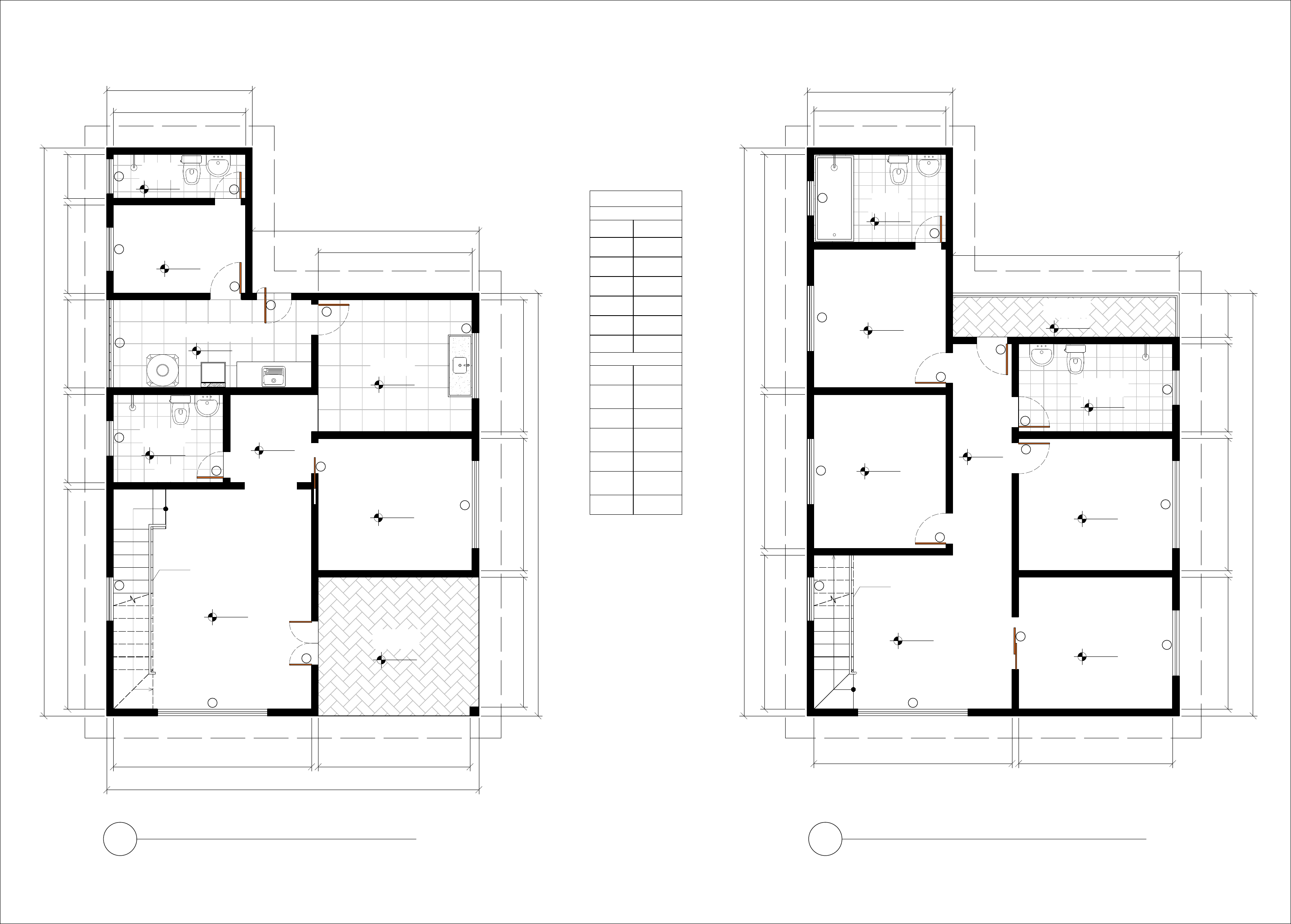
<p>ÁREA DE SERVIÇO</p><p>Area = 9.00m²</p><p>QUARTO DE</p><p>SERVIÇO</p><p>Area = 6.00m²</p><p>BANHO</p><p>Area = 3.00m²</p><p>COZINHA</p><p>Area = 10.50m²</p><p>ESCRITÓRIO</p><p>Area = 10.50m²</p><p>TERRAÇO</p><p>Area = 11.46m²</p><p>SALA</p><p>Area = 22.50m²</p><p>BANHEIRO</p><p>Area = 5.00m²</p><p>HALL</p><p>Area = 3.70m²</p><p>+ 0.13</p><p>+ 0.15</p><p>+ 0.15</p><p>+ 0.13</p><p>+ 0.13</p><p>+ 0.15</p><p>+ 0.13</p><p>+ 0.13</p><p>0102</p><p>03</p><p>04</p><p>05</p><p>06</p><p>07</p><p>08</p><p>09</p><p>10</p><p>11</p><p>12</p><p>13</p><p>14</p><p>15</p><p>1</p><p>,</p><p>0</p><p>0</p><p>2</p><p>,</p><p>0</p><p>0</p><p>2</p><p>,</p><p>0</p><p>0</p><p>2</p><p>,</p><p>0</p><p>0</p><p>5</p><p>,</p><p>0</p><p>0</p><p>3,00</p><p>3,30</p><p>5,15</p><p>3,50</p><p>9</p><p>,</p><p>6</p><p>0</p><p>2</p><p>,</p><p>9</p><p>5</p><p>3</p><p>,</p><p>0</p><p>0</p><p>3</p><p>,</p><p>0</p><p>0</p><p>2,50</p><p>1,20</p><p>0</p><p>,</p><p>9</p><p>0</p><p>0</p><p>,</p><p>9</p><p>0</p><p>E=0.18</p><p>P=0.29</p><p>1</p><p>2</p><p>,</p><p>9</p><p>0</p><p>4,50 3,45</p><p>8,45</p><p>PLANTA BAIXA - PAV. TÉRREO</p><p>ESC: 1/50</p><p>01</p><p>+ 0.15</p><p>PROJEÇÃO DA COBERTA PROJEÇÃO DA COBERTA</p><p>QUARTO</p><p>Area = 10.50m²</p><p>+ 3.05</p><p>BIBLIOTECA</p><p>Area = 10.50m²</p><p>+ 3.05</p><p>BANHEIRO</p><p>Area = 7.00m²</p><p>+ 3.03</p><p>VARANDA</p><p>Area = 5.15m²</p><p>+ 3.03</p><p>SUÍTE</p><p>Area = 9.45m²</p><p>+ 3.05</p><p>BANHO</p><p>Area = 6.00m²</p><p>+ 3.03</p><p>QUARTO</p><p>Area = 10.50m²</p><p>+ 3.05</p><p>SALA</p><p>Area = 15.75m²</p><p>+ 3.05</p><p>CIRC.</p><p>Area = 6.48m²</p><p>+ 3.05</p><p>PLANTA BAIXA - PAV. SUPERIOR</p><p>ESC: 1/50</p><p>02</p><p>14</p><p>0</p><p>,</p><p>9</p><p>0</p><p>15</p><p>E=0.18</p><p>P=0.29</p><p>D</p><p>e</p><p>s</p><p>c</p><p>e</p><p>S</p><p>o</p><p>b</p><p>e</p><p>5</p><p>,</p><p>3</p><p>0</p><p>3</p><p>,</p><p>5</p><p>0</p><p>3</p><p>,</p><p>5</p><p>0</p><p>4,50 3,50</p><p>3</p><p>,</p><p>0</p><p>0</p><p>3</p><p>,</p><p>0</p><p>0</p><p>2</p><p>,</p><p>0</p><p>0</p><p>1</p><p>,</p><p>0</p><p>0</p><p>5,15</p><p>3,00</p><p>3,30</p><p>1</p><p>2</p><p>,</p><p>9</p><p>0</p><p>9</p><p>,</p><p>6</p><p>0</p><p>ITEM</p><p>MEDIDAS</p><p>P1</p><p>P2</p><p>1.00 x 2.10</p><p>PORTAS</p><p>JANELAS</p><p>J1</p><p>J2</p><p>ITEM MEDIDAS</p><p>2.50 x 1.50/ 0.60</p><p>0.70 x 2.10</p><p>1.00x 1.00/ 1.10</p><p>P3</p><p>0.60 x 2.10</p><p>J3</p><p>J4</p><p>2.00 x 1.50/ 0.60</p><p>0.80 x 0.60/ 1.50</p><p>QUADRO DE ESQUADRIAS</p><p>P1</p><p>P2</p><p>P3</p><p>P4</p><p>P5</p><p>P4</p><p>P3</p><p>P4</p><p>0.70 x 2.10</p><p>P5</p><p>0.80 x 2.10</p><p>J1</p><p>J2</p><p>J4</p><p>J3</p><p>J5</p><p>J6</p><p>J2</p><p>J4</p><p>J5</p><p>J6</p><p>1.50 x 1.00/ 1.10</p><p>2.00 x 1.00/ 1.10</p><p>J1</p><p>J2</p><p>J5</p><p>J3</p><p>J4</p><p>J4</p><p>J5</p><p>J5</p><p>P6</p><p>1.20 x 2.10</p><p>P6</p><p>P4</p><p>P4</p><p>P4</p><p>P4</p><p>P4</p><p>P3</p><p>Sheets and Views</p><p>FOLHA A2</p>

Mais conteúdos dessa disciplina