Logo Passei Direto
Buscar
Material
páginas com resultados encontrados.
páginas com resultados encontrados.
left-side-bubbles-backgroundright-side-bubbles-background

Crie sua conta grátis para liberar esse material. 🤩

Já tem uma conta?

Ao continuar, você aceita os Termos de Uso e Política de Privacidade

Prévia do material em texto

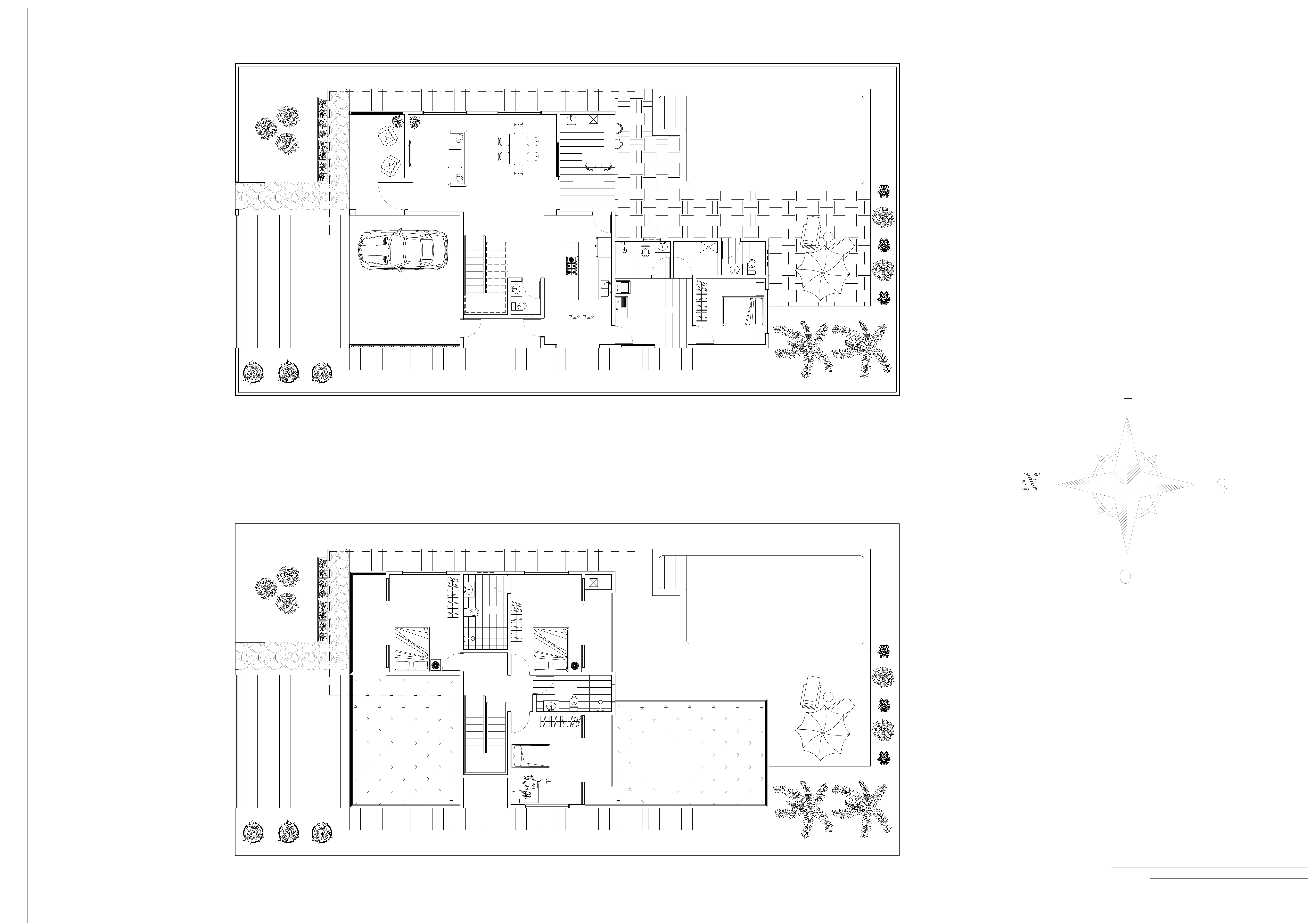
<p>TÉRREO</p><p>PAVIMENTO SUPERIOR</p><p>QUARTO 1</p><p>WC SOCIAL</p><p>SUÍTE</p><p>WC SUÍTE</p><p>QUARTO 2</p><p>VARANDA VARANDA</p><p>VARANDA</p><p>HALL</p><p>TELHADO JARDIM</p><p>TETO JARDIM</p><p>ÁREA: 28.37 M²</p><p>ÁREA: 12.94 M²</p><p>ÁREA: 4.86 M² ÁREA: 31.74 M²</p><p>ÁREA: 5.63 M²</p><p>ÁREA: 6.10 M²</p><p>ÁREA: 14.08 M²</p><p>ÁREA: 6.60 M²</p><p>ÁREA: 6.78 M²</p><p>ÁREA: 14.08 M²</p><p>ÁREA: 4.27 M²</p><p>GARAGEM</p><p>VARANDA SALA DE ESTAR</p><p>SALA DE JANTAR ÁREA GOURMET</p><p>COZINHA</p><p>ÁREA DE SERVIÇO</p><p>DEPÓSITOWC SERVIÇO</p><p>QUARTO SERVIÇO</p><p>WC LAZER</p><p>LAVABO</p><p>ÁREA DE LAZER</p><p>HALL</p><p>ÁREA: 29.25 M²</p><p>ÁREA: 4.72 M²</p><p>ÁREA: 2.04 M²</p><p>ÁREA: 11.30 M² ÁREA: 14.72 M²</p><p>ÁREA: 14.80 M² ÁREA: 10.96 M²</p><p>HALL</p><p>ÁREA: 7.50 M²</p><p>ÁREA: 17.84 M²</p><p>ÁREA: 10.48 M²</p><p>ÁREA: 9.42 M²</p><p>ÁREA: 3.80 M²</p><p>ÁREA: 3.03 M²</p><p>ÁREA: 3.03 M²</p><p>ÁREA: 91.81 M²</p><p>ARQUITETURA E URBANISMOFAU PROJETO DE ARQUITETURA 1</p><p>MIKAELLY SILVA E NATANE SANTOS</p><p>RESIDÊNCIA UNIFAMILIAR</p><p>PLANTA HUMANIZADA</p><p>05/05</p><p>TURMA: 2024.1</p><p>ESCALA: 1/50</p><p>DATA: 30/09/2024</p><p>AutoCAD SHX Text</p><p>N</p><p>AutoCAD SHX Text</p><p>S</p><p>AutoCAD SHX Text</p><p>L</p><p>AutoCAD SHX Text</p><p>O</p><p>Folhas e vistas</p><p>Planta Humanizada</p>

Mais conteúdos dessa disciplina