Logo Passei Direto
Buscar

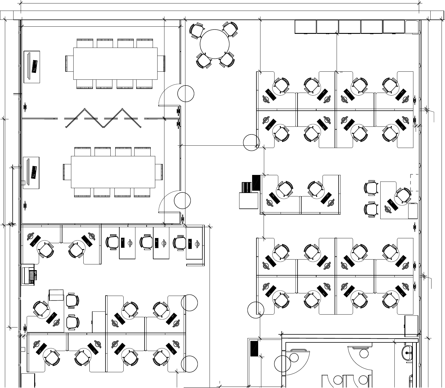
Planta baixa do Corredor de escritório

User badge image
ale_sbsjr

em

Ferramentas de estudo

Material
páginas com resultados encontrados.
páginas com resultados encontrados.
left-side-bubbles-backgroundright-side-bubbles-background

Crie sua conta grátis para liberar esse material. 🤩

Já tem uma conta?

Ao continuar, você aceita os Termos de Uso e Política de Privacidade

Prévia do material em texto

LAYO
U
T C
O
RR
ED
O
R
 1
C
 - PR
O
W
C
 M
A
S
C
.
P7
R
5
F6
P
14
P
17
P
17
P
18
1.50
PD
=
2
,7
0
M
P70 P70
1.23
PC
1
1.9
8
PC
2
.401
.212
7.3
0
14.94
A
=
1
1
.4
0
m
²
P6
0
P70 P70 P70P70
P7
0
P7
0
5.92
3
.70
3
.93
S
A
LA
 D
E R
EU
N
IÃ
O
 2
 
P8
R
9
F5
PV
P
P7
0
PV
P
A
=
2
1
.6
6
m
²
G
AV
C
H
EFE
FRI G
O
B
AR
C
G
RM
1
.45
A
L EXA
N
D
RE
R
E N
AN
ED
U
A
R
D
O
ES
TAG
IÁ
RIO
JE S
U
S
PA U
LO
P6
0
P6
0
P6
0
P6
0
P70P70 P70P70
P70P70P70P70
.12
.0
7
B
R EN
D
A 
M
A
RLY
C
A
M
ILE
P6
0
P6
0
P70P70P70P70
P6
0
P6
0
P70 P70
S
ER
G
IO
P70P70
P7
0
A
M
A
MA
M
A
M
A
M
1
.00
.8
9
P7
0
P7
0
P7
0
P7
0
P7
0
P7
0
P7
0
C
A
R
LO
S
P6
0
P70 P70P70P70
ED
D
ER
IM
PR
ES
S
O
RA
C
O
PIA
D
O
RA
.9
0
C
G
R
M
1
9
 pes
P7
0
P7
0
P7
0
P7
0
P7
0
P7
0
P7
0
P7
0
P7
0
P7
0
P7
0
PC
PC
1
.95
5.12
P7
0
P7
0
A
B
P100P6
0
P70 P70 P70P7
0
P7
0
P7
0
C
G
A
L
8
 pe s
S
A
LA
 D
E R
EU
N
IÃ
O
 1
 
P8
R
9
F5
A
=
2
1
.6
6
m
²
A
B
P6
0
PC PVP
C
O
O
RD
E N
A
Ç
Ã
O
P7
0
.8
0
P70
P7
0
P7
0
P70 P70P70 P70
P70 P70
.12
.0
7
G
AV
ES
TAG
IÁ
RIO
ES
TAG
IÁ
RIO
ES
TAG
IÁ
RIO
ES
TAG
IÁ
RIO
P7
0
P7
0
3
.86
7
.72
1.04
PVPPVP
P6
0
P7
0
P7
0
P7
0
P7
0
A
B
A
M
P60
3
.98
2.83
1
1
.1
3
.1
4
5
5
8
2.10

Mais conteúdos dessa disciplina