Logo Passei Direto
Buscar

Tipos de linhas em desenho técnico

Material
páginas com resultados encontrados.
páginas com resultados encontrados.
left-side-bubbles-backgroundright-side-bubbles-background

Crie sua conta grátis para liberar esse material. 🤩

Já tem uma conta?

Ao continuar, você aceita os Termos de Uso e Política de Privacidade

left-side-bubbles-backgroundright-side-bubbles-background

Crie sua conta grátis para liberar esse material. 🤩

Já tem uma conta?

Ao continuar, você aceita os Termos de Uso e Política de Privacidade

left-side-bubbles-backgroundright-side-bubbles-background

Crie sua conta grátis para liberar esse material. 🤩

Já tem uma conta?

Ao continuar, você aceita os Termos de Uso e Política de Privacidade

left-side-bubbles-backgroundright-side-bubbles-background

Crie sua conta grátis para liberar esse material. 🤩

Já tem uma conta?

Ao continuar, você aceita os Termos de Uso e Política de Privacidade

Prévia do material em texto

Escola Técnica Estadual Professor Agamemnom Magalhães – ETEPAM 
Prof. Humberto Santos - M.Sc. em Tecnologia da Energia (UPE)http://lattes.cnpq.br/2715913130113900 
 
Tipos de linhas em desenho técnico 
 
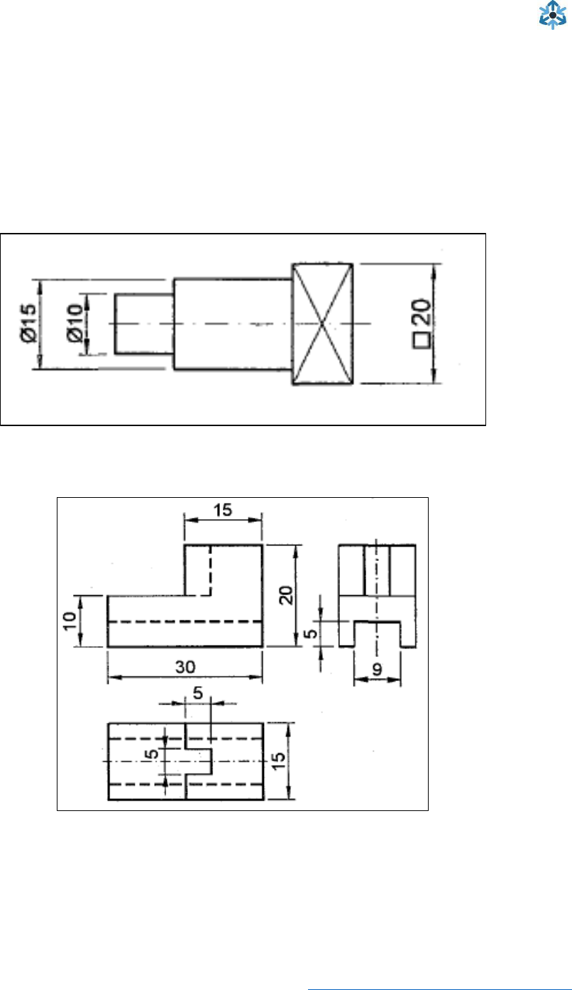
Observe o desenho técnico da Figura 1 e 2. Verifica-se que existem diferentes tipos de linhas, na 
qual cada uma transmite uma informação a quem está interpretando o desenho técnico para uma possível 
fabricação. 
Figura 1: Vista principal em desenho técnico mostrando contornos, 
linhas de cota, linha de centro e linhas de chamada. 
 
Fonte: Adaptado de Miceli e Ferreira (2008). 
 
Figura 2: Vistas frontal, lateral esquerda e superior. 
 
Fonte: Adaptado de Miceli e Ferreira (2008). 
 
 
 Cada tipo de linha utilizado na construção das vistas transmite um significado para quem lê e 
interpreta o desenho técnico. Para um melhor entendimento deste assunto precisamos recorrer a norma 
ABNT NBR 8403 (1984) – Aplicação de linhas em desenhos – tipos de linhas – larguras das linhas. 
Escola Técnica Estadual Professor Agamemnom Magalhães – ETEPAM 
Prof. Humberto Santos - M.Sc. em Tecnologia da Energia (UPE)http://lattes.cnpq.br/2715913130113900 
 
A Figura 3 mostra os mais variados tipos de linhas usados no desenho técnico. Observe que cada 
linha tem uma identificação (letra seguida por número), que pode ser usada para entender o tipo de linha 
de acordo com a Tabela 1. 
Figura 3: Tipos de linhas e suas aplicações. 
 
Fonte: ABNT NBR 8403 (1984) 
 
Escola Técnica Estadual Professor Agamemnom Magalhães – ETEPAM 
Prof. Humberto Santos - M.Sc. em Tecnologia da Energia (UPE)http://lattes.cnpq.br/2715913130113900 
 
Tabela 1: Tipos de linhas e suas aplicações. 
Linha Denominação Aplicações (ver Figura 3) 
 
Contínua larga A1 contornos visíveis 
A2 arestas visíveis 
 
Contínua estreita B1 linhas de interseção 
imaginárias 
B2 linhas de cotas 
B3 linhas auxiliares 
B4 linhas de chamadas 
B5 hachuras 
B6 contornos de seções 
rebatidas na própria vista 
B7 linhas de centros curtas 
 
Contínua estreita a mão livre 
(A) 
 
 
 
Contínua estreita em 
ziguezague (A) 
C1 limites de vistas ou cortes 
parciais ou interrompidas se o 
limite não coincidir com linhas 
traço e ponto (ver Figura 1c)) 
D1 esta linha destina-se a 
confeccionados por máquinas 
(ver Figura 1d)) 
 
Tracejada larga (A) 
 
Tracejada estreita (A) 
E1 contornos não visíveis 
E2 arestas não visíveis 
F1 contornos não visíveis 
F2 arestas não visíveis. 
 
Traço e ponto estreita G1 linhas de centro 
G2 linhas de simetrias 
G3 trajetórias 
 
Traço e ponto estreita, larga 
nas extremidades e na 
mudança de direção 
H1 planos de cortes 
 
Traço e ponto largo J1 Indicação das linhas ou 
superfícies com 
indicação especial 
 
Traço dois pontos estreita K1 contornos de peças 
adjacentes 
K2 posição limite de peças 
móveis 
K3 linhas de centro de 
gravidade 
K4 cantos antes da 
conformação 
K5 detalhes situados antes do 
plano de corte 
A) Se existirem duas alternativas em um mesmo desenho, só deve ser aplicada uma opção. 
Nota: Se forem usados tipos de linhas diferentes, os seus significados devem ser explicados no respectivo desenho ou por meio 
de referência às normas específicas correspondentes. 
 
Escola Técnica Estadual Professor Agamemnom Magalhães – ETEPAM 
Prof. Humberto Santos - M.Sc. em Tecnologia da Energia (UPE)http://lattes.cnpq.br/2715913130113900 
 
Bibliografia 
ASSOCIAÇÃO BRASILEIRA DE NORMAS TÉCNICAS. ABNT NBR 8403 (1984): Aplicação de linhas em 
desenhos – tipos de linhas – larguras das linhas. Rio de Janeiro: ABNT, 2018. 
MICELI, M.T.; FERREIRA, P. Desenho Técnico: básico. Rio de Janeiro: Imperial, 2008.

Mais conteúdos dessa disciplina