Logo Passei Direto
Buscar

Ferramentas de estudo

Material
páginas com resultados encontrados.
páginas com resultados encontrados.
left-side-bubbles-backgroundright-side-bubbles-background

Crie sua conta grátis para liberar esse material. 🤩

Já tem uma conta?

Ao continuar, você aceita os Termos de Uso e Política de Privacidade

Prévia do material em texto

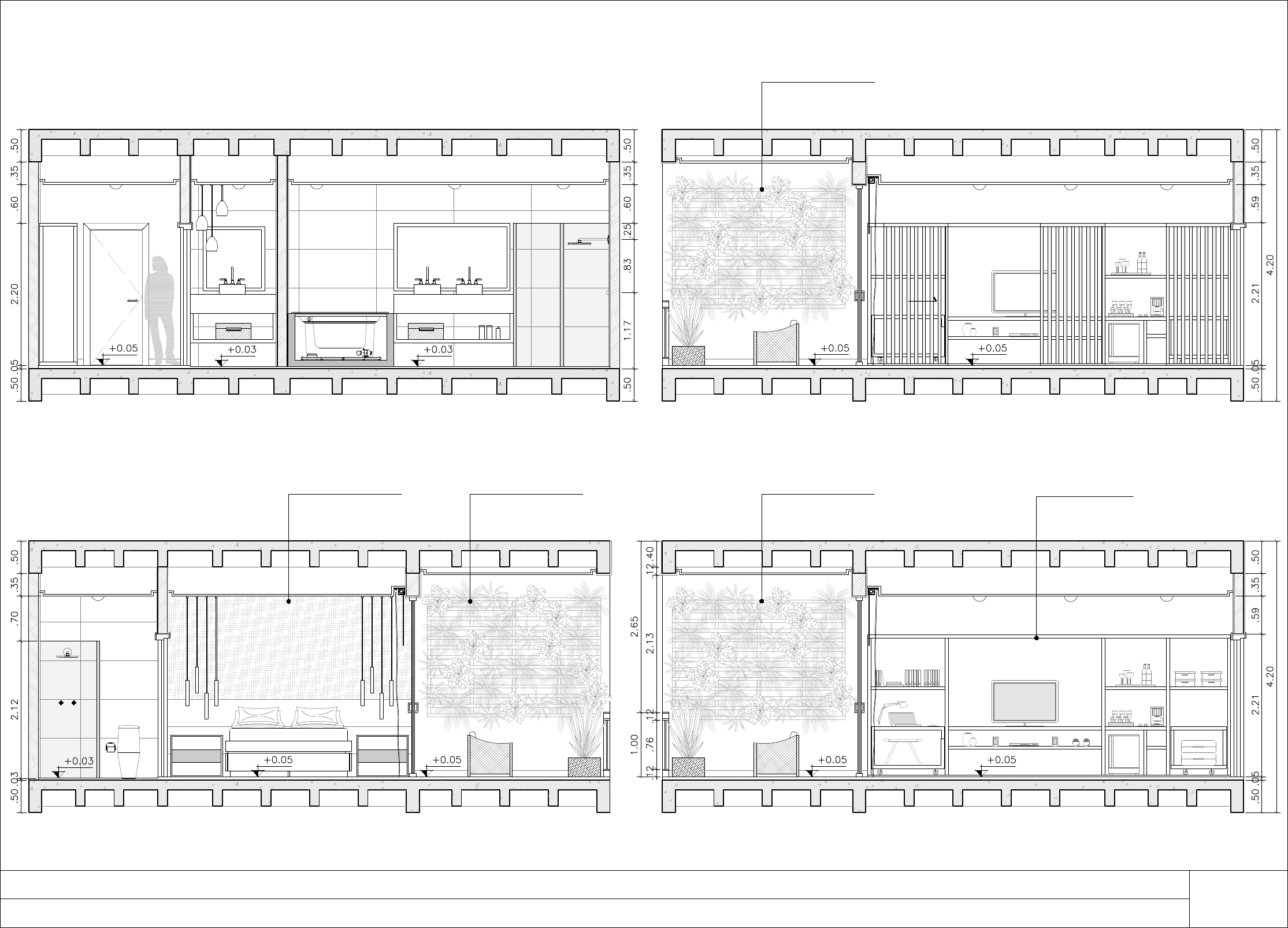
CORTE AA
ESC 1:50
CORTE CC
ESC 1:50
CORTE BB - MÓVEL FECHADO
ESC 1:50
ESC 1:50
CORTE BB - MÓVEL ABERTO
PAINEL VERDE 270cm x 185cm
PAINEL VERDE 270cm x 185cm
MÓVEL MULTIFUNCIONAL
PAPEL DE PAREDE EM TECIDO
PAINEL VERDE 270cm x 185cm
DISCIPLINA:
PROJETO DE INTERIORES E DESENHO DO OBJETO
PROFESSOR:
ENNIO POSSEBON
GRUPO:
ELISABETH SALAZAR (20187856) E RACHEL VERDASCA (20587046) 
TURMA:
M6A
DATA:
13/12/2016
5/12
ASSUNTO:
CORTES - QUARTO STANDARD - PROJETO HOTEL
ESCALA:
1:50
UNIVERSIDADE ANHEMBI MORUMBI
AutoCAD SHX Text
+0.05
AutoCAD SHX Text
+0.05
AutoCAD SHX Text
+0.05
AutoCAD SHX Text
+0.05
AutoCAD SHX Text
+0.03
AutoCAD SHX Text
+0.03
AutoCAD SHX Text
+0.03
AutoCAD SHX Text
+0.05
AutoCAD SHX Text
+0.05
AutoCAD SHX Text
+0.05
	Sheets and Views
	PRANCHA 5

Mais conteúdos dessa disciplina