Logo Passei Direto
Buscar
Material
páginas com resultados encontrados.
páginas com resultados encontrados.
left-side-bubbles-backgroundright-side-bubbles-background

Crie sua conta grátis para liberar esse material. 🤩

Já tem uma conta?

Ao continuar, você aceita os Termos de Uso e Política de Privacidade

Prévia do material em texto

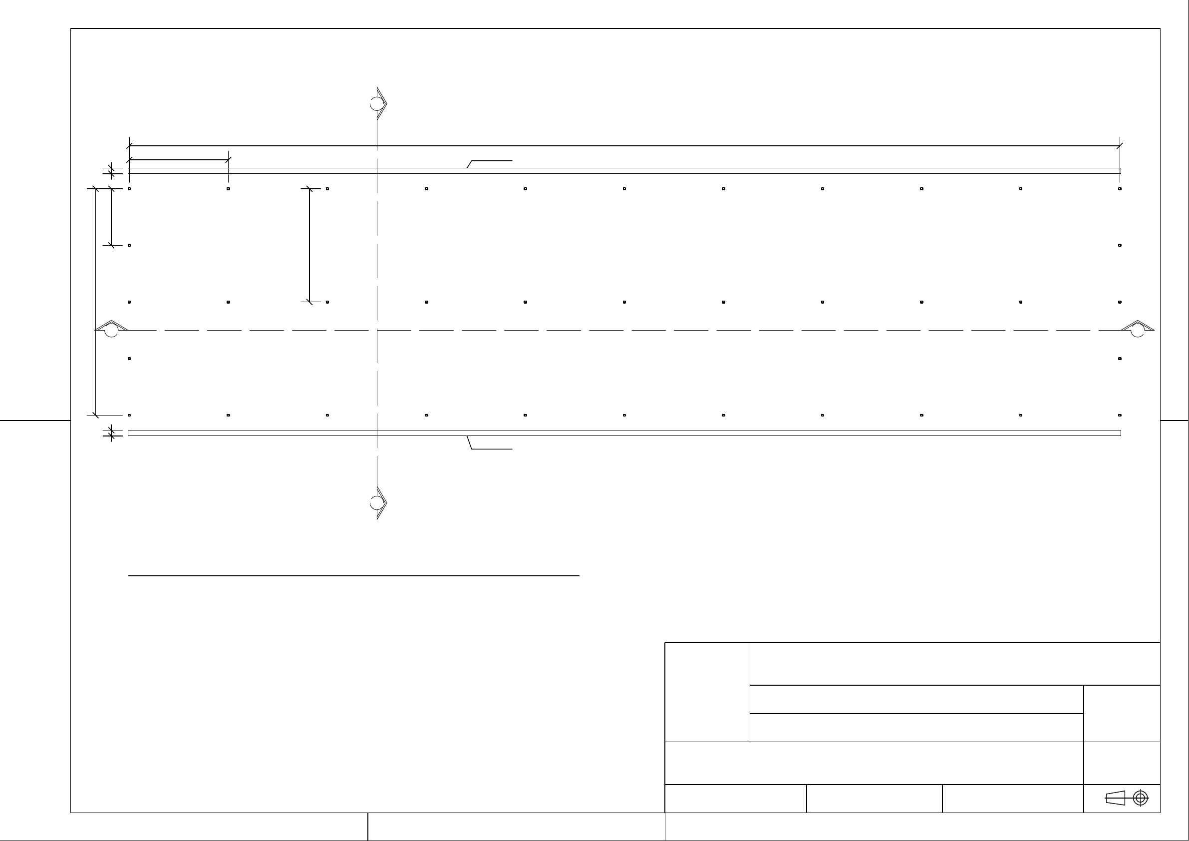
35
3,5
2
8
A
A
B B
PLANTA BAIXA
ESCALA 1:100
4
Vala de 20x20cm
Vala de 20x20cm
0,
2
0,
2
ALUNO:
DISCIPLINA:
ESCALA:
Nº PRANCHA:
TURMA:
ASSUNTO:
DATA:DOCENTE:
UFRN
UNIVERSIDADE FEDERAL DO RIO GRANDE DO NORTE
ESCOLA AGRÍCOLA DE JUNDIAÍ - EAJ
TAYRIS DO NASCIMENTO LUCAS DE MORAIS
DESENHO TÉCNICO E CONSTRUÇÕES RURAIS
DR. FLAVO ELANO 18/08/2021 ENG FLORESTAL
/0301
1/100
PLANTA BAIXA
	Sheets and Views
	Prancha_01

Mais conteúdos dessa disciplina