Logo Passei Direto
Buscar
Material
páginas com resultados encontrados.
páginas com resultados encontrados.
left-side-bubbles-backgroundright-side-bubbles-background

Crie sua conta grátis para liberar esse material. 🤩

Já tem uma conta?

Ao continuar, você aceita os Termos de Uso e Política de Privacidade

left-side-bubbles-backgroundright-side-bubbles-background

Crie sua conta grátis para liberar esse material. 🤩

Já tem uma conta?

Ao continuar, você aceita os Termos de Uso e Política de Privacidade

Prévia do material em texto

LISTA DE EXERCÍCIOS – BOMBAS 
01: Refazer os exercìcios resolvidos do livro texto (Cremasco) 
02: Fazer os exercicios propostos (no fim do livro) 
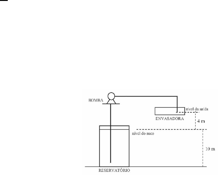
03: Uma indústria que fabrica suco de uva efetua a mistura dos ingredientes em um tanque 
ocorrendo posteriormente uma etapa de filtração. Em seguida o suco é armazenado em um 
reservatório, sendo então enviado até o equipamento de envase, cujo bico dosador atua também a 
pressão atmosférica para evitar formação de espumas durante e o envase. A linha de envase fica 
situada no piso superior e o transporte do fluido é realizado através de uma bomba de recalque, 
conforme figura. O reservatório é aberto e apresenta grandes dimensões. A tubulação tem diâmetro 
de 1,95 cm com área de seção transversal igual a 0,0003 m2. Considerando que o suco de uva 
possua viscosidade desprezível e que a aceleração da gravidade possa ser aproximada para 10 
m/s2, qual deve ser a altura manométrica da bomba para que seja obtida uma vazão de envase de 
3 L/s? 
 
04-)

Mais conteúdos dessa disciplina