Logo Passei Direto
Material
¡Estudia con miles de materiales!

Vista previa del material en texto

ITS MR. Ingeniería Civil Mecánica 1 
Ejercicios Mecánica de Sólidos – Capitulo 3 
 
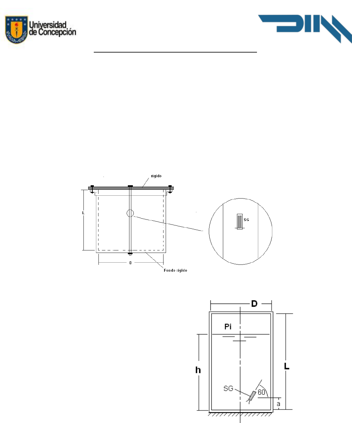
1) El manto cilíndrico del estanque de presión interna de la figura está construido de una placa de 
acero de espesor t = 5 mm, el estanque tiene un diámetro D = 3 m y una altura L = 2 m. Este está 
suspendido por 12 pernos rígidos y una comuna central de titanio de sección transversal cuadrada 
de arista 10 mm. Con el fin de medir la presión interna en el estanque se ha instalado un strain gage 
en la columna como lo muestra la figura derecha. Despreciando los pesos del estanque y la barra y 
solo considerando el efecto de la presión interna, calcule: 
 
La Presión interna en el estanque si el strain gage mide 10  de deformación. (suponga que el 
strain gage indica una deformación igual a 0  cuando el estanque solo tiene presión atmosférica) 
 
E acero = 2.1x 10
11
 N/m
2
, E titanio = 3.0 x 10
11
 N/m
2
, acero = 0.3 
 
 
 
2) Para el estanque de acero de la figura de 
dimensiones L=3 m, D = 1,4 m y espesor 
t=0,01 m, se pide: 
Determinar el valor que debiese medir el Strain 
Gage si h (altura de líquido) es 2,5 m. y la 
presión interna Pi = 1 MPa. 
 
a = 0,2 m, Eac= 2,1 x 10
5 MPa. ac  
liquido= 1000 kg/m
3 
 
Suponga que el strain gage mide 0 para el 
estanque vacío y sin presión interna. 
 
 
 
ITS MR. Ingeniería Civil Mecánica 2 
3) La barra de acero de largo L y sección transversal Ao, gira respecto del punto fijo A, a una 
velocidad angular ω constante, se pide determinar: 
a) Esfuerzos en la barra en función de x, L, E, Ao y ω. 
b) Alargamiento de la barra en función de x, L, E, Ao y ω. 
 
 
 
4) La figura representa una barra 
compuesta por un material cónico 
de acero de diámetros D y d, y un 
sector cilíndrico de bronce. La barra 
gira en torno al eje Z-Z con una 
velocidad angular . Despreciando 
el efecto del peso determine: 
 
(a) El esfuerzo en A y B, 
(b) Si la temperatura aumenta 
T, determine el esfuerzo en 
A debido a ambos efectos. 
 
 
 
 
 
Característica Acero bronce 
Coeficiente dilatación térmica   
Modulo elasticidad Ea Eb 
Módulo de poisson a b 
densidad a b 
 
 
 
 
ITS MR. Ingeniería Civil Mecánica 3 
5) Sean AC y EF dos barras rígidas, horizontales antes de aplicarse las cargas y de peso 
despreciable. Las barras verticales BF y GI son de acero y la barra EH es de cobre. 
 
Datos: 
Secciones FB y GI = 3 cm
2
 E acero= 21 x 10
6
 N/cm
2
 
 EH = 5 cm
2
 E cobre= 12 x 10
6
 N/cm
2
 
Los coeficiente de dilatación del acero y del cobre son αac= 1.2*10
-5 
 1/ºC y αcu= 2.4*10
-5 
 1/ºC 
respectivamente. 
 
Determinar: 
1) Esfuerzos en los cables BF, GI, EH y las tensiones que están sometidos. 
2) Angulo de giro de la barra AC debido a la aplicación de la carga. 
3) Si se produce un aumento de temperatura 50ºC en la barra BF, determinar la posición final 
del punto A y las variaciones en las tensiones de las barras verticales. 
 
 
 
 
 
6) La figura muestra un estanque apoyado entre dos paredes rígidas. Si se aplica una presión 
interne de Pi = 0.7 Mpa, calcular: 
 
1.- a) Esfuerzos principales. 
b) Deformación en el Strain-Gage 1 al medio del estanque. 
 c) Deformación en el Strain-Gage 2 (a 45°) al medio del estanque. 
2.- Si la temperatura aumenta en 25 °C y se mantiene la presión interna en 0.7 Mpa. 
 
a) Calcule los esfuerzos principales. 
b) Calcule la deformación en el Strain-Gage 1 al medio del estanque. 
c) Variación de volumen del estanque. 
 
Datos: D = 60 cm, L = 150 cm, t = 3 cm 
 
 
ITS MR. Ingeniería Civil Mecánica 4 
 
 
 . 
 
7) Se muestra un sistema de medición del nivel 
de agua de un estanque de acero de 2 mm de 
espesor de manto, colgado de su extremo 
superior, éste se compone de un eje de acero de 
100 mm de longitud, 20 mm de diámetro, 
empotrado en un extremo y un sistema de barras 
rígidas. Determinar: 
 
a) la relación entre el nivel de agua del 
estanque y los grados de torsión del 
extremo libre del eje de acero. 
 
b) El error cometido en la medición si 
existe una variación de temperatura de 
T ºC en el manto del estanque. 
 
E = 210 Gpa,  = 12 x 10
-6
 1/ºC. 
 El dial indica cero para estanque vacio. 
 
 
 
8) La figura representa un estanque de acero con manto de pared delgada de espesor 6 mm el que contiene 
un gas a presión. Si un Strain Gage ubicado en el manto a 22.5º de la dirección axial midió una 
deformación 100 𝜇ε al aumentar la presión desde presión atmosférica, determinar: 
 Porcentaje de variación de volumen del estanque (cabezales planos) 
 Esfuerzo de corte máximo en el manto del estanque. 
Notas: - Módulo de elasticidad E = 2.1 x 10
11
 N/m
2
, Módulo de Poisson  = 0.3. 
- Desprecie efectos de flexión. 
 
 
ITS MR. Ingeniería Civil Mecánica 5 
 
 
9) Una barra sólida de cobre de 30 mm 
de diámetro está envuelta por un tubo 
también de cobre con un diámetro 
exterior de 45 mm y un diámetro interior 
de 36 mm como se muestra en la figura. 
Ambos están empotrados en el extremo 
A y unidos por una placa rígida en el 
extremo B. La barra compuesta de 500 
mm de longitud es torcida por un torque 
T en el extremo B.. 
Determinar qué porcentaje del torque 
aplicado es absorbido por el tubo. 
 
 
10) El diseño del sistema mostrado en la 
figura suponía que quedaría sin esfuerzos 
para la condición en que la barra 
rígida AB estuviera horizontal, sin embargo 
un error de construcción dejó la barra de la 
izquierda mas corta en 2 mm. 
 
Las barras son de acero con un área de 1 
cm
2
. Si a = 0.5 m y L = 0.5 m, calcular las 
tensiones de las barras 1 y 2 debido al montaje 
si el ángulo  es 30º, E = 2.1 x 10
11
 N/m
2
 y  
= 0.3. 
 
 
 
 
 
 
 
ITS MR. Ingeniería Civil Mecánica 6 
11) La imagen muestra un estanque de acero que 
contiene gas licuado a una presión de 20 Kg/cm2, el 
peso específico del líquido es 1000 Kg/m3 y el del 
acero es 7800 Kg/m3. El espesor de la pared del 
estanque es 1 cm. Un strain gages fue instalado en 
forma circunferencial a una altura de 190 cm medidos 
desde la base del estanque y se utiliza para determinar 
el volumen del líquido. Si las dimensiones mostradas 
en la figura son en centímetros, encuentre la relación 
entre la deformación medida por el strain gage y la 
altura del líquido. E = 2.1 x 1011 N/m2. v = 0.3. 
 
 
12) Un estanque cilíndrico de pared delgada está 
alojado entre paredes rígidas en sus extremos, sin roce. 
Inicialmente el juego entre la pared y es estanque es de 
2 mm. Si la presión interna aumenta en 50 Kg/cm2 y 
su temperatura aumenta en 150 º C. determinar los 
esfuerzos axiales y circunferenciales en el manto del 
cilindro. 
 
 
E = 200 Gpa, E= 0.3, D = 1000 mm, t = 10 mm,  = 
8 x 10-6 (1/ºC), 
 
 
 
Para el problema de la figura donde las barras 1 y 2 son de acero (0 = 300 N/mm
2
 , E = 2.1 * 
10
5
 N/mm
2
,  = 0.3) y las barras 3 y 4 son de cobre (0 = 100 N/mm
2
 , E = 1.0 * 10
5
 N/mm
2
, 
 = 0.3) de igual área transversal A = 4 cm
2
 . La longitud de las barras 1 y 2 es L=1000 mm y 
=30º . Si la barra horizontal es de cobre, cilíndrica con un diámetro de 8 cm y la distancia 
"a" es 50 cm. Encontrar: 
 
a) La carga P necesaria para el inicio de la fluencia en el sistema. 
b) La máxima carga P admisible considerando un factor de seguridad 2.5, utilizando criterio del 
esfuerzo de normal máximo. 
 
 
 
ITS MR. Ingeniería Civil Mecánica 7 
 
 
13) La estructura está compuesta de 5 barras verticales de 
área transversal 𝐴 = 200 𝑚𝑚2, longitud 𝐿 =
500 𝑚𝑚, módulo de elasticidad 𝐸 = 2000 𝐺𝑃𝑎 y 
coeficiente de dilatación térmica 𝛼 = 12 ∗ 10−6 
 1
°𝐶
 y de 
una barra horizontal de área mucho mayor, por lo que se 
puede considerar rígida.Una falla de fabricación hace que exista una distancia Δ𝐿 
que no permite el montaje, sin embargo eso se soluciona 
cuando el sistema se calienta desde los 20°C hasta los 
100°C . De esta forma se pueden unir con un pasador que 
entra libremente los agujeros de las barras inferiores. 
 
a) Determine el esfuerzo sobre la barra inferior cuando 
ésta vuelve a los 20°C. 
 
Nota: desprecie el peso de las barras y suponga que solo 
tienen desplazamiento vertical. 
 
 
 
 
 
 
 
ITS MR. Ingeniería Civil Mecánica 8 
 
14) El estanque circular cerrado de la figura 
cuelga soportado por 8 pernos. Determinar el 
diámetro necesario de los pernos si el adm de 
ellos es de 200 MPa. Se han instalado dos strain 
gages en la periferia del estanque ubicados cada 
uno de ellos a L/4 de cada extremo y en las 
posiciones mostradas en la figura. La mitad del 
estanque tiene líquido y el resto está con gas a 
presión. 
Datos: 
liquido= 1000 kg/m
3
 ; acero= 7800 kg/m
3
; 1=220 
x 10
-6
 (deformación medida en strain gage 1); 
2= 560 x 10
-6
; Eacero= 2.1 x 10
11
 N/m
2
. D = 1 m 
; L= 2 m ; t= 0.004 m 
 
 
 
15) La barra de acero de longitud L, ancho variable (entre a y 2a) y 
espesor constante b, está colgada de uno de sus extremos como 
muestra la figura. Si L= 1 m, a = 0,2 m b = 0,1 m, determinar 
 Alargamiento debido a su propio peso. 
 Estado de esfuerzos para un punto situado a 0,2 m de su 
extremo superior 
 
 Eac= 2,1 x 10
5
 MPa. 
 ρac= 7800 kg/m
3
 
 

 
 
16) Calcular el ángulo  si: P= 1000 N; L=2 m; A=0.005 m
2
; y el comportamiento de los 
materiales dados por las curvas de la figura b , donde 01=400 MPa; 02=350 MPa; 01=0.0002 ; 
02=0.0004. 
 
 
ITS MR. Ingeniería Civil Mecánica 9 
 
 
17) El estaque de acero de la 
figura de 2000 mm de longitud, 
1600 mm de diámetro exterior y 
10 mm de espesor, está reforzado 
por cuatro barras también de 
acero de 30 mm de diámetro, 
soldadas a los cabezales que 
deben considerarse como rígidos. 
El sistema está sometido a presión 
interna Pi y a una fuerza de 
tracción F. Si los strain gages 
miden SG1 = 200 με y SG2 = 100 
με, determinar la presión interna y 
la fuerza P que producen esas 
deformaciones. 
Eac= 2.0 x 10
4
 Kg/mm
2 
 

 
18) Para la barra de acero de largo L = 400 
mm, a = 40 y b = 40, está sometida a una 
fuerza F = 25.000 kg y a un aumento de 
temperatura de 50º C se pide determinar: 
 Matriz de esfuerzo en un punto (3D). 
 Matriz de deformaciones en un punto 
(3D). 
 Cambio de volumen de la barra. 
 
 
 
 
 
 
 
ITS MR. Ingeniería Civil Mecánica 10 
19) La esfera de acero de diámetro D y 
espesor t está sometida a una presión interna 
Pi. Se pide determinar: 
 
 Deformaciones en direcciones 1 y 2, 
máxima deformación angular en el punto 
P y direcciones de deformaciones 
principales en el punto P. 
 
 Si las deformaciones en los strain gages 1 
y 2 debido a la presión interna fuesen 
distintas entre sí, explique las posibles 
razones para que ello ocurra. 
 
Datos: Pi, D, t, E, ν