Logo Passei Direto

PARCIAL 2020-2 A INGENIERIA SIMORRESISTENTE - SOLUCIÓN

User badge image
thaliallerme

en

Material
¡Estudia con miles de materiales!

Vista previa del material en texto

Facultad de Ingeniería 
UG (Lima Centro) 
 
1 
 EXAMEN PARCIAL 
INGENIERIA SISMORRESISTENTE 
INGENIERIA CIVIL 
SEMESTRE 2020-2 
 
 
 
 
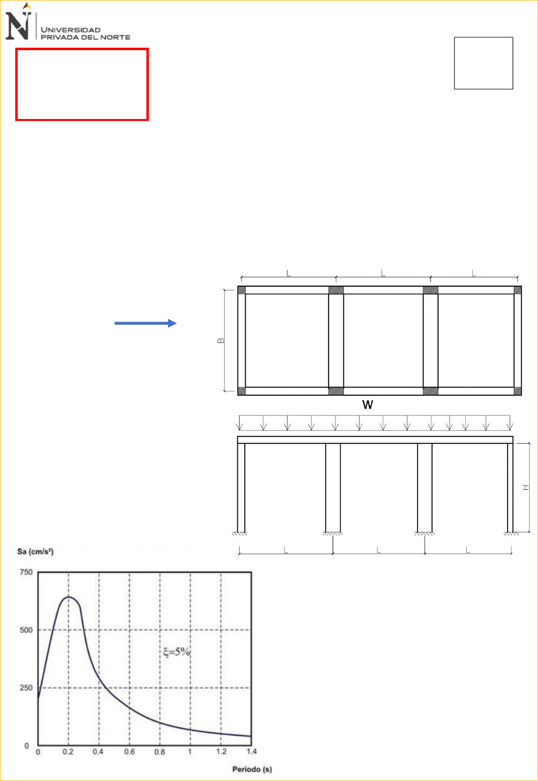
1. Se muestra la planta y elevación de un almacén, con carga distribuida de W= 2.5 tonf/m2 
Considerar modulo elástico E=2.1x106 tonf/m2 y un amortiguamiento ξ de 5%. Las características 
geométricas son las siguientes: B= 5.0m, H=5.0m, L=4.0m. Considerar las columnas de sección 
0.40mx0.40m y 0.40mx0.80m 
Calcular la rigidez de la estructura K, la frecuencia circular natural n, con el periodo Tn y con el 
espectro de respuesta en aceleración en figura determinar el máximo desplazamiento Dmax de la 
estructura. (4 puntos) 
Determinar el momento total en la base de la estructura y el momento en una columna de sección 
0.40x0.40m y en una columna 0.40x0.80m. (4 puntos) 
 
 
 
 
 
 
 
 
 
 
 
 
 
 
 
 
 
 
 
 
 
 
 
 
 
 
 
 
 
 
 
 
 
 
 
FILA A 
ESTUDIANTE CON 
CODIGO QUE TERMINA 
CON EL NUMERO DE 0 A 2 
Dir. Análisis 
Facultad de Ingeniería 
UG (Lima Centro) 
 
2 
 
 
 
 
 
 
 
 
 
 
 
 
 
 
 
 
 
 
 
 
 
 
 
 
 
 
 
 
 
 
COL.1 COL.2
P= 2.5 tn/m2 h 0.40 m h 0.80 m
E= 2.10E+06 tn/m2 b 0.40 m b 0.40 m
B= 5.00 m
H= 5.00 m
L= 4.00 m
I40x40= 0.00213 m4
I80x40= 0.01707 m4
Ktot= 1.55E+04 tn/m
Peso= 150 tn
masa= 15.29051988 tn*s2/m
w= 31.82 rad/s frec. Natural
T= 0.1975 s
Sa 6.50 M/S2
FR= 99.39 tn
Mtot0 496.94 tn*m
Dtot0 0.006 0.64 cm
kcol1 430.08
kcol2 3440.64
Mcol1 13.80
Mcol2 110.43
Facultad de Ingeniería 
UG (Lima Centro) 
 
3 
 
2. Determinar la frecuencia natural, el periodo y la frecuencia cíclica del sistema mostrado en 
figura, el cual consiste en un anuncio de peso P= 2500.00 N, el cual está sostenido por una viga en 
voladizo a través de un cable. La viga con un extremo empotrado, cuenta con una altura h = 0.25m y 
un ancho b= 0.25m, un módulo de elasticidad E=1.8x104 Mpa y una longitud L1=1.50m . El cable tiene 
un diámetro de 0.02m y cuenta con un módulo de elasticidad E= 2.1x105 Mpa y una longitud 
L2= 0.50m. (6 ptos) 
 
 
 
 
 
 
 
 
 
 
 
 
 
 
 
P= 2500 N VIGA CABLE
h 0.25 m diam. 0.020 m
b 0.25 m L 0.50 m
L 1.50 m E= 2.10E+05 Mpa
E= 1.80E+04 Mpa
Iviga= 0.000325521 m4
Kviga= 5.21E+06 N/m
A. elastico= 0.000314159 m2
Kcable= 1.32E+08 N/m
Ktot= 5.01E+06
masa= 254.84 N*s2/m
w= 140.22 rad/s frec. Natural
T= 0.0448 s
f= 22.32 Hz
Facultad de Ingeniería 
UG (Lima Centro) 
 
4 
 
 
3. Un peso unido a un resorte de 525N/m es un sistema amortiguado. Cuando el peso es desplazado y 
dejado libre, el periodo de vibración amortiguado resultante es 1.80s y en 2 amplitudes 
consecutivas se pasa de 4.2cm a 1.0cm. 
Determinar la amplitud cuando la fuerza F=2cos3t actúa en el sistema. 
Para el decremento logarítmico usar la formula completa del decremento logarítmico y recordar la 
relación entre D estático y D dinámico. (6 ptos) 
 
𝛿 =
2𝑛𝜋𝜉
√1 − 𝜉2
 
 
 
 
 
 
K= 525 N/m A1= 4.2
td= 1.8 s A2= 1
F= 2 cos3t
δ= 1.435
ξ= 0.223
ωd= 3.491
ωn= 3.581
β=ωd/ωn= 0.83786
X= 0.00798 m 0.798 cm