Logo Passei Direto

agencia_24_de_mayo_pb_incendios

User badge image
Ra2 Brioso

en

Herramientas de estudio

Material
¡Estudia con miles de materiales!

Vista previa del material en texto

ø 
2 
1/
2
TOMA SIAMESA
G
 CALLE GARCIA MORENO
 CALLE MORALES
A' D
DEP.
ATM
TEL
ATM
TEL
KIOSCO PASA PAQUETE
ATMS
RECUENTO
BOVEDA
CUARTO DE EQUIPOS
BAÑO
MUJERES
CAFETERÍA
HALL
AUTOSERVICIOS
INGRESO
BANCO
EJECUTIVOS
SALA DE ESPERA
13
1211109
S
ÁREA
TRANSACCIONAL
COLUMNAS
(VESTIGIOS)
ORNAMENTAL
HALL ESPERA
TRANSACCIONAL
PATIO
CENTRAL
CUARTO DE
BOMBAS
19
17
18
20
21
N +0.38N -0.40N -0.85
N -0.94
N -0.83
N -0.67
N -0.46
N -0.31
N -0.28
N -0.10 N +0.10S
N -0.37
BAÑO
HOMBRES
8%
N +2840.21
N +2840.21
N +2840.21
N +2840.21
N +2840.21
N +2840.21
N +2839.90
N +2840.59N +2839.81N +2839.36
N +2839.27
N +2839.38
N +2839.54
N +2839.75
N +2839.90
N +2839.93
N +2840.11 N +2840.31
N +2839.84
N ±0.00
N ±0.00
N ±0.00N ±0.00
N ±0.00
N -0.31
N ±0.00
N ±0.00
N +2840.21
16
1587
ESCALERA DE HORMIGÓN
CON PORCELANATO
22
14
5 642 31
B
P=6%
P=6%
N +2840.05
N -0.15
DUCTO VM VM
N +2839.90
N -0.31
Ø 2 1/2Ø 2 1/2
Ø
2 1/2
Ø 2 1/2
Ø
2 1/2
Ø 2 1/2
Ø
2 1/2
ø 50
ø 50
ø 50
ø 50
ø 50
ø 50
Ø 4"
SALA DE ESPERA
ADMINISTRADOR
SALA DE ESPERA
SALA DE REUNIONES
S
 CALLE MORALES
N +3.64
N +3.64
SALA DE REUNIÓN 2
B
CIRCULACIÓN
CON PERGOLA
N +2840.21
A' D
G
MAMPARA DE
VIDRIO
MAMPARA DE
VIDRIO
MAMPARA DE
VIDRIO
MAMPARA DE
VIDRIO
DUCTO
36353433323130
26
25
24
23
22
27
28
3729
38
40
39
41
42
43
44
45
SUB-GERENCIA
SALA DE REUNIÓN
CAFETERÍA
RECEPCIÓN
DOCUMENTACIÓN
HALL
CIRCULACIÓN
CON PERGOLA
N +3.64
N +2843.85
N +2843.85
N +2843.85
ESCALERA DE HORMIGÓN
CON PORCELANATO
SALA DE CAPACITACIÓN 1
GERENCIA
SALA DE CAPACITACIÓN 2
EJECUTIVO
PM
0,80x2,10
PM
0,80x2,10
ø 50
L=4.50 mts
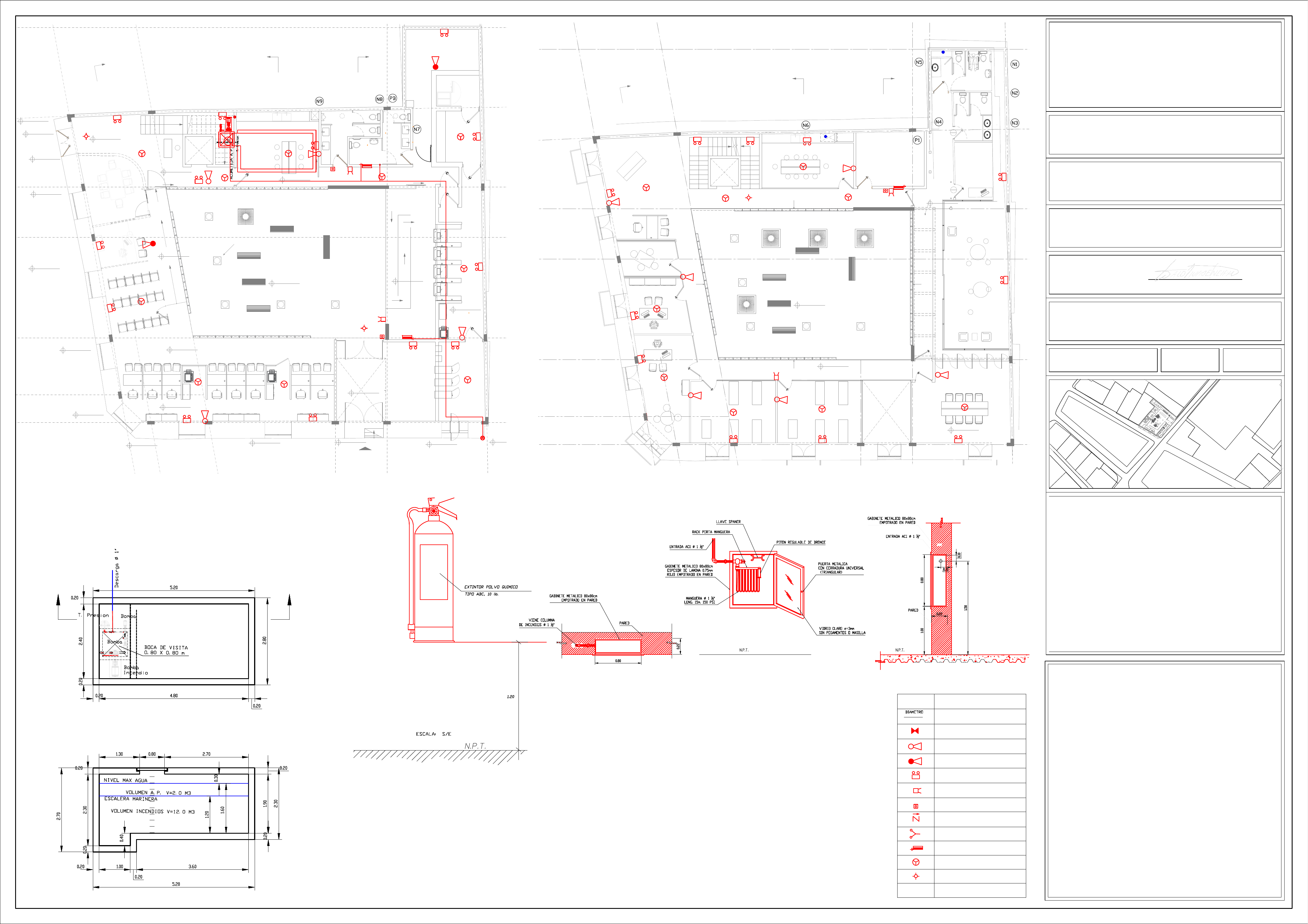
SIMBOLO
VALVULA DE COMPUERTA
EXTINTOR CO2 10 lb
LAMPARA DE EMERGENCIA
SIRENA
PULSADOR
DESCRIPCION
SIMBOLOGIA
EXTINTOR PQS 10 lb
VALVULA CHECK
TOMA SIAMESA
TUBERIA DE ACERO NEGRO ASTM A 53
GABINETE DE INCENDIOS
DETECTOR DE HUMO
LUCES ESTROBOSCOPICAS
DETALLE GABINETE CLASE 2
PARA SISTEMA CONTRA INCENDIO
PLANTA CORTE LATERALVISTA FRONTAL
DETALLE UBICACION DE EXTINTOR
PLANTA
A
CORTE A-A
A
EE1/1
PROPIETARIO :
PROYECTO
BANCO PICHINCHA
AGENCIA 24 DE MAYO
CALLE GARCIA MORENO Y MORALES
PREDIO:
LÁMINA:
ARQ. PEDRO JARAMILLO C. G-1285
14855
CLAVE CATASTRAL:
30002 10 002 000 000 000
PROYECTO: INSTALACIONES SISTEMA
CONTRAINCENDIOS
CISTERNA V=18.0 M3
GARCIA
 M
ORENO
MORALES
ATM
DEP.
ATM
DEP.
PASA P
AQUETE
Cua
rto
 M
aq
uin
as
BOVEDA
RECUENTO
30
CAFE
TE
RIA
Bañ
os
Bañ
os
GENERADOR
PROFESIONAL RESPONSABLE:
LP:1005-07-766442 MDMQ-3974
ING.GALO RIVADENEIRA
ESC: 1:100
PLANTA BAJA
PLANTA ALTA
ESC: 1:50
BANCO PICHINCHA
1790010937001
18 AGOST 2021
PLANO MODIFICATORIO
AutoCAD SHX Text
BOCA DE VISITA 0.8 X 0.8 m
AutoCAD SHX Text
ACOMETIDA A.P.
AutoCAD SHX Text
PB
AutoCAD SHX Text
N8
AutoCAD SHX Text
N9
AutoCAD SHX Text
N7
AutoCAD SHX Text
B
AutoCAD SHX Text
T. Presion
AutoCAD SHX Text
N2
AutoCAD SHX Text
N3
AutoCAD SHX Text
N5
AutoCAD SHX Text
N1
AutoCAD SHX Text
N4
AutoCAD SHX Text
N6
AutoCAD SHX Text
P1
AutoCAD SHX Text
DIAMETRO
AutoCAD SHX Text
VIENE COLUMNA DE INCENDIOS 1 12"
AutoCAD SHX Text
PARED
AutoCAD SHX Text
GABINETE METALICO 80x80cm EMPOTRADO EN PARED
AutoCAD SHX Text
GABINETE METALICO 80x80cm EMPOTRADO EN PARED
AutoCAD SHX Text
PARED
AutoCAD SHX Text
N.P.T.
AutoCAD SHX Text
ENTRADA ACI 1 12" 
AutoCAD SHX Text
N.P.T.
AutoCAD SHX Text
GABINETE METALICO 80x80cm ESPESOR DE LAMINA 0.75mm ROJO EMPOTRADO EN PARED
AutoCAD SHX Text
ENTRADA ACI 1 12" 
AutoCAD SHX Text
MANGUERA 1 12" LONG. 15m. 150 PSI
AutoCAD SHX Text
RACK PORTA MANGUERA
AutoCAD SHX Text
LLAVE SPANER
AutoCAD SHX Text
PITON REGULABLE DE BRONCE
AutoCAD SHX Text
PUERTA METALICA CON CERRADURA UNIVERSAL (TRIANGULAR)
AutoCAD SHX Text
VIDRIO CLARO e=3mm SIN PEGAMENTOS O MASILLA
AutoCAD SHX Text
ESCALA: S/E
AutoCAD SHX Text
N.P.T.
AutoCAD SHX Text
1.20
AutoCAD SHX Text
TIPO ABC, 10 lb.
AutoCAD SHX Text
EXTINTOR POLVO QUIMICO
AutoCAD SHX Text
Descarga %%C 1"
AutoCAD SHX Text
T. Presion
AutoCAD SHX Text
Bomba
AutoCAD SHX Text
ESCALERA MARINERA
AutoCAD SHX Text
NIVEL MAX AGUA
AutoCAD SHX Text
Bomba Incendio
AutoCAD SHX Text
BOCA DE VISITA 0.80 X 0.80 m
AutoCAD SHX Text
VOLUMEN INCENDIOS V=12.0 M3
AutoCAD SHX Text
VOLUMEN A.P. V=2.0 M3
AutoCAD SHX Text
Bomba
	Sheets and Views
	IS1-IS2-EE1