Logo Passei Direto
Buscar

Lista 1_Mecanica dos Solidos II

Ferramentas de estudo

Questões resolvidas

Uma viga caixão quadrada é feita com duas tábuas de 19 mm x 76 mm e duas tábuas de 19 mm x 114 mm, pregadas como mostra a figura. Sabendo que o espaçamento entre os pregos é de 45 mm e que a viga está submetida a uma força cortante vertical de intensidade V = 2,7 kN.
Determine a força cortante em cada prego.

Material
páginas com resultados encontrados.
páginas com resultados encontrados.
left-side-bubbles-backgroundright-side-bubbles-background

Experimente o Premium!star struck emoji

Acesse conteúdos dessa e de diversas outras disciplinas.

Libere conteúdos
sem pagar

Ajude estudantes e ganhe conteúdos liberados!

left-side-bubbles-backgroundright-side-bubbles-background

Experimente o Premium!star struck emoji

Acesse conteúdos dessa e de diversas outras disciplinas.

Libere conteúdos
sem pagar

Ajude estudantes e ganhe conteúdos liberados!

Questões resolvidas

Uma viga caixão quadrada é feita com duas tábuas de 19 mm x 76 mm e duas tábuas de 19 mm x 114 mm, pregadas como mostra a figura. Sabendo que o espaçamento entre os pregos é de 45 mm e que a viga está submetida a uma força cortante vertical de intensidade V = 2,7 kN.
Determine a força cortante em cada prego.

Prévia do material em texto

Data de Entrega: 01/09/21 
Aluno: Matricula: 
 
Instruções: 
1) Não serão recebidas listas após a data de entrega. 
2) Os exercícios devem ser convertidos em um único documento em 
formato .pdf e enviado ao AVA. O tamanho máximo admitido para o 
arquivo é 1.2 Mb. 
3) Serão levadas em consideração na avaliação além da resolução dos 
problemas, a organização, clareza e apresentação. 
 
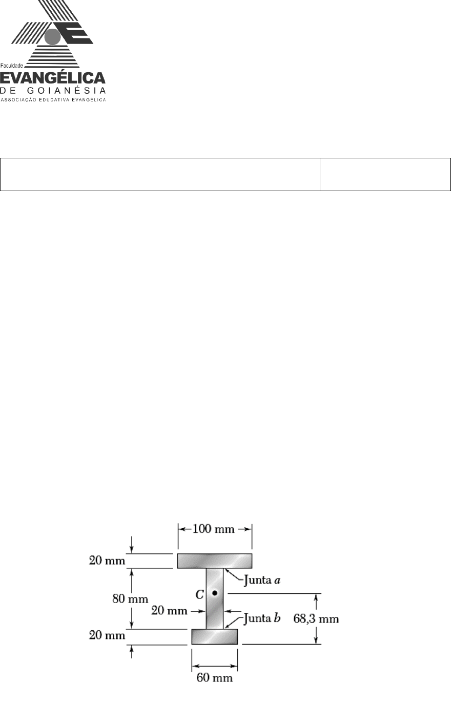
1. A viga é feita de três pranchas coladas entre si e está submetida a uma 
força cisalhante de 3 kN. A localização do centroide da seção é dada na 
figura. 
 
a) Determine a tensão de cisalhamento na junta ‘a’ e ‘b’ (máxima e 
mínima) e a tensão máxima de cisalhamento desenvolvida na viga. 
(4 pontos) 
b) Trace a distribuição de cisalhamento ao longo da viga, utilizando 
os resultados de tensão de cisalhamento obtidos. (1 ponto) 
 
FACULDADE EVANGÉLICA DE GOIANÉSIA – FACEG 
CURSO DE ENGENHARIA MECÂNICA 
MECÂNICA DOS SÓLIDOS II 
PROFA.: MARINÉS GOMES 
 
PRIMEIRA LISTA DE EXERCÍCIOS 
UNIDADE I – CISALHAMENTO TRANSVERSAL 
 
 
2. Uma viga caixão quadrada é feita com duas tábuas de 19 mm x 76 mm e 
duas tábuas de 19 mm x 114 mm, pregadas como mostra a figura. 
Sabendo que o espaçamento entre os pregos é de 45 mm e que a viga 
está submetida a uma força cortante vertical de intensidade V = 2,7 kN, 
determine a força cortante em cada prego. (5 pontos) 
 
 
 
 
 
3. O elemento está sujeito a uma força de cisalhamento V= 2 kN. Determine 
o fluxo de cisalhamento nos pontos A, B e C. A espessura de cada 
segmento de paredes finas é 15 mm. (5 pontos)

Mais conteúdos dessa disciplina