Logo Passei Direto
Buscar

Prova 3 - Desenho Técnico Mecânico - Discursiva

User badge image
Dionei

em

Ferramentas de estudo

Questões resolvidas

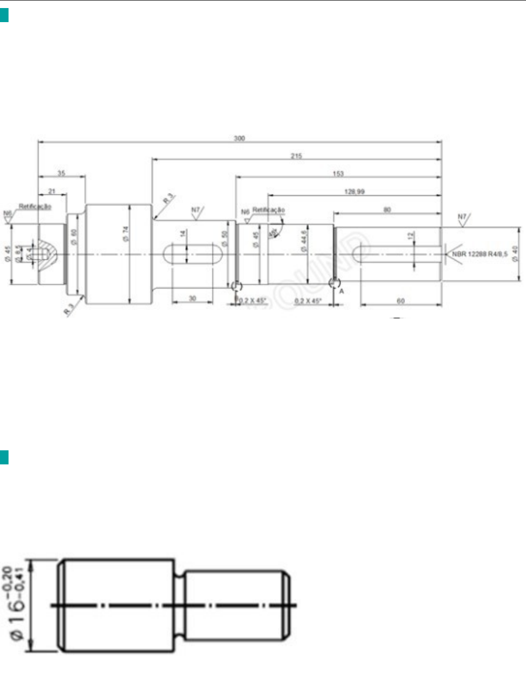
Existe mais de uma maneira de posicionar as cotas no desenho de uma peça. Na maioria das vezes, nem todos os comprimentos da peça recebem cota, pois é possível calcular alguns comprimentos a partir dos outros. Escolher quais comprimentos mostrar pode tornar a leitura e uso do desenho mais difícil ou mais fácil, dependendo do contexto. A figura em anexo representa o desenho técnico de um eixo que será produzido através de processos de usinagem.
Indique se as cotas estão apropriadas para a usinagem do eixo e justifique sua resposta.

A peça a seguir é um eixo que será ajustado a um furo compatível. Para este propósito, o diâmetro do eixo foi especificado com tolerâncias específicas para a sua construção.
Determine os limites superior e inferior do diâmetro indicados na peça.

Material
páginas com resultados encontrados.
páginas com resultados encontrados.
left-side-bubbles-backgroundright-side-bubbles-background

Crie sua conta grátis para liberar esse material. 🤩

Já tem uma conta?

Ao continuar, você aceita os Termos de Uso e Política de Privacidade

left-side-bubbles-backgroundright-side-bubbles-background

Crie sua conta grátis para liberar esse material. 🤩

Já tem uma conta?

Ao continuar, você aceita os Termos de Uso e Política de Privacidade

Questões resolvidas

Existe mais de uma maneira de posicionar as cotas no desenho de uma peça. Na maioria das vezes, nem todos os comprimentos da peça recebem cota, pois é possível calcular alguns comprimentos a partir dos outros. Escolher quais comprimentos mostrar pode tornar a leitura e uso do desenho mais difícil ou mais fácil, dependendo do contexto. A figura em anexo representa o desenho técnico de um eixo que será produzido através de processos de usinagem.
Indique se as cotas estão apropriadas para a usinagem do eixo e justifique sua resposta.

A peça a seguir é um eixo que será ajustado a um furo compatível. Para este propósito, o diâmetro do eixo foi especificado com tolerâncias específicas para a sua construção.
Determine os limites superior e inferior do diâmetro indicados na peça.

Prévia do material em texto

Avaliação Final (Discursiva) - Individual (Cod.:769422) Desenho Técnico Mecânico (EMC102)
Prova 52905488
Período para responder 25/08/2022 - 09/09/2022
Parte superior do formulário
1Existe mais de uma maneira de posicionar as cotas no desenho de uma peça. Na maioria das vezes, nem todos os comprimentos da peça recebem cota, pois é possível calcular alguns comprimentos a partir dos outros. Escolher quais comprimentos mostrar pode tornar a leitura e uso do desenho mais difícil ou mais fácil, dependendo do contexto. A figura em anexo representa o desenho técnico de um eixo que será produzido através de processos de usinagem. Indique se as cotas estão apropriadas para a usinagem do eixo e justifique sua resposta. FONTE DA IMAGEM: https://edisciplinas.usp.br/pluginfile.php/3072842/mod_resource/content/0/DTMI_aula09_comp_transmissao-1.pdf. Acesso em: 14 jun. 2019.
As cotas estão apropriadas sim pois foram indicadas medidas em uma das pontas e a partir delas o torneio consegue fazer seu trabalho e calcular as demais medidas quando necessário.
2A peça a seguir é um eixo que será ajustado a um furo compatível. Para este propósito, o diâmetro do eixo foi especificado com tolerâncias específicas para a sua construção. Determine os limites superior e inferior do diâmetro indicados na peça. FONTE DA IMAGEM: https://www.etecfernandoprestes.com.br/Uploads/Files/Courses/16/Downloads/752-Tolerancia%20Dimensional%20Exercicios.pdf. Acesso em: 31 maio 2019.Parte inferior do formulário
Limite superior: 16 – 0,2 = 15,8 mm.
Limite inferior: 16 – 0,41 = 15,59 mm.

Mais conteúdos dessa disciplina