Logo Passei Direto
Buscar
Material
páginas com resultados encontrados.
páginas com resultados encontrados.
left-side-bubbles-backgroundright-side-bubbles-background

Crie sua conta grátis para liberar esse material. 🤩

Já tem uma conta?

Ao continuar, você aceita os Termos de Uso e Política de Privacidade

Prévia do material em texto

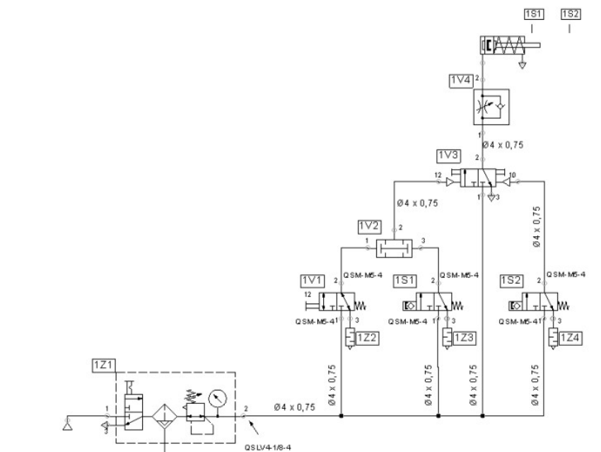
IDENTIFICAÇÃO DE CIRCUITOS PNEUMÁTICOS:
- Elementos de trabalho: número seqüencial + letra A (1A, 2A, 3A, ...) 
-Elementos de tratamento e distribuição do ar comprimido: número seqüencial + letra P ou Z (1P/1Z, 2P/2Z, 3P/3Z, ...) 
- Elemento de comando e válvulas: número do atuador + letra V + número seqüencial (1V1, 1V2, ... 2V1, 2V2, ...) 
- Elementos de sinais (fins de curso): número do atuador + letra S +1 para recuado ou 2 para avançado (1S1, 1S2, ... 2S1, ...) 
- Outros componentes: número do atuador + letra Z + número seqüencial (1Z1, 1Z2, ... 2Z1, ...) 
O diagrama adiante exemplifica tal sistema de identificação:
Fonte: USP – Universidade de São Paulo – Disciplina SEL406.
https://edisciplinas.usp.br/pluginfile.php/2854501/mod_resource/content/1/Notas%20de%20Aula_SEL406_2017_Parte1_Pneum%C3%A1tica.pdf

Mais conteúdos dessa disciplina