Logo Passei Direto
Buscar

Planta Baixa de Edifício com Coworking

Ferramentas de estudo

Material
páginas com resultados encontrados.
páginas com resultados encontrados.

Prévia do material em texto

A = 459.18 m²
LAJE PROTENDIDA
A
SHAFT EXCLUSIVO PARA OS
SISTEMAS DE DRENAGEM E
IRRIGAÇÃO DAS JARDINEIRAS
JARDINEIRAS
VIGAMENTO
SHAFT EXCLUSIVO PARA OS
SISTEMAS DE DRENAGEM E
IRRIGAÇÃO DAS JARDINEIRAS
SHAFT EXCLUSIVO PARA OS
SISTEMAS DE DRENAGEM E
IRRIGAÇÃO DAS JARDINEIRAS
SHAFT EXCLUSIVO PARA OS
SISTEMAS DE DRENAGEM E
IRRIGAÇÃO DAS JARDINEIRAS
JARDINEIRAS
JARDINEIRAS
JARDINEIRAS
JARDINEIRAS
JARDINEIRAS
JARDINEIRAS
JARDINEIRAS
SHAFT EXCLUSIVO PARA OS
SISTEMAS DE DRENAGEM E
IRRIGAÇÃO DAS JARDINEIRAS
SHAFT EXCLUSIVO PARA OS
SISTEMAS DE DRENAGEM E
IRRIGAÇÃO DAS JARDINEIRAS
JARDINEIRAS
JARDINEIRAS
SHAFT EXCLUSIVO PARA OS
SISTEMAS DE DRENAGEM E
IRRIGAÇÃO DAS JARDINEIRAS
SHAFT EXCLUSIVO PARA OS
SISTEMAS DE DRENAGEM E
IRRIGAÇÃO DAS JARDINEIRAS
JARDINEIRAS
JARDINEIRAS
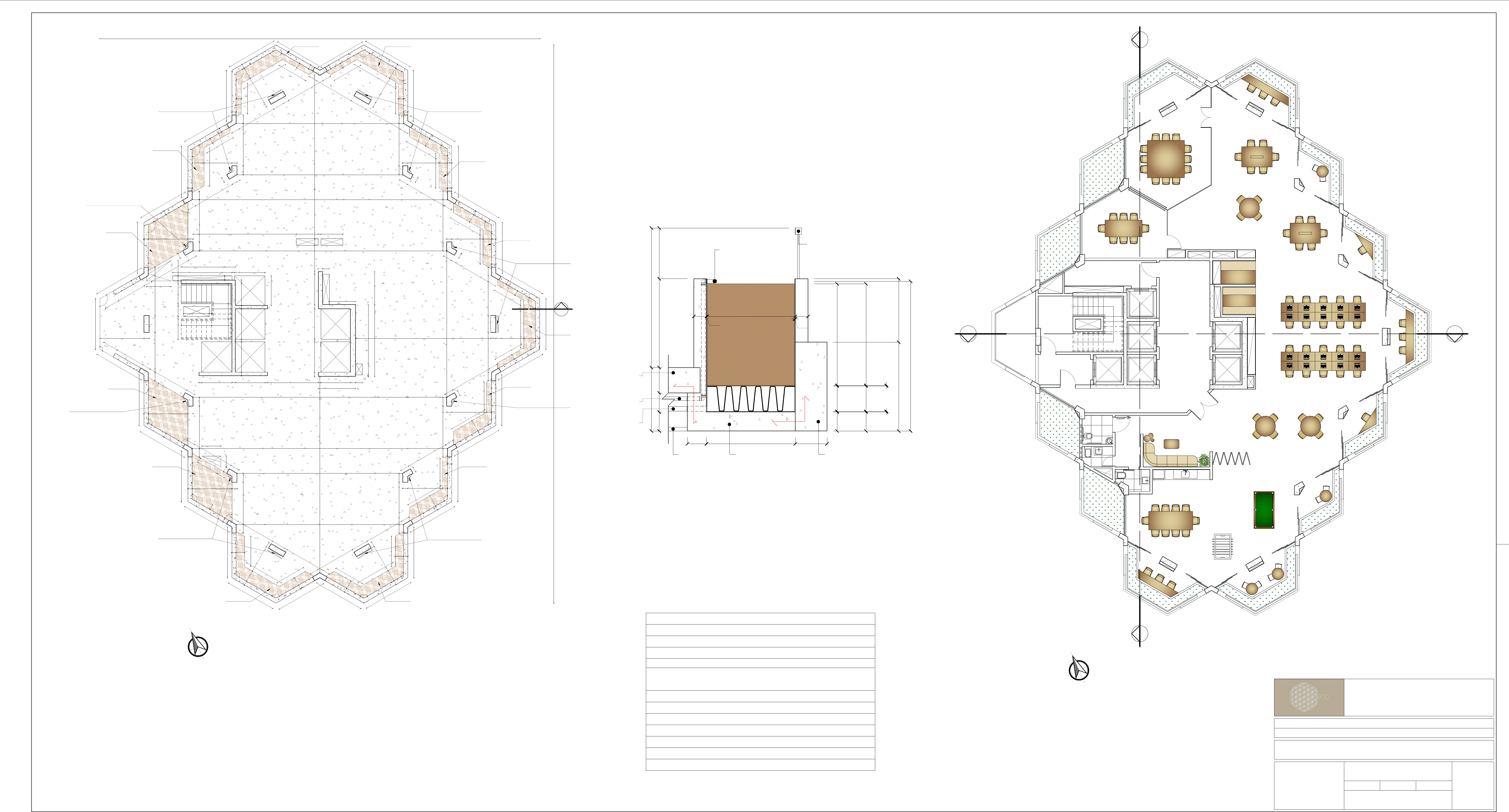
PLANTA BAIXA - ESQUEMA ESTRUTURAL DO EDIFÍCIO 02
ESCALA ........................................ 1/75
N
O
R
T
E
.50.50
.25.25
.30
.30
3.00
3.003.00
3.0
0
3.00
.50
.50
.53
.53
2.36
1.00
2.362.36
1.00
2.36
.50
.30
1.6
5
.70
.25
.25
.25
.50
.30
.30
.50 .251.85
3.0
0
3.00
.50
.50
.53
.53
.25
.25
.50
.30
.30
.50 .251.85
3.0
0
3.0
0
3.00
.50
.50
.25
2.5
0
2.50
2.5
0
2.50
2.3
6
1.0
0
2.3
6
.50
.30 1.65 .70 .25
.25
.30
.30
2.83
1.79
1.7
9
.30
.30
3.00
3.0
0
.50
.30
1.65
.70
.25
.25
2.83
1.79
1.7
9
2.5
0
.53
3.00
.53
.25
.30
.30
.70 1.65
3.0
0
3.00
.50
.50
.53
.53
.25
.25
.30
.30
.25 2.35
3.0
0
3.00
.50
.50
2.50
2.5
0
2.50
2.3
6
1.0
0
2.3
6
.50
.302.60
.25
.30
1.45
.30
.90 3.50 .15 1.80
3.20
.25
.20
1.3
0
.20
1.8
0
.15
1.8
0
.20
1.80 .20 1.75
1.7
5
.15.15 3.00 .15 1.75 .30 .40
.25
1.8
0
.15
1.8
0
.25
1.8
0
.15
1.5
5
.40
9.6
6
1.30 .15 1.30
9.89
9.79
15.09
14.99
.25 .40
1.55
.10
.65
3.5
0
4.2
5
1.9
5
2.20
1.74
.90
3.0
0
3.00 .50
1.74
.90
2.50
.53
.53
2.5
0
.50
.53
3.00
.53
.25
.30
.30
2.35
3.0
0
3.00
.50
.50
.25
.25
.30.25 2.35
3.0
0
2.50
.30
1.2
0
.15
.60
.15
1.2
0
.15
1.2
0
.90
1.2
0
1.80 1.20
7.98
1.31
.48
.65
1.13
2.5
0
.50
.50
2.36
1.00
2.36
.50.50
2.36
1.00
2.36
.50
.30
.30
1.6
5
.70
.25
.25
.25
.50
.50
3.0
0
3.00
3.0
0
3.00
3.0
0
3.00
3.0
0
.50
.53
.53
.30
.30
.30
.25
2.05
2.5
0
.70
2.50
.50
.25
.53
.53
.30
.30
2.50
.50
2.05 .30
.25
2.5
0
.50
.25
.70
.50 .25
3.003.00
1.79 2
.36
1.7
9
.50
.25
1.65
.70
.25
3.0
0
3.00 3.00
1.7
9
2.36
1.79
2.25
1.7
9
2.25
1.7
9
1.79
2.8
3
1.79
2.02
2.0
2
2.02
2.0
2
1.79
2.2
5
25.98
33
.00
14.99
9.79
9.89
11
.61
15.09
6.10
8.6
5
1.50 .15
9
COPA/ SALA
DE ALMOÇO
SALA DE
REUNIÃO/CRIAÇÃO
SALA DE REUNIÃO
A = 313.01 m²
SALÃO 01
ELEV.
SOCIAL
ELEV.
SERV.
ELEV. DE
SEGUR.
SOBE
31
A = 14.89 m²
52 74 6
8
10
11131415 12161718
A = 9.55 m²
LAJE TÉC.
A = 5.58 m²
ANTECÂMARA
ELEV.
SOCIAL
ELEV.
SOCIAL
ELEV.
SOCIAL
A = 2.08 m²
BWC AC.
A = 3.03 m²
LAV.
A = 2.27 m²
LAV.
A = 4.57 m²
CIRC.
ESPAÇO P/
JOGOS
ESTAR
PLANTA BAIXA LAYOUT- PAV. TIPO COWORKING 01
ESCALA ........................................ 1/75
N
O
R
T
E
C
BB
C
P13 P13
P1
4
P1
4
A = 26.02 m²
HALL SOCIAL
ESCADA
ENCLAUS.
A = 7.67 m²
HALL SERV.
A = 8.22 m²
HALL DE EMERG.
A = 5.58 m²
ANTECÂMARA
INST.LÓGICA
OBS.: ACOMPANHAR COTAS NA PLANTA BAIXA DO PAV. TIPO COWORKING 02
S
U
B
S
T
R
A
T
O
M
A
N
T
A
P
E
R
M
E
Á
V
E
L
C
A
M
A
D
A
D
E
D
R
E
N
A
G
E
M
M
A
N
T
A
A
S
F
Á
L
T
I
C
A
A
N
T
I
 
R
A
Í
Z
L
A
J
E
,
8
0
0
,
0
0
5
,
2
0
0
,
0
0
5
,
1
5
0
,
2
0
0
,
7
0
0
,
4
0
0
,
1
5
0
,
1
5
0
1
,
1
0
0
,
7
0
0
,
5
0
0
1
,
1
8
0
,150 ,250
,
5
0
0
,100
VARIÁVEL
,100
,005
,005
,700
GUARDA CORPO
METÁLICO
VIGA EM CONCRETO
ARMADO
ESTRUTURA EM CONCRETO
ARMADO ENGASTADA NA VIGA E
NA LAJE PROTENDIDA
GESSO COBRINDO O
SISTEMA DE DRENAGEM
E IRRIGAÇÃO
ENCANAMENTO
DO SISTEMA
DE DRENAGEM
LAJE
PROTENDIDA
ENCANAMENTO
DO SISTEMA
DE IRRIGAÇÃO
SISTEMA DE IRRIGAÇÃO
AUTOMATIZADA POR
GOTEJAMENTO
CORTE ESQ. A - ESTRUTURA GERAL DAS JARDINEIRAS
ESCALA ........................................ 1/10
COWORKING:
EDIFÍCIO 01:
EDIFÍCIO 02:
QUADRO RESUMO
52 ASSENTOS
AUDITÓRIO 02: 52 ASSENTOS
AUDITÓRIO 01:
4 ANDARES
8 ANDARES COM 40 ESPAÇOS 
1 ANDAR
ESPAÇOS COMERCIAIS:
8 ANDARES COM 12 ESPAÇOS
ESPAÇO INTERATIVO:
ESPAÇOS CORPORATIVOS:
1 ANDAR
RESTAURANTE:
VAGAS DE ESTACIONAMENTO:
12 VAGAS
ESPAÇOS PARA ALUGUEL:
4 ESPAÇOS
2 ANDARES + TETO VERDE CONTEMPLATIVO
24 ANDARES + 4 PAV. DE ESTACIONAMENTO
139 VAGAS PRIVATIVAS
136 VAGAS ROTATIVASVAGAS DE ESTACIONAMENTO:
UNIVERSIDADE FEDERAL DO
DISCENTE:
Centro de Tecnologia
Thamirys Rafaelle Rodrigues Ferraz
PLANTA BAIXA - ESQ. ESTRUTURAL
CORTE ESQUEMÁTICO
RIO GRANDE DO NORTE
Curso de Arquitetura e Urbanismo
ORIENTADORA:
Glauce Lilian Alves de Albuquerque
Trabalho Final de Graduação - ECO. Anteprojeto arquitetônico de um
DESCRIÇÃO:
CONTEÚDO:
centro empresarial para a cidade de Natal/RN 
ENDEREÇO:
DATA: ESCALA:
PRANCHA Nº:
9/18
DIGITALIZAÇÃO:
Av. Governador Juvenal Lamartine x Av. Prudente de Morais,
Tirol, Natal/RN
Indicada
OBSERVAÇÕES:
DIREITOS AUTORAIS RESERVADOS - PROIBIDA QUALQUER MODIFICAÇÃO OU
REPRODUÇÃO NO TODO OU EM QUALQUER PARTE, SEM PRÉVIO CONSENTIMENTO
DO AUTOR, DE ACORDO COM A LEI FEDERAL 9.610/98.
Novembro/2019 Thamirys Ferraz
PLANTA BAIXA - PAV. COWORKING 01
	Sheets and Views
	Plot