Logo Passei Direto
Buscar
Material
páginas com resultados encontrados.
páginas com resultados encontrados.
left-side-bubbles-backgroundright-side-bubbles-background

Experimente o Premium!star struck emoji

Acesse conteúdos dessa e de diversas outras disciplinas.

Libere conteúdos
sem pagar

Ajude estudantes e ganhe conteúdos liberados!

Prévia do material em texto

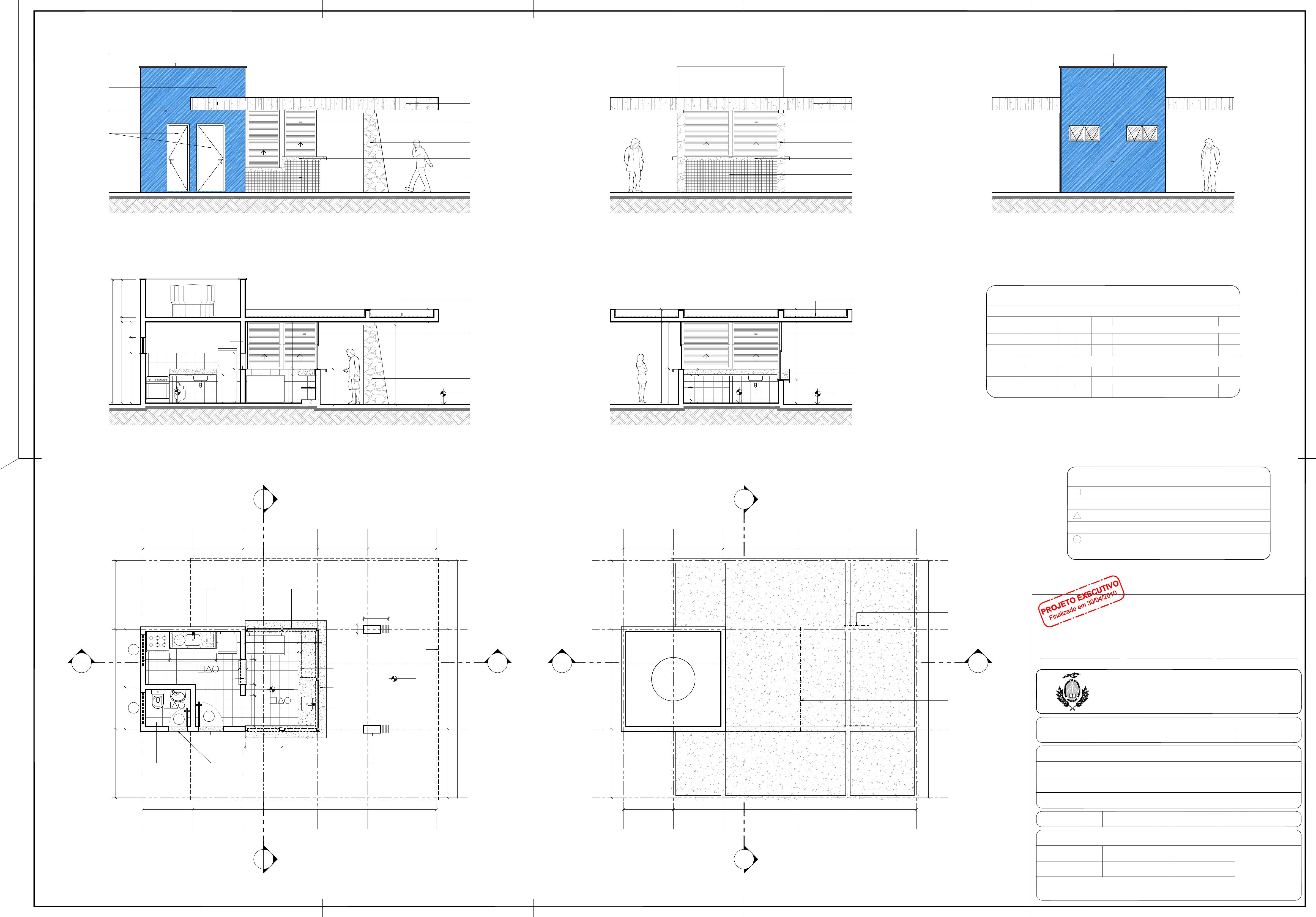
PORTA DE MADEIRA MACIÇA
ENVERNIZADA NA COR NATURAL
REVESTIMENTO TEXTURIZADO
RÚSTICO COR AZUL ESCURO
(PADRÃO CCHLA)
CHAPIM DE CONCRETO
PINTURA NA COR CONCRETO
JANELA DE MADEIRA TIPO
GUILHOTINA ENVERNIZADA
NA COR NATURAL
REVESTIMENTO EM PEDRA
GRANÍTICA FACEJADA
BANCADA EM GRANITO
CINZA ANDORINHA
REVESTIMENTO CERÂMICO
CREME 5x5cm
REVESTIMENTO
TEXTURIZADO RÚSTICO
COR AZUL ESCURO
(PADRÃO CCHLA)
CHAPIM DE
CONCRETO
JANELA DE MADEIRA TIPO
GUILHOTINA ENVERNIZADA
NA COR NATURAL
REVESTIMENTO EM PEDRA
GRANÍTICA FACEJADA
BANCADA EM GRANITO
CINZA ANDORINHA
REVESTIMENTO CERÂMICO
CREME 5x5cm
PINTURA COR CONCRETO PINTURA COR CONCRETO
COZINHA ATEND.
1.
60
.5
0
.5
0
1.
20
2.
60
.1
5
3.
95
1.
10
.5
0
.9
0
.9
0 1.
15
.2
0
1.
50
2.
65
.1
5.
25
2.
55
.1
0
0.05 0.00
.4
0
.4
0
.1
0 ATEND.
.7
5
1.
85
.1
5.
25
1.
10
1.
50
.4
0
.1
0
.4
0
.4
0
.2
0
.9
0 0.05
2.
60
0.00
RESERVATÓRIO LAJE IMPERMEABILIZADA
REVESTIMENTO EM PEDRA
GRANÍTICA FACEJADA
JANELA DE MADEIRA TIPO
GUILHOTINA ENVERNIZADA
NA COR NATURAL
BANCADA GRANITO
CINZA ANDORINHA
LAJE IMPERMEABILIZADA
BANCADA GRANITO
CINZA ANDORINHA
JANELA DE MADEIRA TIPO
GUILHOTINA ENVERNIZADA
NA COR NATURAL
CAMADA
IMPERMEABILIZANTE
CAMADA
IMPERMEABILIZANTE
COZINHA
A=5,18m²
HALL
A=2,11m²
ATEND.
A=6,86m²
W.C.
A=1,74m²
0.05
0.00
3.20 2.40 1.60 2.20
1.
85
1.
35
3.
20
2.
20
2.
20
2.
20
3.
20
2.
20
7.
60
7.801.60
1.18
1.
00
.3
5
.8
0
1.
05
.25
1.70 .55 .15
.4
0
.45.10
1.50 .78.78
P01
P02
J01
J01
.80
.2
5
6.203.20
1.60 7.80
2.
20
3.
20
2.
20
7.
60RESERVATÓRIO
SUPERIOR
LAJE
IMPERMEABILIZADA
SILHUETA
DO PILAR
SILHUETA DA
EDIFICAÇÃO
SILHUETA DA
PRATELEIRA
SILHUETA
DA PAREDE
BANCADA GRANITO
CINZA ANDORINHA
PASSAGEM
PROJEÇÃO DA
COBERTURA
SOLEIRA GRANITO
CINZA ANDORINHA
PILAR REVESTIDO COM PEDRA
GRANÍTICA FACEJADA
BANCADA EM GRANITO
CINZA ANDORINHA
11 1
11 1
11 1
JANELA DE MADEIRA TIPO
GUILHOTINA ENVERNIZADA
NA COR NATURAL
WC DE USO
RESTRITO
PROJEÇÃO DE COBERTURA
01
A
01
A
01
B
01
B
01
C
01
D
01
C
01
D
TETO
PAREDE
CERÂMICA 30x30cm BRANCA ATÉ 1.60m + PINTURA COM TINTA ACRÍLICA BRANCA
SOBRE REVESTIMENTO DE MASSA CORRIDA01
01
PISO
ESPECIFICAÇÕES
CERÂMICA 30x30cm BRANCA PEI4 ANTIDERRAPANTE
01 PINTURA COM TINTA LÁTEX PVA BRANCA SOBRE REVESTIMENTO DE MASSA CORRIDA
DIMENSÃO VÃO
Alt.
JANELAS
ESQ. ABERTURA
Larg.
PEITORIL QUANT
QUADRO DE ESQUADRIAS
2.10
Alt.
DIMENSÃO VÃO
0.80GIRO
Larg.
ABERTURA
P.01
ESQ.
PORTAS
MATERIALBANDEIR.
MADEIRA MACIÇA ENVERNIZADA NA COR NATURAL 01
QUANT
2.100.60GIROP.02 -
MATERIAL
*CONFERIR MEDIDA DO VÃO NO LOCAL
0.501.00 1.60MAXIMARJ.01 CAIXILHO EM ALUMÍNIO COR NATURAL E VIDROTRANSPARENTE 4mm
01
02
-
MADEIRA MACIÇA ENVERNIZADA NA COR NATURAL
FACHADA LATERAL
ESCALA 1/50
FACHADA FRONTAL
ESCALA 1/50
FACHADA POSTERIOR
ESCALA 1/50
CORTE AB
ESCALA 1/50
CORTE CD
ESCALA 1/50
PLANTA BAIXA
ESCALA 1/50
PLANTA DE COBERTA
ESCALA 1/50
DANIEL FERNANDES DE MACEDO 210038094-0
ARQUITETURA
PLANTAS BAIXAS / CORTES / FACHADAS
URBANIZAÇÃO DO SETOR DE AULAS II
CANTINAS
UFRN - CAMPUS CENTRAL
SETOR DE AULAS II - CENTRO DE CIÊNCIAS HUMANAS, LETRAS E ARTES (CCHLA)
AUTOR: DANIEL FERNANDES DE MACEDO
ARQUITETO - CREA 210038094-0
RESPONSÁVEL PELA OBRA
CIC Nº 365.873.624-00
REPRESENTANTE LEGAL: GUSTAVO F. R. COELHO
UNIVERSIDADE FEDERAL
DO RIO GRANDE DO NORTE
Superintendência de Infra-estrutura
DATA ESCALA(S)
OBSERVAÇÕES
PRANCHA Nº
DIGITALIZAÇÃO
SUPERINTENDENTE
ENG. GUSTAVO FERNANDES ROSADO COELHO
CIC Nº
365.873.624-00
REQUISIÇÃO SIPAC NºPROCESSO SIPAC Nº
AUTOR DO PROJETO CREA Nº
ART Nº
PROJETO
LOCAL
OBRA
ASSUNTO
ÁREA CONSTRUÍDA ATUAL ÁREA REFORMADA ÁREA AMPLIADA
ARQUIVO
ÁREA CONSTRUÍDA TOTAL
5521/200923077.042350/2009-00
JANEIRO/2010 INDICADA DANIEL MACEDO
-
- - -
12/16
42,74m²
DÚVIDAS SOBRE O PROJETO: CONTATE O(A) ARQUITETO(A) - UFRN/SIN - TEL.: 3215 3162
DIREITOS AUTORAIS RESERVADOS - PROIBIDA QUALQUER MODIFICAÇÃO OU REPRODUÇÃO NO TODO
OU EM PARTE, SEM PRÉVIO CONSENTIMENTO DO AUTOR, DE ACORDO COM A LEI FEDERAL 9.610/98.

Mais conteúdos dessa disciplina