Logo Passei Direto
Buscar
Material
páginas com resultados encontrados.
páginas com resultados encontrados.
left-side-bubbles-backgroundright-side-bubbles-background

Crie sua conta grátis para liberar esse material. 🤩

Já tem uma conta?

Ao continuar, você aceita os Termos de Uso e Política de Privacidade

Prévia do material em texto

50
20 40 20
1.60
80
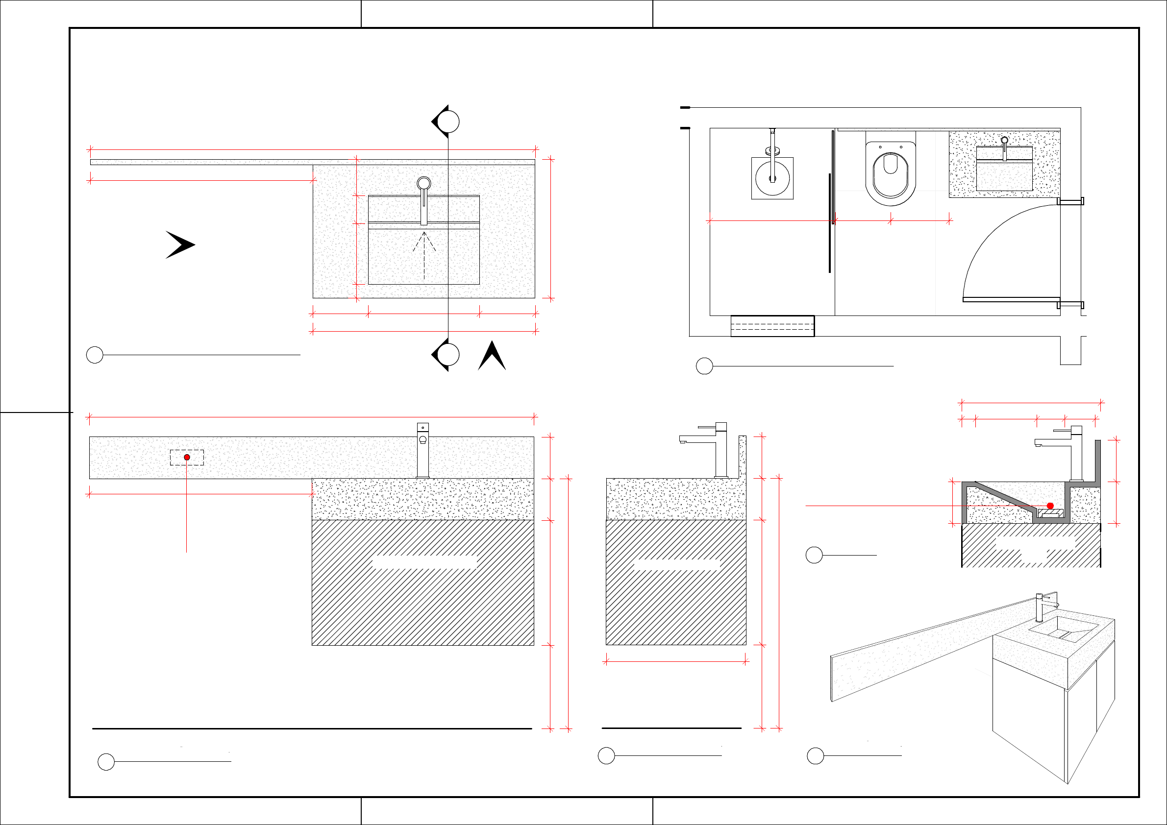
PLANTA BAIXA - LAVATÓRIO ESCULPIDO
ESCALA 1:10
01 B
B
5
22
1
0
13
V2
V
1
80
40
PLANTA BAIXA - BANHEIRO SOCIAL
ESCALA 1:20
06
4290
CORTE BB
ESCALA 1:10
04
PEDRA REMOVÍVEL 
PARA LIMPEZA
ARMÁRIO EM 
MDF
15
15
15
5 22 10 11
50
ARMÁRIO EM MDFCONFERIR NO LOCAL A POSIÇÃO 
DA VÁLVULA DE DESCARGA - TUBULAÇÃO 
EM ETAPA DE OBRA
15
45
90
15
V2 - VISTA FRONTAL
ESCALA 1:10
02
1.60
80
30
ARMÁRIO EM MDF
15
15
45
30
90
V1 - VISTA LATERAL
ESCALA 1:10
03
50
PERSPECTIVA
05
OBS.: PROJETO DESENVOLVIDO ANTES DA FINALIZAÇÃO DA OBRA, PODE HAVER DIFERENÇAS NAS MEDIDAS. CABE AO PROFISSIONAL DE MARMORARIA FAZER A CONFERÊNCIA 
 IN LOCO.
MATERIAL: BANCADA ESCULPIDA FEITA EM GRANITO PRETO SÃO GABRIEL OU OUTRO A SER DEFINIDO DIRETAMENTE COM O CLIENTE.

Mais conteúdos dessa disciplina