Logo Passei Direto
Buscar
Material
páginas com resultados encontrados.
páginas com resultados encontrados.
left-side-bubbles-backgroundright-side-bubbles-background

Crie sua conta grátis para liberar esse material. 🤩

Já tem uma conta?

Ao continuar, você aceita os Termos de Uso e Política de Privacidade

Prévia do material em texto

Universidade Federal de Campina Grande 
Centro Tecnologia e Recursos Naturais 
Unidade Acadêmica de Engenharia Civil 
Área de Sist. Estrut. e Construção Civil 
Disciplina: Teoria das Estruturas 
Prof. Marco A. T. Lima 
Período 2020.3 
1º EXERCÍCIO ESCOLAR 
NOTA 
 
ALUNO (A) 
 
Data: 01/10/2020 
 
Obs.: Início: 10 h 
 Término: 12h30min 
 Valor das questões entre colchetes. 
 Manter a câmera do computador ligada durante a realização da prova. 
 A prova é individual. 
 
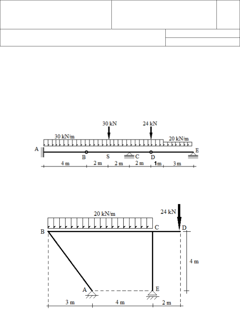
Determinar os diagramas de Esforços Cortantes e Momentos Fletores das estruturas abaixo. 
 
1) [5] 
 
 
 
2) [5] 
 
 
 
Boa Prova!

Mais conteúdos dessa disciplina