Logo Passei Direto
Buscar

Atividade de pesquisa 01 Interpretaçao de desenho tecnico

User badge image
Lucas Ávila

em

Material
páginas com resultados encontrados.
páginas com resultados encontrados.
left-side-bubbles-backgroundright-side-bubbles-background

Crie sua conta grátis para liberar esse material. 🤩

Já tem uma conta?

Ao continuar, você aceita os Termos de Uso e Política de Privacidade

left-side-bubbles-backgroundright-side-bubbles-background

Crie sua conta grátis para liberar esse material. 🤩

Já tem uma conta?

Ao continuar, você aceita os Termos de Uso e Política de Privacidade

left-side-bubbles-backgroundright-side-bubbles-background

Crie sua conta grátis para liberar esse material. 🤩

Já tem uma conta?

Ao continuar, você aceita os Termos de Uso e Política de Privacidade

Prévia do material em texto

Atividade de Pesquisa 01: Interpretação de Desenho Técnico 
QUESTÕES
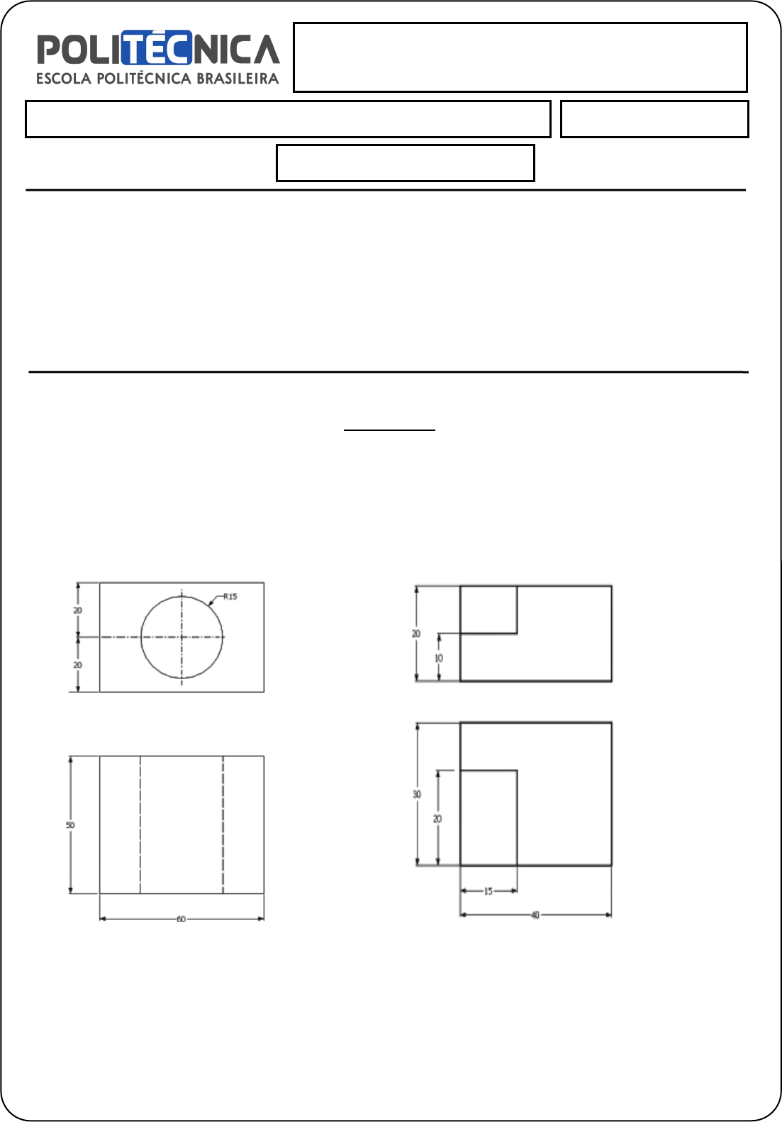
1. Desenhe as perspectiva cavaleira das peças abaixo: (VF,VS)
Obs.: Cotas em mm
a) Inclinação 30° b) Inclinação 45°
 
 
ORIENTAÇÕES:
 Esta Atividade contém 02 questões, totalizando 10 pontos.
 Ler atentamente as instruções contidas no documento é de fundamental importância na realização da avaliação.
 Você deve preencher dos dados no Cabeçalho para sua identificação - Nome / Data de entrega
 Ao terminar grave o arquivo com o nome Atividade de Envio (nome do aluno).
 A nota será lançada no sistema.
 O prazo de correção é de até 07 (sete) dias úteis. 
 Envie o arquivo pelo sistema em formato digital em PDF ou WORD.
 Todos os desenhos devem ser feitos a mão.
Bons Estudos!
Atividade de Pesquisa 01
Data: 26/09/2023Aluno (a): Mateus Araujo Homem
Interpretação de Desenho Técnico
Atividade de Pesquisa 01: Interpretação de Desenho Técnico 
Atividade de Pesquisa 01: Interpretação de Desenho Técnico 
2. Desenhe à mão livre a perspectiva cavaleira da peça abaixo.
Obs.: Inclinação de 30°

Mais conteúdos dessa disciplina