Logo Passei Direto
Buscar
Material
páginas com resultados encontrados.
páginas com resultados encontrados.
left-side-bubbles-backgroundright-side-bubbles-background

Crie sua conta grátis para liberar esse material. 🤩

Já tem uma conta?

Ao continuar, você aceita os Termos de Uso e Política de Privacidade

Prévia do material em texto

N
ALPENDRE PELE DE VIDRO
Guarda corpo h=1,10m
LAJE TÉCNICA
MEZANINO SALA 01 
A: 372,07 m2 
SALA 03 
A: 427,29 m2 
BWC FEM
ÁREA
7,52 m2
BWC MASC
ÁREA
7,52 m2
BWC FEM
ÁREA
7,52 m2
BWC MASC
ÁREA
7,52 m2
BWC PCD
ÁREA
4,69 m2
BWC PCD
ÁREA
4,69 m2
SALA ADMINISTRATIVA
PARA MEDICINA
PREVENTIVA
A: 47,04 m²
SALA DE
ATENDIMENTO
PSICO
A: 18,53 m²
BIOIMPEDANCIA
A: 10,44 m²
DEPÓSITO
A: 6,78m²
CONSULTÓRIO M.P.
A: 17,73 m²
ROUPARIA
A: 18,53 m²
SALA DE ATENDIMENTO
FONO
A: 18,96 m²
CONSULTÓRIO NUTRI
A: 10,38 m²
DML
A: 2,87 m²
EXPURGO
A: 4,47 m²
SALA TI
(piso elevado)
A: 6,71 m²
H 30 CM
COZINHA
TERAPEUTAS
A: 28,85 m²
ESPERA
SECUNDÁRIA
12 LUGARES
A: 41,16 m²
CONSULTÓRIO NUTRI
A: 10,49 m²
SALA DE
ATENDIMENTO
PSICO
A: 19,09 m²
SALA DE
ATENDIMENTO
PSICO
A: 19,09 m²
DEPÓSITO
A: 5,19 m²
BOX DE
COLETA
A: 7,45m²
TRIAGEM
A: 8,90m²
BOX DE
COLETA
A: 3,44m²
BOX DE
COLETA
A: 3,57m²
BOX DE
COLETA
ACESSÍVEL
A: 7,90m²
BOX DE
COLETA
A: 3,57m²
SALA DE
ARMAZ.
AMOSTRAS
A: 3,28m²
DML
A: 2,88m²
EXPURGO
A: 4,47m²
SALA DE
CLASSIF.
AMOSTRAS
A: 4,50m²DESJEJUM
A: 9,31m²
SALA DE NEURO
A: 24,75 m²
SALA PEDIA SUIT
A: 14,83 m²
PILATES
A: 73,16 m²
SAD
A: 26,30 m²
BWC
A:2,40m²
m
ic
ro
on
da
s
COPA
FUNCIONÁRIOS
A: 33,17 m²
COORDENAÇÃO
A: 15,66 m²
SALA DE REUNIÃO
A: 23,21m²
fogão
eletrico
Curvas
Glicemicas
A: 16,47m²
4,65
4,65
3,20
1,80
1,50
3,59 1,04 0,21 1,04 0,21 2,49 2,35 1,50
3,
56
3,
56
4,62
3,
67
3,
673,
56
2,20 2,34
2,
05
1,
35
2,
10
0,
11
0,
15
1,
00
0,
52
1,
00
1,
00
2,13
0,11
6,92
2,
90
5,11
1,00
2,58 0,11 1,56 0,11 1,59 0,11 1,59 0,20 1,04 3,41 1,04 2,38
2,
40 2,
29
2,
25
2,
25
2,
25
0,11 2,58 0,11 1,56 0,11 1,59 0,11 1,59 0,11 3,19 1,04 0,110,11 2,10 0,11 2,80 0,11
2,
252,
14
0,
10
2,
14
2,
84
1,81
1,50 3,50
8,00
2,22
0,
23
1,
00
0,
85
0,
11
3,
87
3,
74
6,
29
1,00 0,28 1,00 3,40 8,03
2,
31
0,35 1,05
4,
82
4,
414,
30
1,
05
0,
10
0,16 0,152,80
8,44
3,63
1,85
1,
30
1,
41
0,
80
2,09
0,
18
1,
03
0,
96
0,23
1,11
0,42
1,
51
0,11 1,00
Material de
expediente
A: 2,80m²
Quadros, registros
e hidrante
Quadros, registros
e hidrante
Porta de giro
150x210
Porta de giro
150x210
FI
LT
R
O
D
E 
ÁG
U
A
ca
fe
te
ira
FI
LT
R
O
D
E 
ÁG
U
A
ca
fe
te
ira
FI
LT
R
O
D
E 
ÁG
U
A
PCF60
PCF60
PCF60
PCF60
FILTRO
DE ÁGUAcafeteira
0,
85
CENTRIFUGA
impressora
etiquetas
impressora
etiquetas
impressora
etiquetas
balança de
bioimpedancia
balançabalança
IM
PR
ESSO
R
A
IM
PR
ES
SO
R
A
IM
PR
ES
SO
R
A
IM
PR
ES
SO
R
A
IM
PR
ES
SO
R
A
IM
PR
ES
SO
R
A IM
PR
ES
SO
R
A
IM
PR
ESSO
R
A
BWC
ACESSIVEL
A: 4,29m²
P1P1P1P1P1
P1 P1 P1 P1 P1
P5 P5 P5
P1
P1
P1
P1
P1
P1
P1 P1
0,90
P6
P5
P5
P5
P5 P5
P5 P5
P1
P7
P5
0,80
IMPRESSORA
LEGENDA
1.1 1.1 1.1
1.2 1.2 1.3
1.41.11
1.12
1.13
1.14
1.15
1.17
1.23
1.18
1.19
1.24
1.24
1.25
1.25
1.28
1.28
1.29
1.291.29
1.31
1.35
1.39
1.40
1.41
1.42
1.44
1.36
1.46
1.47
1.48
4,82
1,
00
1,
00
1,
00
1,
00
1,
69
1,
69
1,
69
CIRC 
A: 36,58 m2 
Porta de giro
150x210
Porta de giro
150x210
MAPA
TÁTIL
OBSERVAÇÕES PROJETOS DE REFERÊNCIA NOTAS
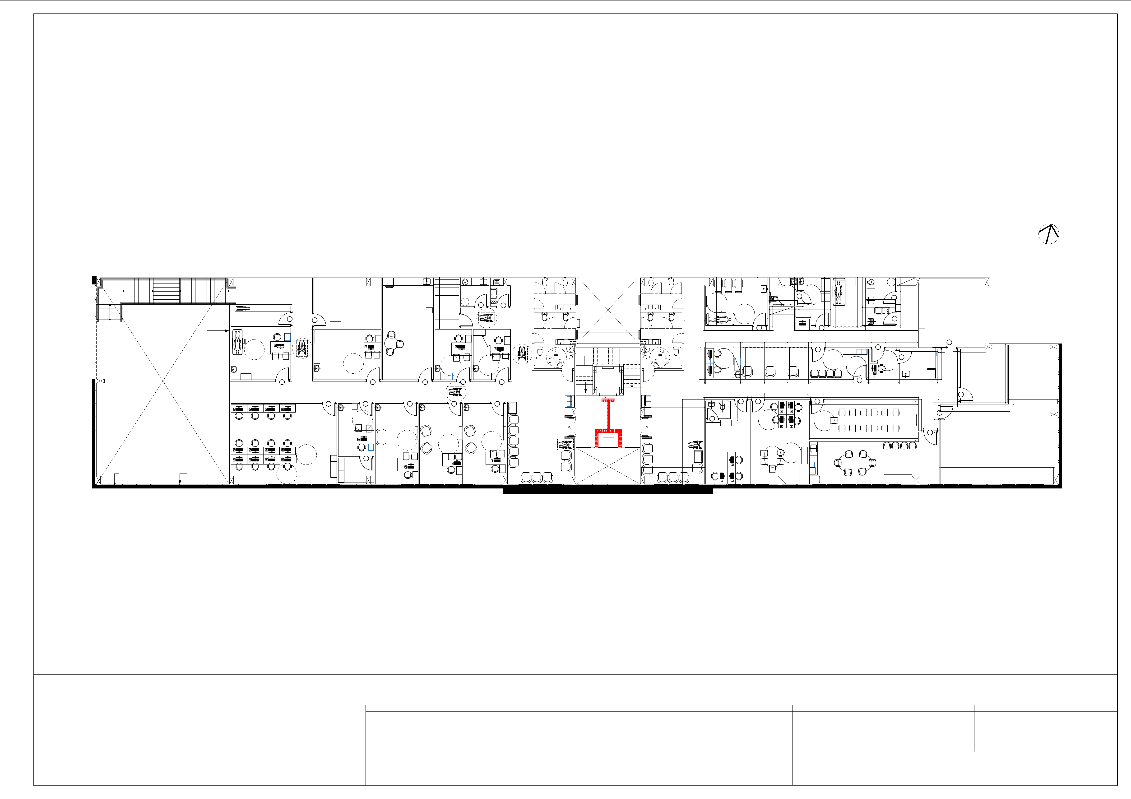
PLANTA BAIXA - PRIMEIRO SUPERIOR
ESCALA: 1/100
	Sheets and Views
	Layout1

Mais conteúdos dessa disciplina