Logo Passei Direto
Buscar
Material
páginas com resultados encontrados.
páginas com resultados encontrados.
left-side-bubbles-backgroundright-side-bubbles-background

Crie sua conta grátis para liberar esse material. 🤩

Já tem uma conta?

Ao continuar, você aceita os Termos de Uso e Política de Privacidade

Prévia do material em texto

D
C/
 S
O
LE
IR
A
Abaixo
3.42 m²
W.C PCD
2.00 m²
W.C
2.00 m²
W.C
13.25 m²
CHURRASQUEIRA
5.48 m²
PLAYGROUND
71.80 m²
QUADRA POLIESPORTIVA
23.36 m²
PET PLACE
11.25 m²
JARDIM
28.94 m²
P. ADULTO
11.25 m²
PRAINHA
11.17 m²
P. INFANTIL
66.95 m²
SOLARIO
13.83 m²
JARDIM 2.50 m²
C. BOMBAS
13
.3
8 
m
²
ES
PA
ÇO
 C
O
N
VI
VÊ
N
CI
A
57.35 m²
CIRCULAÇÃO
TE
RR
AÇ
O
6.
95
 m
²
SALA DE JOGOS
36.24 m²
ACADEMIA
40.61 m²
CIRCULAÇÃO
36.34 m²
SA
LA
 D
E 
PR
ES
SU
RI
ZA
ÇÃ
O
11
.0
4 
m
²
BRINQUEDOTECA
17.23 m²
CI
RC
U
LA
ÇÃ
O
11
.5
7 
m
²
SALÃO DE FESTAS
43.57 m²
COPA-FESTAS
6.03 m²
TE
RR
AÇ
O
4.
23
 m
²
A.C
2.31 m²
DG12
701
DG15
701
DG14
701
DG16
701
DG17
701
DG18
701
DG19
701
AV. BRIGADEIRO FARIA LIMA, 1597 - 2º ANDAR
SÃO PAULO | SP| BRASIL | CEP: 01452-917
WWW.STUDIOMEP.COM.BR
DESCRIÇÃODATAREV. VISTORESP.
EMPREENDIMENTO - OBRAPROJETO
Nº REV.ASSUNTO/SETOR Nº - FOLHA
ARQUIVODATAESCALA
ASSUNTO
NOME DO ARQUIVO
CODIGO OBRA
PROJETISTA
PROJETO No.
RESP. PROJETO
CAMPOS RELATIVOS AO ESCRITÓRIO DO PROJETISTA RESPONSÁVEL
BOSQUE DAS CEREJEIRAS
2020
H724
FURAÇÃO DAS LAJES PARA PASSAGEM DE TUBULAÇÕES NO PAV. TÉRREO
FURAÇÕES DAS LAJES
R02CER
PROJETO EXECUTIVO
INSTALAÇÕES HIDRÁULICAS
CER-PE-HID-H724-R02.dwg13/12/2022
ÁREA DO PAVIMENTODESENHISTA (CAD) ÁREA TOTAL
----Rafael Colino
Edifício Residencial
Rua Cachoeira da Ilha
São Paulo SP
Andre Alpp
1:50
00
01
02
03
04
05
06
07
FURAÇÕES DE LAJES PARA PASSAGEM DE TUBOS NO PAVIMENTO TÉRREO
ESCALA 1:50
PE-HID
08/01/2021
23/11/2022
13/12/2022
REVISÃO CONFORME COMENTÁRIOS
REVISÃO CONFORME COMENTÁRIOS
EMISSÃO INICIAL
AutoCAD SHX Text
EP-D
AutoCAD SHX Text
%%C100mm
AutoCAD SHX Text
PVC-R
AutoCAD SHX Text
PVC-R
AutoCAD SHX Text
%%C100mm
AutoCAD SHX Text
EP3
AutoCAD SHX Text
EP4
AutoCAD SHX Text
%%C100mm
AutoCAD SHX Text
PVC-R
AutoCAD SHX Text
EP5
AutoCAD SHX Text
%%C100mm
AutoCAD SHX Text
PVC-R
AutoCAD SHX Text
EP7
AutoCAD SHX Text
%%C100mm
AutoCAD SHX Text
PVC-R
AutoCAD SHX Text
PVC-R
AutoCAD SHX Text
%%C100mm
AutoCAD SHX Text
EP8
AutoCAD SHX Text
PVC-R
AutoCAD SHX Text
%%C100mm
AutoCAD SHX Text
EP9
AutoCAD SHX Text
ESL1
AutoCAD SHX Text
%%C75mm
AutoCAD SHX Text
PVC-R
AutoCAD SHX Text
TG1
AutoCAD SHX Text
%%C75mm
AutoCAD SHX Text
PVC-R
AutoCAD SHX Text
TV1
AutoCAD SHX Text
%%C75mm
AutoCAD SHX Text
PVC-R
AutoCAD SHX Text
TV3
AutoCAD SHX Text
%%C75mm
AutoCAD SHX Text
PVC-R
AutoCAD SHX Text
TV4
AutoCAD SHX Text
%%C75mm
AutoCAD SHX Text
PVC-R
AutoCAD SHX Text
PVC-R
AutoCAD SHX Text
%%C75mm
AutoCAD SHX Text
TV5
AutoCAD SHX Text
PVC-R
AutoCAD SHX Text
%%C75mm
AutoCAD SHX Text
TV7
AutoCAD SHX Text
PVC-R
AutoCAD SHX Text
%%C75mm
AutoCAD SHX Text
TV8
AutoCAD SHX Text
PVC-R
AutoCAD SHX Text
%%C75mm
AutoCAD SHX Text
TV9
AutoCAD SHX Text
ESL6
AutoCAD SHX Text
%%C75mm
AutoCAD SHX Text
PVC-R
AutoCAD SHX Text
PVC-R
AutoCAD SHX Text
%%C75mm
AutoCAD SHX Text
TV11
AutoCAD SHX Text
PVC-R
AutoCAD SHX Text
%%C75mm
AutoCAD SHX Text
TG6
AutoCAD SHX Text
TG5-A
AutoCAD SHX Text
%%C75mm
AutoCAD SHX Text
PVC-R
AutoCAD SHX Text
TV10-A
AutoCAD SHX Text
%%C75mm
AutoCAD SHX Text
PVC-R
AutoCAD SHX Text
PVC-R
AutoCAD SHX Text
%%C75mm
AutoCAD SHX Text
ESL5-A
AutoCAD SHX Text
ESL5-B
AutoCAD SHX Text
%%C75mm
AutoCAD SHX Text
PVC-R
AutoCAD SHX Text
PVC-R
AutoCAD SHX Text
%%C75mm
AutoCAD SHX Text
TV10-B
AutoCAD SHX Text
PVC-R
AutoCAD SHX Text
%%C75mm
AutoCAD SHX Text
TG5-B
AutoCAD SHX Text
ESL3-A
AutoCAD SHX Text
%%C75mm
AutoCAD SHX Text
PVC-R
AutoCAD SHX Text
TG3-A
AutoCAD SHX Text
%%C75mm
AutoCAD SHX Text
PVC-R
AutoCAD SHX Text
TV14-A
AutoCAD SHX Text
%%C75mm
AutoCAD SHX Text
PVC-R
AutoCAD SHX Text
PVC-R
AutoCAD SHX Text
%%C75mm
AutoCAD SHX Text
TG3-b
AutoCAD SHX Text
PVC-R
AutoCAD SHX Text
%%C75mm
AutoCAD SHX Text
ESL3-b
AutoCAD SHX Text
PVC-R
AutoCAD SHX Text
%%C75mm
AutoCAD SHX Text
TV14-b
AutoCAD SHX Text
PVC-R
AutoCAD SHX Text
%%C100mm
AutoCAD SHX Text
EP6
AutoCAD SHX Text
PVC-R
AutoCAD SHX Text
%%C75mm
AutoCAD SHX Text
TV14
AutoCAD SHX Text
ESL4
AutoCAD SHX Text
%%C75mm
AutoCAD SHX Text
PVC-R
AutoCAD SHX Text
TG4
AutoCAD SHX Text
%%C75mm
AutoCAD SHX Text
PVC-R
AutoCAD SHX Text
TV6
AutoCAD SHX Text
%%C75mm
AutoCAD SHX Text
PVC-R
AutoCAD SHX Text
EP2
AutoCAD SHX Text
%%C100mm
AutoCAD SHX Text
PVC-R
AutoCAD SHX Text
TV12
AutoCAD SHX Text
%%C75mm
AutoCAD SHX Text
PVC-R
AutoCAD SHX Text
PVC-R
AutoCAD SHX Text
%%C75mm
AutoCAD SHX Text
TV2
AutoCAD SHX Text
PVC-R
AutoCAD SHX Text
%%C75mm
AutoCAD SHX Text
TG2
AutoCAD SHX Text
PVC-R
AutoCAD SHX Text
%%C75mm
AutoCAD SHX Text
ESL2
AutoCAD SHX Text
PVC-R
AutoCAD SHX Text
%%C100mm
AutoCAD SHX Text
TG-A
AutoCAD SHX Text
PVC-R
AutoCAD SHX Text
%%C100mm
AutoCAD SHX Text
TG-B
AutoCAD SHX Text
PVC-R
AutoCAD SHX Text
%%C100mm
AutoCAD SHX Text
TG-C
AutoCAD SHX Text
PVC-R
AutoCAD SHX Text
%%C100mm
AutoCAD SHX Text
TG-D
AutoCAD SHX Text
ESL-D
AutoCAD SHX Text
%%C100mm
AutoCAD SHX Text
PVC-R
AutoCAD SHX Text
EP-C
AutoCAD SHX Text
%%C150mm
AutoCAD SHX Text
PVC-R
AutoCAD SHX Text
PVC-R
AutoCAD SHX Text
%%C150mm
AutoCAD SHX Text
EP-A
AutoCAD SHX Text
PVC-R
AutoCAD SHX Text
%%C100mm
AutoCAD SHX Text
ESL-A
AutoCAD SHX Text
ESL-C
AutoCAD SHX Text
%%C100mm
AutoCAD SHX Text
PVC-R
AutoCAD SHX Text
PVC-R
AutoCAD SHX Text
%%C100mm
AutoCAD SHX Text
ESL-B
AutoCAD SHX Text
PVC-R
AutoCAD SHX Text
%%C150mm
AutoCAD SHX Text
EP-B
AutoCAD SHX Text
T.4
AutoCAD SHX Text
T.4
AutoCAD SHX Text
T.4
AutoCAD SHX Text
T.4
AutoCAD SHX Text
T.4
AutoCAD SHX Text
T.4
AutoCAD SHX Text
T.4
AutoCAD SHX Text
T.4
AutoCAD SHX Text
T.5
AutoCAD SHX Text
T.5
AutoCAD SHX Text
T.5
AutoCAD SHX Text
T.4
AutoCAD SHX Text
T.4
AutoCAD SHX Text
T.4
AutoCAD SHX Text
T.4
AutoCAD SHX Text
T.4
AutoCAD SHX Text
T.4
AutoCAD SHX Text
T.4
AutoCAD SHX Text
T.4
AutoCAD SHX Text
T.4
AutoCAD SHX Text
T.4
AutoCAD SHX Text
T.4
AutoCAD SHX Text
T.4
AutoCAD SHX Text
T.4
AutoCAD SHX Text
T.4
AutoCAD SHX Text
T.4
AutoCAD SHX Text
T.4
AutoCAD SHX Text
T.4
AutoCAD SHX Text
T.4
AutoCAD SHX Text
T.4
AutoCAD SHX Text
SHAFT PREVISTO EM PROJETO
AutoCAD SHX Text
SHAFT PREVISTO EM PROJETO
AutoCAD SHX Text
SHAFT PREVISTO EM PROJETO
AutoCAD SHX Text
SHAFT PREVISTO EM PROJETO
AutoCAD SHX Text
SHAFT PREVISTO EM PROJETO
AutoCAD SHX Text
SHAFT PREVISTO EM PROJETO
AutoCAD SHX Text
SHAFT PREVISTO EM PROJETO
AutoCAD SHX Text
SHAFT PREVISTO EM PROJETO
AutoCAD SHX Text
SHAFT PREVISTO EM PROJETO
AutoCAD SHX Text
SHAFT PREVISTO EM PROJETO
AutoCAD SHX Text
SHAFT PREVISTO EM PROJETO
AutoCAD SHX Text
SHAFT PREVISTO EM PROJETO
AutoCAD SHX Text
T.4
AutoCAD SHX Text
T.3
AutoCAD SHX Text
T.5
AutoCAD SHX Text
T.5
AutoCAD SHX Text
T.5
AutoCAD SHX Text
T.5
AutoCAD SHX Text
T.2
AutoCAD SHX Text
T.2
AutoCAD SHX Text
T.2
AutoCAD SHX Text
T.2
AutoCAD SHX Text
T.2
AutoCAD SHX Text
T.2
AutoCAD SHX Text
T.2
AutoCAD SHX Text
T.2
AutoCAD SHX Text
T.2
AutoCAD SHX Text
T.2
AutoCAD SHX Text
T.2
AutoCAD SHX Text
T.2
AutoCAD SHX Text
T.2
AutoCAD SHX Text
T.1
AutoCAD SHX Text
T.1
AutoCAD SHX Text
T.1
AutoCAD SHX Text
T.1
AutoCAD SHX Text
T.1
AutoCAD SHX Text
T.1
AutoCAD SHX Text
T.2
AutoCAD SHX Text
T.2
AutoCAD SHX Text
T.2
AutoCAD SHX Text
T.2
AutoCAD SHX Text
TUBULAÇÃO PASSA SOB A VIGA
AutoCAD SHX Text
TUBULAÇÃO PASSA SOB A VIGA
AutoCAD SHX Text
TUBULAÇÃO PASSA SOB A VIGA
AutoCAD SHX Text
TUBULAÇÃO PASSA SOB A VIGA
AutoCAD SHX Text
TUBULAÇÃO PASSA SOB A VIGA
AutoCAD SHX Text
TUBULAÇÃO PASSA SOB A VIGA
AutoCAD SHX Text
TUBULAÇÃO PASSA SOB A VIGA
AutoCAD SHX Text
ø 75 mm
AutoCAD SHX Text
ø 82 mm
AutoCAD SHX Text
ø 50 mm
AutoCAD SHX Text
ø 75 mm
AutoCAD SHX Text
ø 32 mm
AutoCAD SHX Text
ø 50 mm
AutoCAD SHX Text
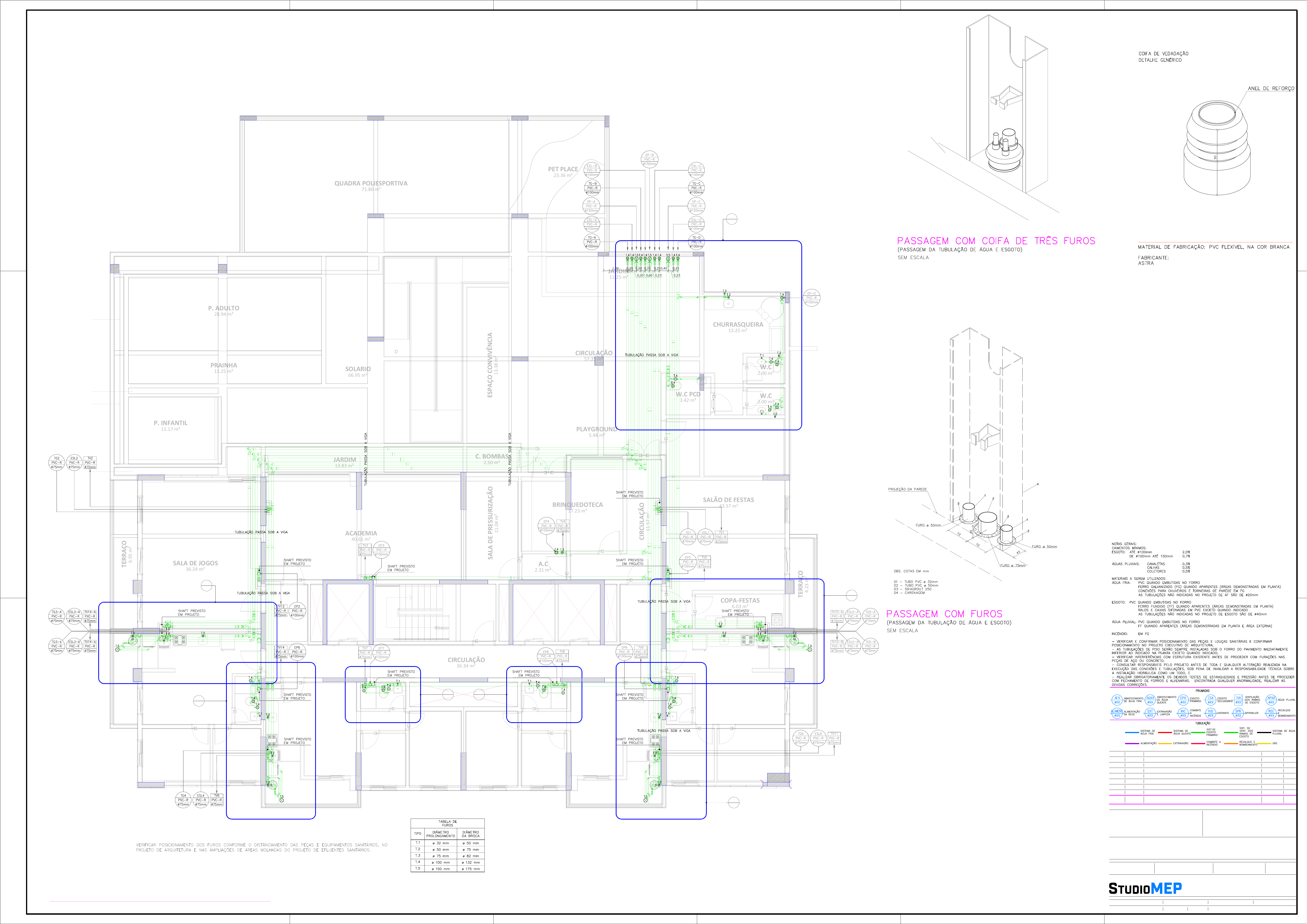
TABELA DE FUROS
AutoCAD SHX Text
DIÂMETRO DA BROCA
AutoCAD SHX Text
DIÂMETRO PROLONGAMENTO
AutoCAD SHX Text
ø 100 mm
AutoCAD SHX Text
ø 132 mm
AutoCAD SHX Text
ø 150 mm
AutoCAD SHX Text
ø 175 mm
AutoCAD SHX Text
TIPO
AutoCAD SHX Text
T.3
AutoCAD SHX TextT.2
AutoCAD SHX Text
T.1
AutoCAD SHX Text
T.4
AutoCAD SHX Text
T.5
AutoCAD SHX Text
(PASSAGEM DA TUBULAÇÃO DE ÁGUA E ESGOTO)
AutoCAD SHX Text
PASSAGEM COM COIFA DE TRÊS FUROS
AutoCAD SHX Text
SEM ESCALA
AutoCAD SHX Text
COIFA DE VEDADAÇÃO
AutoCAD SHX Text
DETALHE GENÉRICO
AutoCAD SHX Text
MATERIAL DE FABRICAÇÃO: PVC FLEXÍVEL, NA COR BRANCA FABRICANTE: ASTRA
AutoCAD SHX Text
ANEL DE REFORÇO
AutoCAD SHX Text
3
AutoCAD SHX Text
1
AutoCAD SHX Text
1
AutoCAD SHX Text
2
AutoCAD SHX Text
3
AutoCAD SHX Text
3
AutoCAD SHX Text
FURO ø 50mm
AutoCAD SHX Text
FURO ø 50mm
AutoCAD SHX Text
FURO ø 75mm
AutoCAD SHX Text
4
AutoCAD SHX Text
PROJEÇÃO DA PAREDE
AutoCAD SHX Text
01 - TUBO PVC ø 32mm 02 - TUBO PVC ø 50mm 03 - SIKAGROUT 250 04 - CARENAGEM
AutoCAD SHX Text
OBS. COTAS EM mm
AutoCAD SHX Text
(PASSAGEM DA TUBULAÇÃO DE ÁGUA E ESGOTO)
AutoCAD SHX Text
PASSAGEM COM FUROS
AutoCAD SHX Text
SEM ESCALA
AutoCAD SHX Text
%%CXX
AutoCAD SHX Text
AFX
AutoCAD SHX Text
PRUMADAS
AutoCAD SHX Text
TUBULAÇÃO
AutoCAD SHX Text
%%CXX
AutoCAD SHX Text
AQXX
AutoCAD SHX Text
%%CXX
AutoCAD SHX Text
EPX
AutoCAD SHX Text
%%CXX
AutoCAD SHX Text
TVX
AutoCAD SHX Text
%%CXX
AutoCAD SHX Text
APXX
AutoCAD SHX Text
NOTAS GERAIS: CAIMENTOS MÍNIMOS: ESGOTO: ATÉ 100mm 2,0% ATÉ 100mm 2,0% 2,0% DE 100mm ATÉ 150mm 0,7% 0,7% ÁGUAS PLUVIAIS: CANALETAS 0,3% CANALETAS 0,3% 0,3% CALHAS 0,5% 0,5% COLETORES 0,5% 0,5% MATERIAIS A SEREM UTILIZADOS: ÁGUA FRIA: PVC QUANDO EMBUTIDAS NO FORRO PVC QUANDO EMBUTIDAS NO FORRO FERRO GALVANIZADO (FG) QUANDO APARENTES (ÁREAS DEMONSTRADAS EM PLANTA) CONEXÕES PARA CHUVEIROS E TORNEIRAS DE PAREDE EM FG AS TUBULAÇÕES NÃO INDICADAS NO PROJETO DE AF SÃO DE 20mm ESGOTO: PVC QUANDO EMBUTIDAS NO FORRO PVC QUANDO EMBUTIDAS NO FORRO FERRO FUNDIDO (FF) QUANDO APARENTES (ÁREAS DEMONSTRADAS EM PLANTA) RALOS E CAIXAS SIFONADAS EM PVC EXCETO QUANDO INDICADO AS TUBULAÇÕES NÃO INDICADAS NO PROJETO DE ESGOTO SÃO DE 40mm ÁGUA PLUVIAL: PVC QUANDO EMBUTIDAS NO FORRO PVC QUANDO EMBUTIDAS NO FORRO FF QUANDO APARENTES (ÁREAS DEMONSTRADAS EM PLANTA E ÁREA EXTERNA) INCÊNDIO: EM FG EM FG - VERIFICAR E CONFIRMAR POSICIONAMENTO DAS PEÇAS E LOUÇAS SANITÁRIAS E CONFIRMAR POSICIONAMENTO NO PROJETO EXECUTIVO DE ARQUITETURA; - AS TUBULAÇÕES DE PISO SERÃO SEMPRE INSTALADAS SOB O FORRO DO PAVIMENTO IMEDIATAMENTE INFERIOR AO INDICADO NA PLANTA EXCETO QUANDO INDICADO; - VERIFICAR INTERFERÊNCIAS COM ESTRUTURA EXISTENTE ANTES DE PROCEDER COM FURAÇÕES NAS PEÇAS DE AÇO OU CONCRETO; - CONSULTAR RESPONSÁVEIS PELO PROJETO ANTES DE TODA E QUALQUER ALTERAÇÃO REALIZADA NA EXECUÇÃO DAS CONEXÕES E TUBULAÇÕES, SOB PENA DE INVALIDAR A RESPONSABILIDADE TÉCNICA SOBRE A INSTALAÇÃO HIDRÁULICA COMO UM TODO, E - REALIZAR OBRIGATORIAMENTE OS DEVIDOS TESTES DE ESTANQUEIDADE E PRESSÃO ANTES DE PROCEDER COM FECHAMENTO DE FORROS E ALVENARIAS. ENCONTRADA QUALQUER ANORMALIDADE, REALIZAR AS DEVIDAS CORREÇÕES.
AutoCAD SHX Text
%%CXX
AutoCAD SHX Text
ESX
AutoCAD SHX Text
%%CXX
AutoCAD SHX Text
ALIMENT.
AutoCAD SHX Text
%%CXX
AutoCAD SHX Text
REC
AutoCAD SHX Text
%%CXX
AutoCAD SHX Text
INC
AutoCAD SHX Text
%%CXX
AutoCAD SHX Text
EXT
AutoCAD SHX Text
%%CXX
AutoCAD SHX Text
HID
AutoCAD SHX Text
%%CXX
AutoCAD SHX Text
SPK
AutoCAD SHX Text
ABASTECIMENTO DE ÁGUA FRIA
AutoCAD SHX Text
ABASTECIMENTO DE ÁGUA QUENTE
AutoCAD SHX Text
ESGOTO PRIMÁRIO
AutoCAD SHX Text
VENTILAÇÃO DOS RAMAIS DE ESGOTO
AutoCAD SHX Text
ÁGUA PLUVIAL
AutoCAD SHX Text
SISTEMA DE ÁGUA FRIA 
AutoCAD SHX Text
SISTEMA DE ÁGUA QUENTE
AutoCAD SHX Text
SIST.DE ESGOTO PRIMÁRIO
AutoCAD SHX Text
SIST. DE VENT. DOS RAMAIS DE ESGOTO
AutoCAD SHX Text
SISTEMA DE ÁGUA PLUVIAL
AutoCAD SHX Text
ESGOTO SECUNDÁRIO
AutoCAD SHX Text
ALIMENTAÇÃO DA REDE
AutoCAD SHX Text
RECALQUE E BOMBEAMENTO
AutoCAD SHX Text
COMBATE A INCÊNDIO
AutoCAD SHX Text
EXTRAVASÃO E LIMPEZA
AutoCAD SHX Text
HIDRANTE
AutoCAD SHX Text
SPRINKLER
AutoCAD SHX Text
ALIMENTAÇÃO
AutoCAD SHX Text
EXTRAVASÃO
AutoCAD SHX Text
COMBATE A INCÊNDIO
AutoCAD SHX Text
RECALQUE E BOMBEAMENTO
AutoCAD SHX Text
GÁS
AutoCAD SHX Text
VERIFICAR POSICIONAMENTO DOS FUROS CONFORME O DISTÂNCIAMENTO DAS PEÇAS E EQUIPAMENTOS SANITÁRIOS, NO PROJETO DE ARQUITETURA E NAS AMPLIAÇÕES DE ÁREAS MOLHADAS DO PROJETO DE EFLUENTES SANITÁRIOS.
	Sheets and Views
	CER-PE-HID-H724-R02-R02
	PLANTA_1-50
	TABELA_FUROS
	DETALHE_FUROS

Mais conteúdos dessa disciplina