Logo Passei Direto
Buscar
Material
páginas com resultados encontrados.
páginas com resultados encontrados.
left-side-bubbles-backgroundright-side-bubbles-background

Crie sua conta grátis para liberar esse material. 🤩

Já tem uma conta?

Ao continuar, você aceita os Termos de Uso e Política de Privacidade

Prévia do material em texto

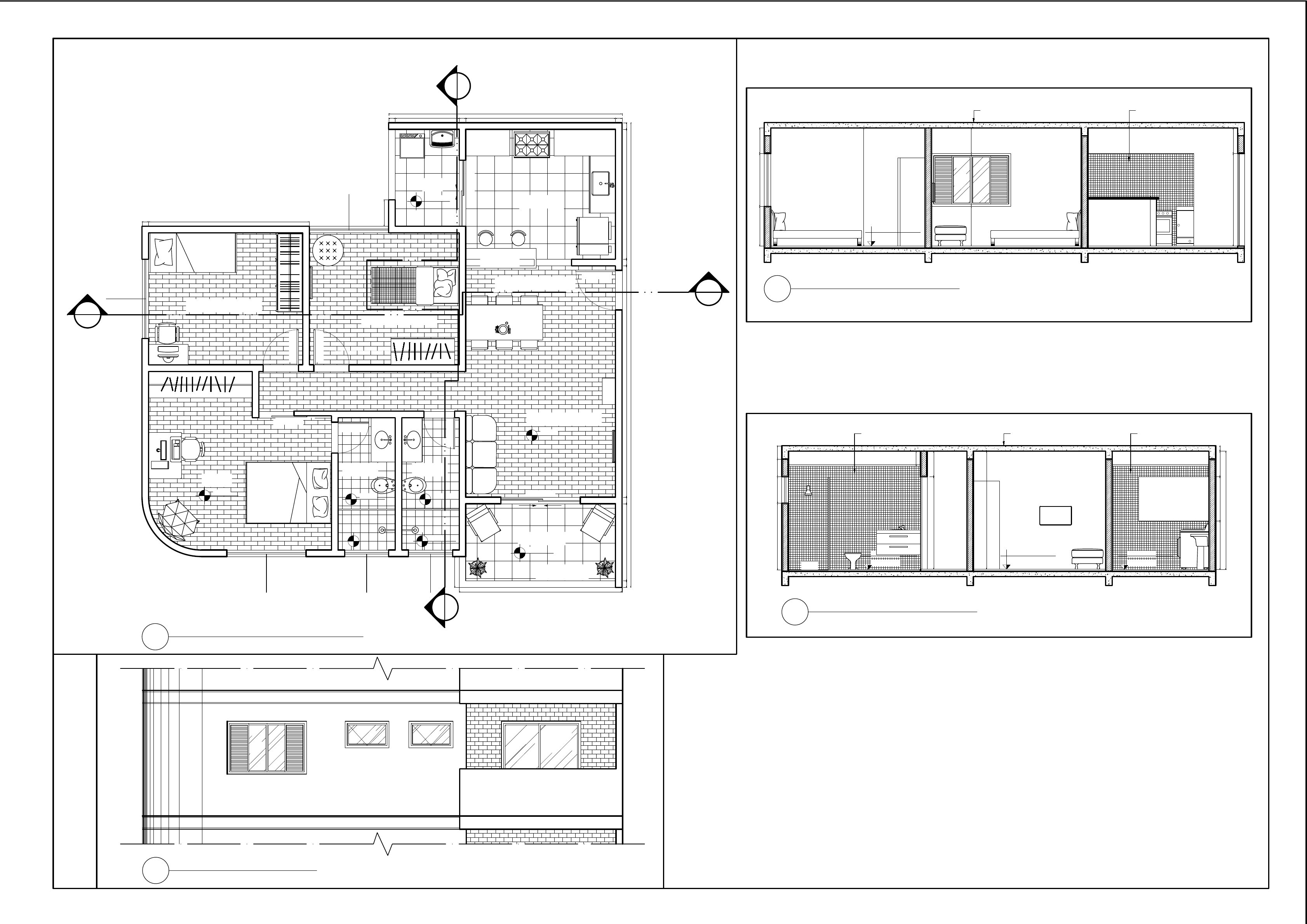
ESCALA 1:501 PLANTA - APARTAMENTO
+3.39
+3.32
+3.40
+3.39
+3.38
0.
80
X2
.1
0
+3.40
VARANDA
SALA DE ESTAR
COZINHA
SALA DE JANTAR
A.S.
DORMITÓRIO 02
SUÍTE
+3.39
BANHO
0.70X2.10
15
530
15
17
5
15
1.
80
X1
.2
0
1.80X1.20
0.90
1.
80
X1
.2
0
60
15
BANHO
DORMITÓRIO 01
0.80X2.10
0.
80
X2
.1
0
0.90X2.10
1.80X2.10
340
0.
70
X2
.1
0
M
U
R
ET
A
h 
= 
1.
10
m
+3.38
15
1.
50
X2
.1
0
15
52
5
29
5
15
145
10
55
70
370
0.
90
0.
90
1.
80
X1
.2
0
0.
90
365
0.
90
1.
80
X1
.2
0
15
GUARDA-CORPO
h = 1.10m
2
2
3 00
3 00
+3.35 (N.O.)
+3.40 (N.A.)
MADEIRA MADEIRA MADEIRA
90
26
8
LAJE
12
0
11
0
58
90
12
0
58
21
0
58
ESCALA 1:502 CORTE LONGITUDINAL
10
0
PASTILHA DE VIDRO
5X5 cm
+3.35 (N.O.)
+3.39 (N.A.)
+3.35 (N.O.)
+3.39 (N.A.)
FORRO GESSO
CER.
FORRO GESSO
+3.35 (N.O.)
+3.40 (N.A.)
58
34
21
0
26
8
PASTILHA DE VIDRO
5X5 cm
PASTILHA DE VIDRO
5X5 cm
LAJE
MADEIRA
15
2
60
40
30
11
0
10
1
58
12
26
9
ESCALA 1:503 CORTE TRANSVERSAL
ESCALA 1:504 FACHADA FRONTAL
	Sheets and Views
	Layout1

Mais conteúdos dessa disciplina