Logo Passei Direto
Buscar
Material
páginas com resultados encontrados.
páginas com resultados encontrados.

Prévia do material em texto

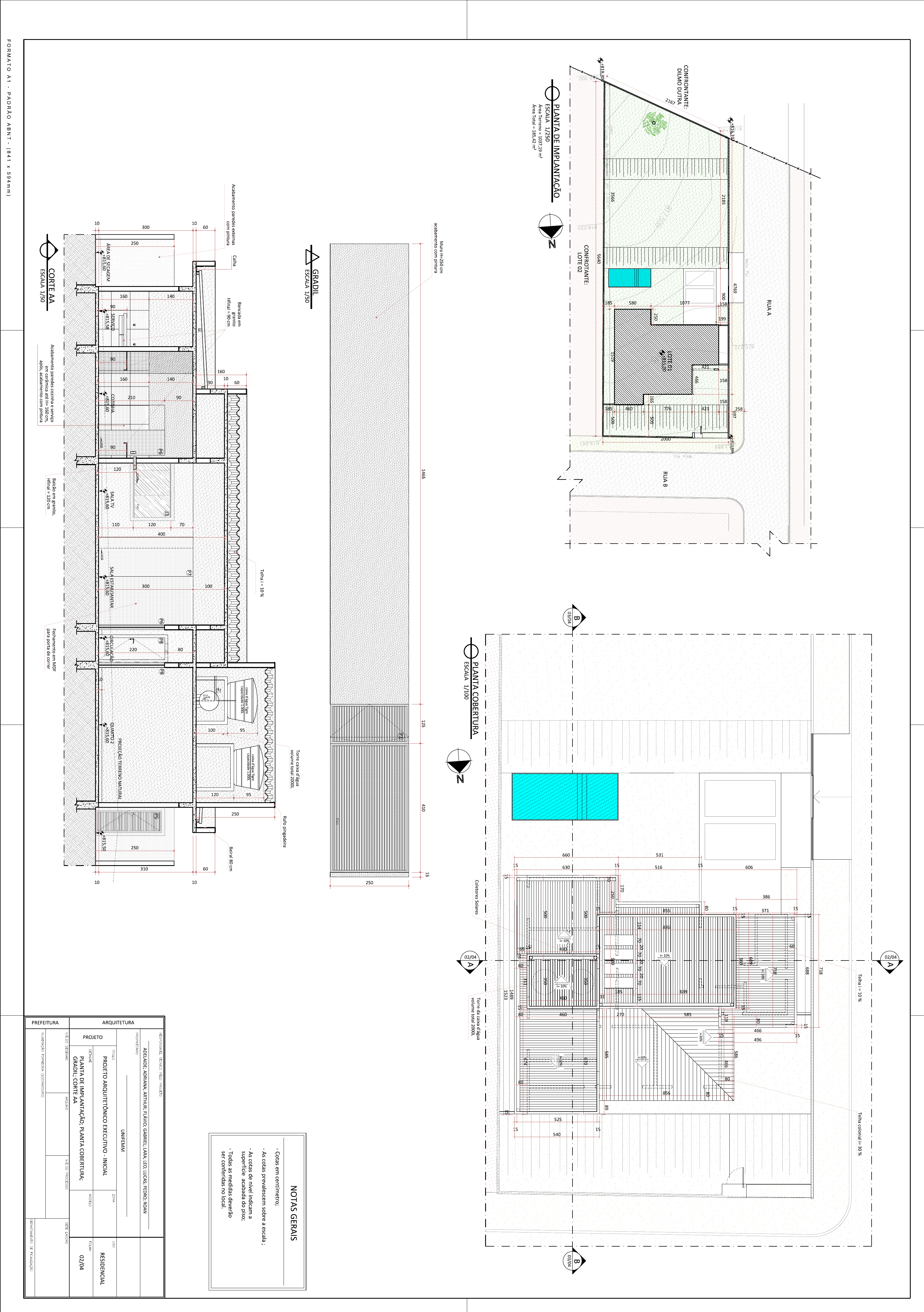
<p>Telha 30% 718 688 15 718 RUA A 10% 80 609 4769 697 2185 900 119 80 466 CONFRONTANTE DILMO DUTRA 250 165 500 170 3566 1519 500 89 5640 CONFROTANTE: 500 350 LOTE 02 B B 03/04 03/04 PLANTA DE IMPLANTAÇÃO ESCALA 1/250 350 Area Área 674 1489 1523 Coletores Solares Torre l'água PLANTA COBERTURA A volume 2000L ESCALA 1/100 Z Muro 15 1465 125 410 50 GRADIL ESCALA 1/50 Torre volume 2000L NOTAS GERAIS pingadeira Cotas em As cotas prevalescem sobre As cotas de nível indicam a superfície acabada do piso: Bancadae Acabamento paredes externas Calha granito Beira 80 cm Hfinal Todas medidas deverão ser conferidas P8 TECNICO PELO ADELAIDE ADRIANA ARTHUR FLÁVIO GABRIEL LARA LEO LUCAS PEDRO ROAN . UNIFEMM TERRENO NATURAL SERVICE COZINHA TITULO ZONA SALA ESTAR/JANTAR SECAGEM +815.60 +815.60 +815.50 PROJETO EXECUTIVO INICIAL RESIDENCIAL VODELO PLANTA DE PLANTA 02/04 CORTE AA DESENHC PROCESSO SETE LAGOAS CORTE AA Acabamento paredes cozinha Balcão granito Fechamento 160 cm Hfinal correr ESCALA 1/50 após acabamento pintura NUMERAÇÃO FICALIZAÇÃO FORMATO PADRÃO ABNT (841 594mm</p>

Mais conteúdos dessa disciplina