Logo Passei Direto
Buscar
Material
páginas com resultados encontrados.
páginas com resultados encontrados.
left-side-bubbles-backgroundright-side-bubbles-background

Crie sua conta grátis para liberar esse material. 🤩

Já tem uma conta?

Ao continuar, você aceita os Termos de Uso e Política de Privacidade

Prévia do material em texto

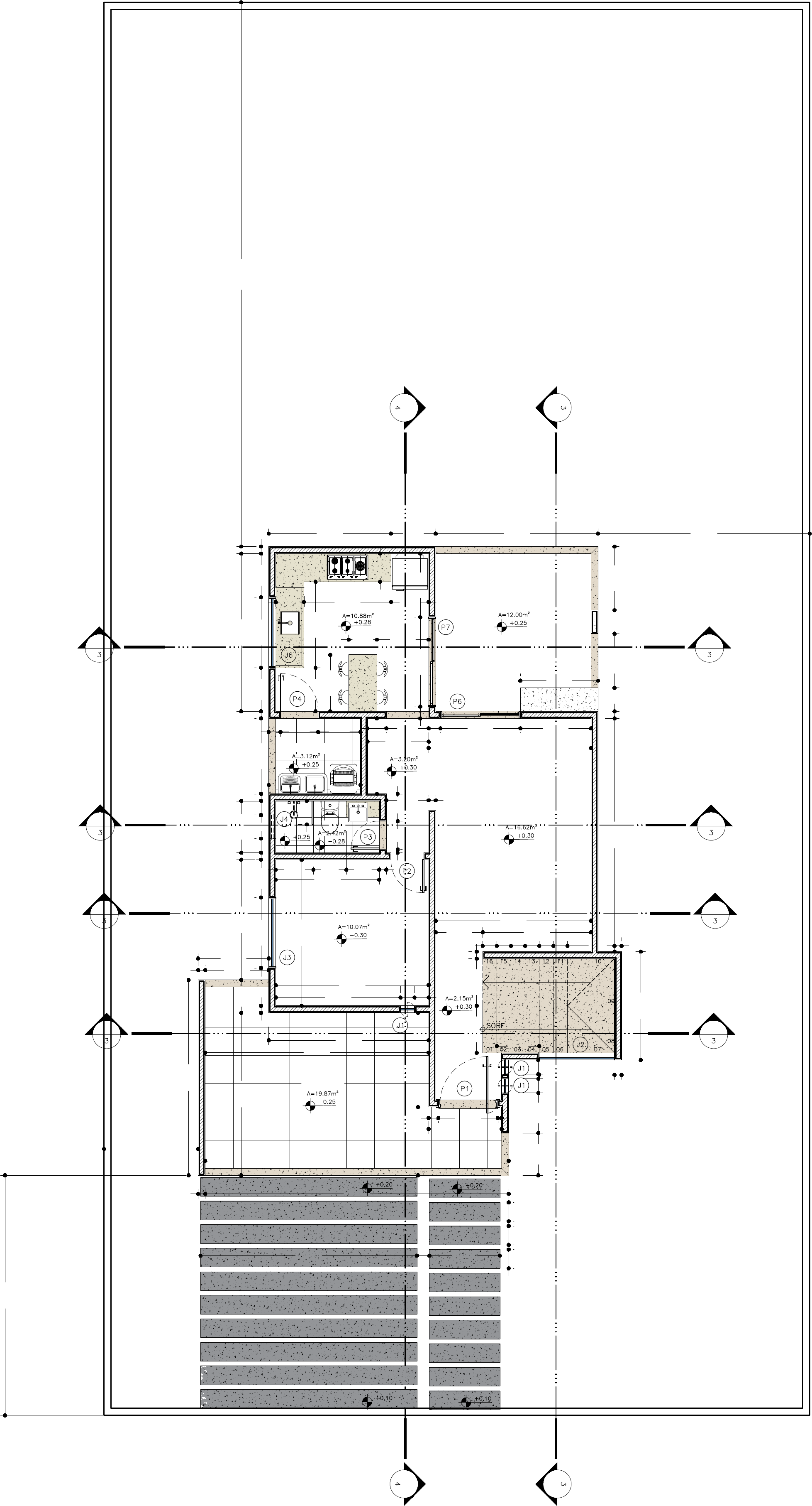
<p>F E</p><p>CIRC.</p><p>GARAGEM</p><p>ESTAR</p><p>DORMITÓRIO</p><p>BWC</p><p>HALLSERVIÇO</p><p>COPA / COZINHA VARANDA GOURMET.801.85.60</p><p>.1</p><p>5</p><p>.9</p><p>3</p><p>1.</p><p>50</p><p>.9</p><p>3</p><p>.1</p><p>5</p><p>1.</p><p>60</p><p>.1</p><p>5</p><p>.3</p><p>0</p><p>.5</p><p>0</p><p>.3</p><p>0</p><p>.1</p><p>5</p><p>.8</p><p>0</p><p>1.</p><p>50</p><p>.8</p><p>0</p><p>.1</p><p>5.7</p><p>0</p><p>3.</p><p>102.</p><p>55</p><p>.80 .70 .70 .15</p><p>2.20</p><p>1.</p><p>10</p><p>3.</p><p>35 1.</p><p>83</p><p>.9</p><p>3</p><p>1.95</p><p>.40 .90 .25 1.70 1.50</p><p>1.</p><p>20</p><p>.60 1.10</p><p>.2</p><p>5</p><p>1.</p><p>90</p><p>1.</p><p>35</p><p>2.301.00</p><p>.30 .30 .30 .30 .30 .30 1.00</p><p>1.</p><p>00</p><p>1.</p><p>00</p><p>.151.60</p><p>.90</p><p>.3</p><p>0</p><p>.1</p><p>0</p><p>.3</p><p>0</p><p>.8</p><p>5</p><p>.9</p><p>0</p><p>6.45</p><p>1.55</p><p>.21 1.27 .08</p><p>2.65 .30</p><p>3.25</p><p>1.</p><p>60</p><p>.90 .15</p><p>2.</p><p>00</p><p>1.</p><p>45</p><p>3.40</p><p>.5</p><p>0</p><p>.0</p><p>7</p><p>.6</p><p>0</p><p>.5</p><p>8</p><p>F E</p><p>A A</p><p>B B</p><p>C C</p><p>D D</p><p>.15 6.45</p><p>.15 1.35</p><p>1.50</p><p>.15</p><p>1.</p><p>35</p><p>.5</p><p>0</p><p>.5</p><p>0</p><p>.1</p><p>5</p><p>4.</p><p>95</p><p>1.</p><p>15</p><p>3.45</p><p>1.30</p><p>.90.80.25</p><p>.30</p><p>3.30</p><p>.4</p><p>0</p><p>.1</p><p>0</p><p>.4</p><p>0</p><p>.1</p><p>0</p><p>.4</p><p>0</p><p>3.</p><p>45</p><p>4.75</p><p>.1</p><p>5</p><p>1.65</p><p>.6</p><p>0</p><p>4.60 .26 1.50</p><p>3.45.952.60</p><p>2.</p><p>30</p><p>4.</p><p>15</p><p>5.</p><p>10</p><p>2.00</p><p>11</p><p>.5</p><p>5</p><p>4.50</p><p>AutoCAD SHX Text</p><p>+0,20</p><p>AutoCAD SHX Text</p><p>4</p><p>AutoCAD SHX Text</p><p>3</p><p>AutoCAD SHX Text</p><p>SOBE</p><p>AutoCAD SHX Text</p><p>A=19.87m²</p><p>AutoCAD SHX Text</p><p>+0.25</p><p>AutoCAD SHX Text</p><p>A=16.62m²</p><p>AutoCAD SHX Text</p><p>+0.30</p><p>AutoCAD SHX Text</p><p>A=2,15m²</p><p>AutoCAD SHX Text</p><p>+0.30</p><p>AutoCAD SHX Text</p><p>A=10.07m²</p><p>AutoCAD SHX Text</p><p>+0.30</p><p>AutoCAD SHX Text</p><p>A=2.42m²</p><p>AutoCAD SHX Text</p><p>+0.28</p><p>AutoCAD SHX Text</p><p>+0.25</p><p>AutoCAD SHX Text</p><p>A=3.20m²</p><p>AutoCAD SHX Text</p><p>+0.30</p><p>AutoCAD SHX Text</p><p>A=3.12m²</p><p>AutoCAD SHX Text</p><p>+0.25</p><p>AutoCAD SHX Text</p><p>A=10.88m²</p><p>AutoCAD SHX Text</p><p>+0.28</p><p>AutoCAD SHX Text</p><p>A=12.00m²</p><p>AutoCAD SHX Text</p><p>+0.25</p><p>AutoCAD SHX Text</p><p>J1</p><p>AutoCAD SHX Text</p><p>J1</p><p>AutoCAD SHX Text</p><p>J1</p><p>AutoCAD SHX Text</p><p>P2</p><p>AutoCAD SHX Text</p><p>P3</p><p>AutoCAD SHX Text</p><p>P4</p><p>AutoCAD SHX Text</p><p>P6</p><p>AutoCAD SHX Text</p><p>P7</p><p>AutoCAD SHX Text</p><p>J2</p><p>AutoCAD SHX Text</p><p>01</p><p>AutoCAD SHX Text</p><p>02</p><p>AutoCAD SHX Text</p><p>03</p><p>AutoCAD SHX Text</p><p>04</p><p>AutoCAD SHX Text</p><p>05</p><p>AutoCAD SHX Text</p><p>06</p><p>AutoCAD SHX Text</p><p>07</p><p>AutoCAD SHX Text</p><p>08</p><p>AutoCAD SHX Text</p><p>09</p><p>AutoCAD SHX Text</p><p>10</p><p>AutoCAD SHX Text</p><p>11</p><p>AutoCAD SHX Text</p><p>12</p><p>AutoCAD SHX Text</p><p>13</p><p>AutoCAD SHX Text</p><p>14</p><p>AutoCAD SHX Text</p><p>15</p><p>AutoCAD SHX Text</p><p>16</p><p>AutoCAD SHX Text</p><p>J3</p><p>AutoCAD SHX Text</p><p>J4</p><p>AutoCAD SHX Text</p><p>J6</p><p>AutoCAD SHX Text</p><p>4</p><p>AutoCAD SHX Text</p><p>3</p><p>AutoCAD SHX Text</p><p>3</p><p>AutoCAD SHX Text</p><p>3</p><p>AutoCAD SHX Text</p><p>3</p><p>AutoCAD SHX Text</p><p>3</p><p>AutoCAD SHX Text</p><p>3</p><p>AutoCAD SHX Text</p><p>3</p><p>AutoCAD SHX Text</p><p>3</p><p>AutoCAD SHX Text</p><p>3</p><p>AutoCAD SHX Text</p><p>+0,20</p><p>AutoCAD SHX Text</p><p>+0,10</p><p>AutoCAD SHX Text</p><p>+0,10</p><p>AutoCAD SHX Text</p><p>P1</p><p>Sheets and Views</p><p>Model</p>

Mais conteúdos dessa disciplina