Logo Passei Direto
Buscar
Material
páginas com resultados encontrados.
páginas com resultados encontrados.

Prévia do material em texto

PROJETO EXECUTIVO
Etapa Projeto:
Escala:
Empreendimento:
Cliente:
Folha:Data:
DataRevisão
TITULO:
Descrição Verif. Aprovação
XXXX
Contratado:
XXXX
Responsável Técnico: EXEC
REV.00
CAU/BR:
XXXX
Titulo:
Endereço:
Tel.: (21) XXXX
XXXXX
02/02
E-MAIL: XXXX
1 / 100 (Indicada) OUTUBRO / 2024
Revisão:
PROJETO EXECUTIVO
DEMOLIR / CONSTRUIR
07/10/2024REV: 00 xxxxxx
xxxxxx
XXX
NOTAS / OBSERVAÇÕES
01
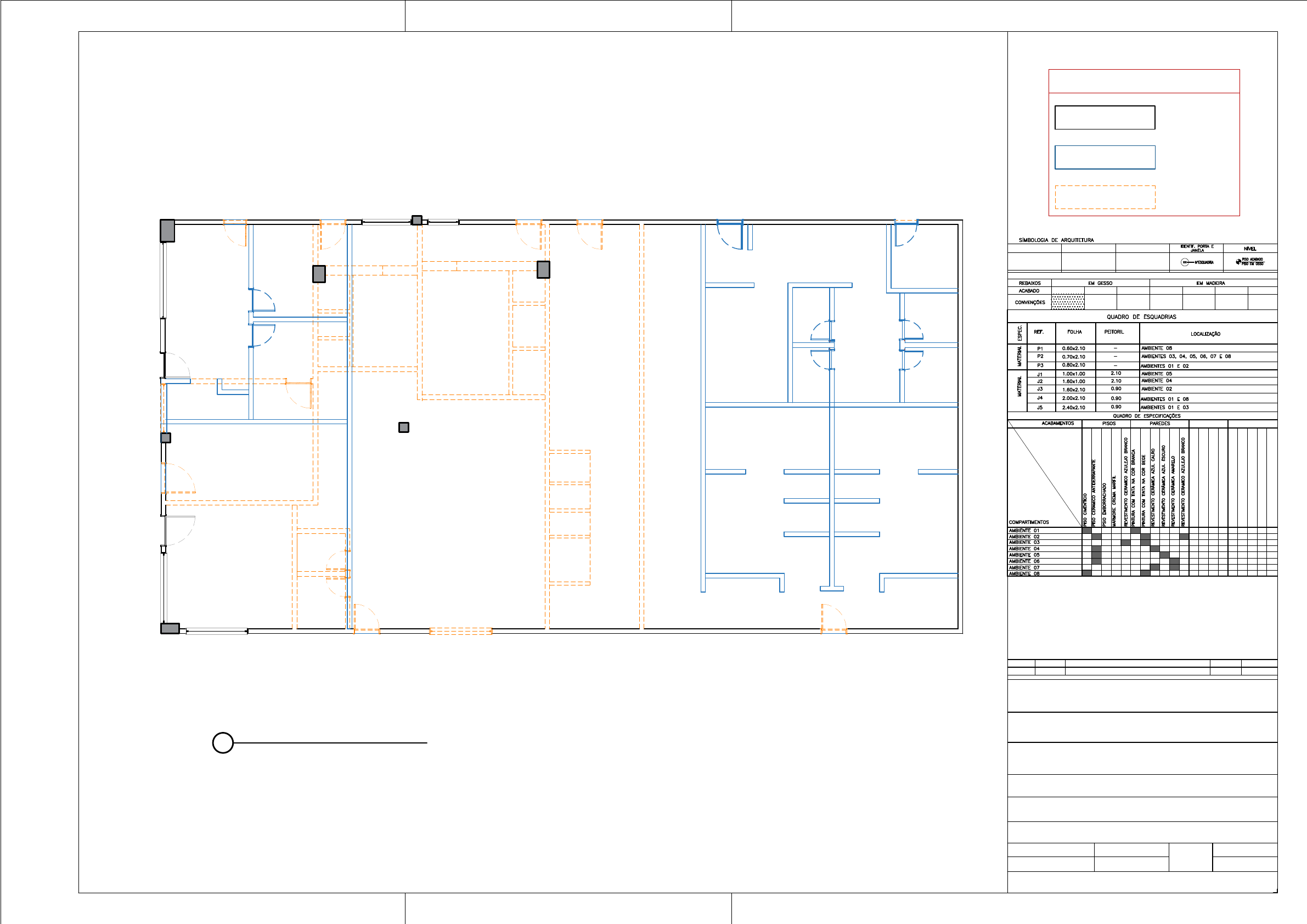
PLANTA BAIXA - CONSTRUIT/DEMOLIR
ESC.: 1:100
EXISTENTE
CONSTRUIR
DEMOLIR
LEGENDA CONSTRUIR/DEMOLIR
AutoCAD SHX Text
AMBIENTES 03, 04, 05, 06, 07 E 08 
AutoCAD SHX Text
P2
AutoCAD SHX Text
P3
AutoCAD SHX Text
0.70x2.10
AutoCAD SHX Text
0.80x2.10
AutoCAD SHX Text
J1
AutoCAD SHX Text
J2
AutoCAD SHX Text
J3
AutoCAD SHX Text
J4
AutoCAD SHX Text
1.60x2.10
AutoCAD SHX Text
2.00x2.10
AutoCAD SHX Text
2.40x2.10
AutoCAD SHX Text
IDENTIF. PORTA E JANELA
AutoCAD SHX Text
XX
AutoCAD SHX Text
QUADRO DE ESPECIFICAÇÕES
AutoCAD SHX Text
PISOS
AutoCAD SHX Text
ACABAMENTOS
AutoCAD SHX Text
PAREDES
AutoCAD SHX Text
 COMPARTIMENTOS
AutoCAD SHX Text
AMBIENTE 01
AutoCAD SHX Text
QUADRO DE ESQUADRIAS
AutoCAD SHX Text
ESPEC.
AutoCAD SHX Text
REF.
AutoCAD SHX Text
PEITORIL
AutoCAD SHX Text
MATERIAL
AutoCAD SHX Text
LOCALIZAÇÃO
AutoCAD SHX Text
FOLHA
AutoCAD SHX Text
1.00x1.00
AutoCAD SHX Text
0.60x2.10
AutoCAD SHX Text
P1
AutoCAD SHX Text
-
AutoCAD SHX Text
1.60x1.00
AutoCAD SHX Text
-
AutoCAD SHX Text
AMBIENTES 01 E 02
AutoCAD SHX Text
-
AutoCAD SHX Text
REBAIXOS
AutoCAD SHX Text
CONVENÇÕES
AutoCAD SHX Text
ACABADO
AutoCAD SHX Text
NÍVEL
AutoCAD SHX Text
NºESQUADRIA
AutoCAD SHX Text
PISO ACABADO
AutoCAD SHX Text
EM GESSO
AutoCAD SHX Text
EM MADEIRA
AutoCAD SHX Text
SÍMBOLOGIA DE ARQUITETURA
AutoCAD SHX Text
PINTURA COM TINTA NA COR BRANCA
AutoCAD SHX Text
REVESTIMENTO CERÂMICA AZUL CALRO
AutoCAD SHX Text
PISO CERAMICO ANTIDERRAPANTE
AutoCAD SHX Text
PISO CIMENTÍCIO
AutoCAD SHX Text
PSIO EMBORRACHADO
AutoCAD SHX Text
MÁRMORE CREMA MARFIL
AutoCAD SHX Text
PISO EM OSSO
AutoCAD SHX Text
AMBIENTE 08
AutoCAD SHX Text
MATERIAL
AutoCAD SHX Text
2.10
AutoCAD SHX Text
J5
AutoCAD SHX Text
2.10
AutoCAD SHX Text
0.90
AutoCAD SHX Text
0.90
AutoCAD SHX Text
0.90
AutoCAD SHX Text
AMBIENTE 05
AutoCAD SHX Text
AMBIENTE 04
AutoCAD SHX Text
AMBIENTE 02
AutoCAD SHX Text
AMBIENTES 01 E 08
AutoCAD SHX Text
AMBIENTES 01 E 03
AutoCAD SHX Text
AMBIENTE 02
AutoCAD SHX Text
AMBIENTE 03
AutoCAD SHX Text
AMBIENTE 04
AutoCAD SHX Text
AMBIENTE 05
AutoCAD SHX Text
AMBIENTE 06
AutoCAD SHX Text
AMBIENTE 07
AutoCAD SHX Text
AMBIENTE 08
AutoCAD SHX Text
REVESTIMENTO CERÂMICA AZUL ESCURO
AutoCAD SHX Text
PINTURA COM TINTA NA COR BEGE
AutoCAD SHX Text
REVESTIMENTO CERÂMICA AMARELO
AutoCAD SHX Text
REVESTIMENTO CERAMICO AZULEJO BRANCO
AutoCAD SHX Text
REVESTIMENTO CERAMICO AZULEJO BRANCO
	Sheets and Views
	DEMOLIR CONSTRUIT

Mais conteúdos dessa disciplina