Logo Passei Direto
Buscar
Material
páginas com resultados encontrados.
páginas com resultados encontrados.

Prévia do material em texto

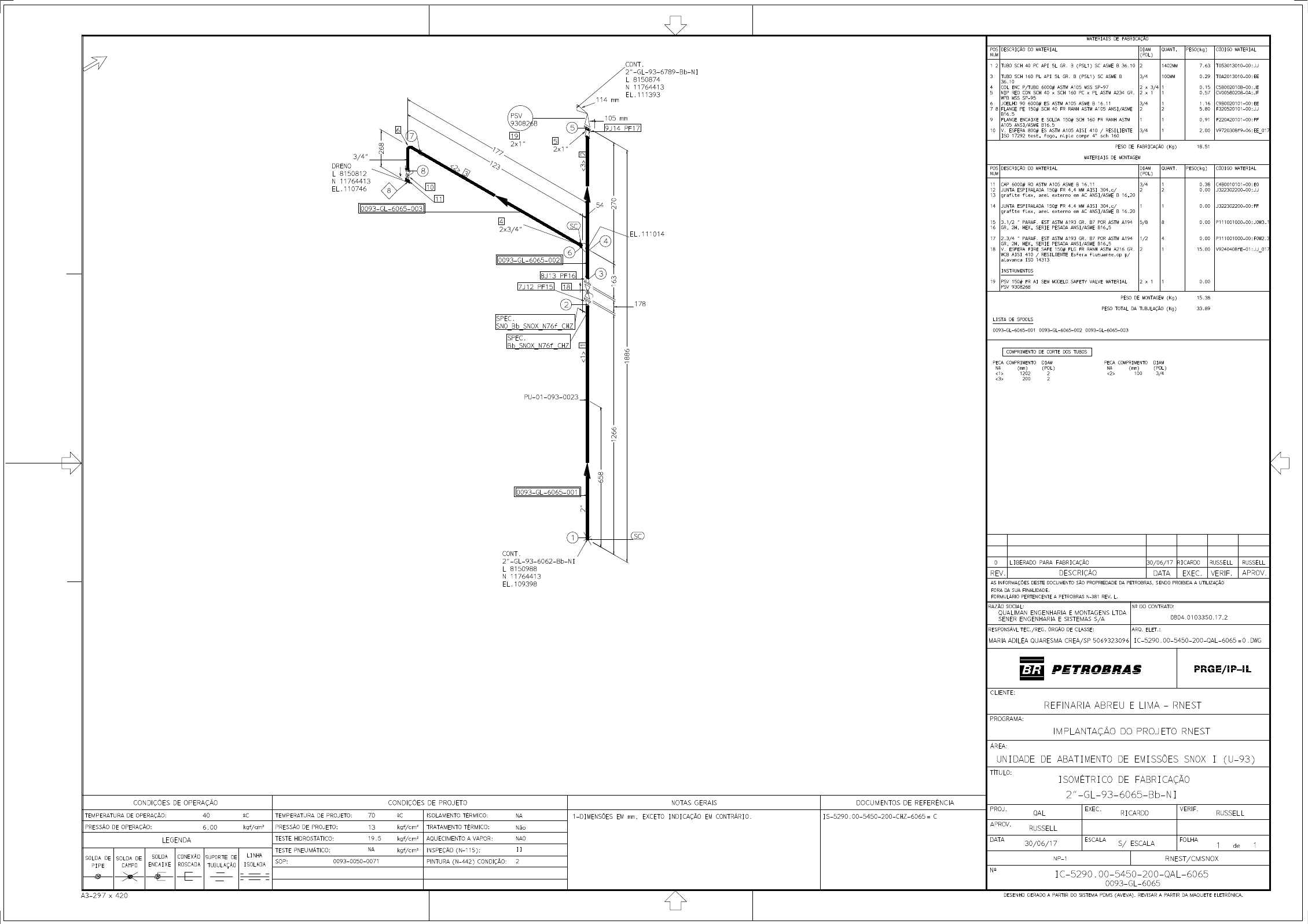
MATERIAIS DE FABRICAÇÃO POS DESCRIÇÃO DO MATERIAL DIAM QUANT MATERIAL NUM (POL) TUBO SCH 40 API 5L GR B (PSL1) ASME 36.10 2 1402MM 7.63 T053013010-00:JJ L 8150874 3 TUBO SCH 160 PL AP1 5L GR (PSL1) ASME B 3/4 0.29 36.10 N 11764413 4 COL ENC P/TUBO 6000# ASTM A105 MSS SP-97 3/4 0.15 EL 111393 5 NIP RED CON SCH 40 SCH 160 PC PL ASTM A234 0.57 114 mm WPB MSS SP-95 6 6 JOELHO 90 6000# ES ASTM A105 ASME 3/4 1 1.16 FLANGE 150# SCH 40 FR RANH ASTM A105 ANSI/ASME 2 5.80 PSV 105 mm 9 FLANGE ENCAIXE SOLDA SCH 160 FR RANH ASTM 1 1 0.91 6 5 A105 ANSI/ASME 816.5 10 ESFERA 800# ES ASTM A105 AISI 410 / RESILIENTE 3/4 1 2.00 7 19 ISO 17292 test. fogo. niple compr 4' sch 160 5 2x1' 2x1' PESO DE (Kg) 18.51 3/4' MATERIAIS DE MONTAGEM DRENO 123 L 8150812 8 POS DESCRIÇÃO DO MATERIAL DIAM QUANT MATERIAL NUM (POL) N 11764413 10 11 CAP 6000# RO ASTM A105 ASME 16.11 EL 110746 3/4 1 0.38 8 JUNTA PIRALADA 150# AISI 304 2 0.00 13 grafite anel externo em AC ANS1/ASME 16.20 11 54 JUNTA PIRALADA 150# FR 4.4 MM 1 0093-GL-6065-003 14 1 0.00 flex, anel externo em AC ANSI/ASME 16.20 15 EST A193 GR POR ASTM A194 5/8 8 SC 0.00 2x3/4' 16 GR. HEX. SERIE PESADA ANSI/ASME B16.5 EL 111014 17 4 2.3/4 PARAF EST ASTM A193 GR. B7 POR ASTM A194 1/2 4 0.00 SERIE PESADA 18 6 ESFERA FIRE SAFE 150# FLG FR RANH ASTM A216 GR 2 1 15.00 WCB AISI 410 RESILIENTE Esfera flutuante.op ISO 14313 8J13 PF16 3 INSTRUMENTOS 19 PSV 150# AI SEM MODELO SAFETY VALVE MATERIAL 2 1 0.00 7J12 PF15 18 PSV 930826B PESO DE MONTAGEM (Kg) 15.38 2 178 PESO TOTAL DA 33.89 SPEC LISTA SPOOLS CHZ 0093-GL-6065-002 SPEC COMPRIMENTO DE CORTE DOS TUBOS PECA COMPRIMENTO DIAM PFCA COMPRIMENTO DIAM (mm) (POL) (mm) (POL) 1202 100 3/4 200 PU-01-093-0023 0093-GL-6065-001 1 CONT 0 LIBERADO PARA FABRICAÇÃO 30/06/17 RICARDO RUSSELL RUSSELL L 8150988 N 11764413 REV. DESCRIÇÃO DATA APROV. EL 109398 AS INFORMAÇÕES DESTE DOCUMENTO SÃO PROPRIEDADE DA SENDO PROIBIDA UTILIZAÇÃO FORA SUA FINALIDADE FORMULÁRIO PERTENCENTE A PETROBRAS N-381 REV. L. RAZÃO SOCIAL: DO QUALIMAN ENGENHARIA F MONTAGENS LTDA SENER ENGENHARIA E SISTEMAS S/A 0804.0103350.17.2 ORGÃO DE CLASSE: ARO. ELET.: MARIA QUARESMA CREA/SP 5069323096 PETROBRAS PRGE/IP-IL CLIENTE: REFINARIA ABREU F LIMA - RNEST IMPLANTAÇÃO DO PROJETO RNEST UNIDADE DE ABATIMENTO DE EMISSÕES SNOX (U-93) TÍTULO: DE FABRICAÇÃO 2"-GL-93-6065-Bb-NI DE OPERAÇÃO DE PROJETO NOTAS GERAIS DOCUMENTOS DE REFERÊNCIA EXEC. TURA DE 40 TEMPERATURA DE 70 °C ISOLAMENTO NA 1-DIMENSÕES EM mm, EXCETO INDICAÇÃO CONTRÁRIO QAL RICARDO RUSSELL DE OPERAÇÃO: 6.00 kgf/cm2 PRESSÃO DE 13 TRATAMENTO Não APROV. RUSSELL LEGENDA TESTE HIDROSTATICO: 19.5 AQUECIMENTO A NAO DATA ESCALA FOLHA 30/06/17 S/ ESCALA 1 TESTE PNEUMÁTICO: NA INSPEÇÃO (N-115) de 1 DE SOLDA CONEXÃO DE LINHA CAMPO ENCAIXE ROSCADA TUBULAÇÃO SOP: 0093-0050-0071 PINTURA (N-442) CONDIÇÃO: 2 NP-1 RNEST/CMSNOX IC-5290.00-5450-200-QAL-6065 0093-GL-6065 420 DESENHO GERADO PARTIR DO SISTEMA PDMS (AVEVA). REVISAR A PARTIR DA MAQUETEMATERIAIS FABRICACAO 8150988 MATERIAL DIAM QUANT CÓDIGO MATERIAL NUM (POL) N 11764413 TUBO SCH API 5L GR (PSL1) ASME 1202MM 6.54 EL 110664 150# SCH 40 FR RANH ASTM A105 2.90 B16.5 PESO (Kg) 9.44 2 LISTA SPOOLS 0093-GL-6065-001 COMPRIMENTO DE CORTE DOS TUBOS CÓDIGO PECA COMPRIMENTO DIAM MATERIAL (mm) (POL) 1202 2 PU-01-093-0023 0093-GL-6065-001 8150988 N 11764413 0 LIBERADO PARA FABRICAÇÃO 30/06/17 RICARDO RUSSELL RUSSELL EL 109398 REV DESCRIÇÃO DATA EXEC. VERIF APROV. AS INFORMAÇÕES DESTE DOCUMENTO SÃO PROPRIEDADE DA SENDO FORA SUA FINALIDADE FORMULÁRIO PERTENCENTE PETROBRAS REV L RAZÃO SOCIAL CONTRATO: QUALIMAN ENGENHARIA MONTAGENS LTDA SENER ENGENHARIA SISTEMAS S/A 0804.0103350.17.2 ORGÃO DE MARIA QUARESMA CREA/SP 5069323096 BR PETROBRAS PRGE/IP-IL CLIENTE: REFINARIA ABREU E LIMA - RNEST PROGRAMA: IMPLANTAÇÃO DO PROJETO RNEST ÁREA UNIDADE DE ABATIMENTO DE EMISSÕES SNOX I (U-93) TÍTULO: SPOOL DE FABRICAÇÃO 2"-GL-93-6065-Bb-NI CONDIÇÕES DE OPERAÇÃO CONDIÇÕES DE PROJETO NOTAS GERAIS DOCUMENTOS DE REFERÊNCIA EXEC TEMPERATURA DE OPERAÇÃO 40 TEMPERATURA DE 70 ISOLAMENTO NA QAL RICARDO RUSSELL 1-DIMENSÕES EM EXCETO INDICAÇÃO EM IS-5290.00-5450-200-CHZ-6065 PRESSÃO DE 6.00 13 TRATAMENTO APROV. PRESSÃO DE PROJETO: Não RUSSELL LEGENDA TESTE HIDROSTÁTICO: 19.5 NAO DATA ESCALA FOLHA 30/06/17 S/ ESCALA 1 de 1 TESTE PNEUMÁTICO: NA kgf/cm2 INSPEÇÃO (N-115) SOLDA DE SOLDA DE SOLDA CONEXÃO SUPORTE DE LINHA NP-1 SOP: PIPE CAMPO ROSCADA ISOLADA 0093-0050-0071 ENCAIXE PINTURA (N-442) 2 RNEST/CMSNOX TUBULAÇÃO IC-5290 - 0093-GL-6065-001 A3-297 420 DESENHO GERADO DO SISTEMA PDMS (AVEVA) REVISAR PARTIR DA MAQUETE ELETRÔNICAMATERIAIS FABRICACAO 8150988 MATERIAL DIAM QUANT CÓDIGO MATERIAL N 11764413 NUM (POL) 111284 2 TUBO SCH PC API 5L (PSL1) 36.10 2 200MM 1.09 ENC 6000# ASTM A105 MSS SP-97 3/4 5 RED RED CON SCH SCH 160 PC PL ASTM A234 GR 0.57 0.57 5 9 8 FLANGE PE 150# SCH 40 FR RANH ASTM A105 ANSI/ASME 2 1 2.90 816.5 9 FLANGE ELANGE ENCAIXE SOLDA 150# SCH 160 FR RANH ASTM 1 1 0.91 5 A105 ANSI/ASME PESO FABRICAÇÃO (Kg) 5.62 2x1" 169 LISTA SPOOLS 0093-GL-6065-002 COMPRIMENTO DE CORTE DOS TUBOS CÓDIGO PECA COMPRIMENTO DIAM MATERIAL (mm) (POL) 200 ^ 00 54 8150934 4 N 11764413 EL 111014 111014 0093-GL-6065-002 8 3 8150988 N 11764413 EL 110851 0 LIBERADO PARA 30/06/17 RICARDO RUSSELL RUSSELL REV DESCRIÇÃO DATA APROV. AS INFORMAÇÕES DOCUMENTO SÃO PROPRIEDADE DA SENDO PROIBIDA UTILIZAÇÃO FOR SUA FINALIDADE FORMULÁRIO PERTENCENTE PETROBRAS N-381 REV L. RAZÃO SOCIAL: CONTRATO QUALIMAN ENGENHARIA F MONTAGENS LTDA SENER ENGENHARIA E SISTEMAS 0804.0103350.17.2 ORGÃO DE ARO ELET.: MARIA QUARESMA CREA/SP 5069323096 BR PETROBRAS PRGE/IP-IL CLIENTE: REFINARIA ABREU LIMA - RNEST PROGRAMA IMPLANTAÇÃO DO PROJETO RNEST UNIDADE DE DE EMISSÕES SNOX I (U-93) TÍTULO: SPOOL DE FABRICAÇÃO 2"-GL-93-6065-Bb-NI CONDIÇÕES DE OPERAÇÃO DE PROJETO NOTAS GERAIS DOCUMENTOS DE REFERÊNCIA EXEC. TEMPERATURA DE OPERAÇÃO 40 TEMPERATURA DE PROJETO: 70 ISOLAMENTO NA 1-DIMENSÕES EM EXCETO INDICAÇÃO EM RICARDO RUSSELL PRESSÃO DE OPERAÇÃO: 6.00 PRESSÃO DE PROJETO: 13 TRATAMENTO APROV. Não RUSSELL LEGENDA TESTE HIDROSTÁTICO: 19.5 AQUECIMENTO NAO DATA ESCALA FOLHA 30/06/17 S/ ESCALA 1 de 1 TESTE PNEUMÁTICO: NA kgf/cm2 INSPEÇÃO (N-115) II SOLDA DE SOLDA CONEXÃO SUPORTE DE INHA SOLDA DE SOP: 0093-0050-0071 ENCAIXE PINTURA (N-442) 2 RNEST/CMSNOX PIPE CAMPO ROSCADA ISOLADA - IC-5290.00-5450-200-QAL-6065 0093-GL-6065-002 A3-297 420 DESENHO GERADO PARTIR DO SISTEMA PDMS REVISAR PARTIR DA MAQUETEMATERIAIS FABRICACAO MATERIAL DIAM PESO(kg) CÓDIGO MATERIAL NUM (POL) 3 TUBO SCH 160 PL API 5L GR. (PSL1) SC ASME B 3/4 100MM 0.29 T0A2013010-00:EE 36.10 10 JOELHO 90 6000# ES ASTM A105 ASME 16.11 3/4 3/4 1.16 C9B0020 800# ASTM AISI 410 RESILIENTE 2.00 V9720308f9 ISO 17292 test. fogo. niole 4' sch 160 PESO (Kg) 3.45 LISTA SPOOLS 0093-GL-6065-003 COMPRIMENTO DE CORTE DOS TUBOS PECA COMPRIMENTO DIAM MATERIAL 3/4" (mm) (POL) 3/4 246 7 10 8 8 8150812 N 11764413 EL 110746 123 L 8150934 N 11764413 EL 111014 0 LIBERADO PARA FABRICAÇÃO 30/06/17 RICARDO RUSSELL RUSSELL DESCRIÇÃO DATA EXEC. APROV. AS INFORMAÇÕES DESTE DOCUMENTO SÃO PROPRIEDADE DA SENDO PROIB UTILIZAÇÃO FORA SUA FINALIDADE FORMULÁRIO PERTENCENTE PETROBRAS N-381 REV. L RAZÃO SOCIAL: CONTRATO QUALIMAN ENGENHARIA E MONTAGENS LTDA SENER ENGENHARIA E SISTEMAS S/A ORGÃO DE CLASSE: ELET.: MARIA QUARESMA CREA/SP 5069323096 BR PETROBRAS PRGE/IP-IL CLIENTE: REFINARIA ABREU E LIMA RNEST PROGRAMA: IMPLANTAÇÃO DO PROJETO RNEST UNIDADE DE ABATIMENTO DE EMISSÕES SNOX I (U-93) TÍTULO: SPOOL DE FABRICAÇÃO 2"-GL-93-6065-Bb-NI CONDIÇÕES DE OPERAÇÃO CONDIÇÕES DE PROJETO NOTAS GERAIS DOCUMENTOS DE REFERÊNCIA PROJ. TEMPERATURA DE 40 °C TEMPERATURA DE PROJETO: 70 °C ISOLAMENTO NA 1-DIMENSÕES EM EXCETO INDICAÇÃO EM IS-5290.00-5450-200-CHZ-6065 C QAL RICARDO RUSSELL PRESSÃO DE OPERAÇÃO: 6.00 PRESSÃO DE PROJETO: 13 kgf/cm2 TRATAMENTO TÉRMICO: Não APROV. RUSSELL LEGENDA TESTE HIDROSTÁTICO: 19.5 AQUECIMENTO VAPOR: NAO DATA ESCALA FOLHA 30/06/17 S/ ESCALA 1 de 1 TESTE PNEUMÁTICO: NA INSPEÇÃO (N-115) SOLDA DE SOLDA DE SOLDA CONEXÃO SUPORTE DE LINHA PIPE CAMPO ENCAIXE ROSCADA TUBULAÇÃO ISOLADA SOP: 0093-0050-0071 PINTURA (N-442) CONDIÇÃO: 2 NP-1 RNEST/CMSNOX 5290.00-5450-200-QAL-6065 0093-GL-6065-003 A3-297 420 DESENHO GERADO PARTIR DO SISTEMA PDMS (AVEVA). REVISAR PARTIR DA MAQUETE

Mais conteúdos dessa disciplina