Logo Passei Direto
Buscar
Material
páginas com resultados encontrados.
páginas com resultados encontrados.
left-side-bubbles-backgroundright-side-bubbles-background

Experimente o Premium!star struck emoji

Acesse conteúdos dessa e de diversas outras disciplinas.

Libere conteúdos
sem pagar

Ajude estudantes e ganhe conteúdos liberados!

Prévia do material em texto

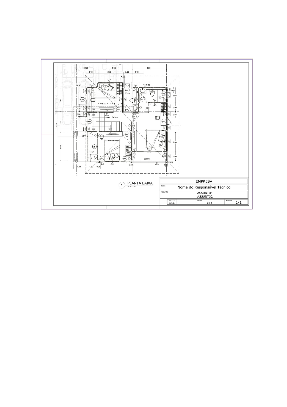
DESAFIO2,1Escalas numéricas e gráficas
Conforme a NBR 6492/1994, a escala é desenhada abaixo do título do desenho, separada por um traço, com pena e tamanho específicos para sua escrita à tinta, como determina o enunciado.
De acordo com a NBR 8196/1999, a palavra “ESCALA” pode ser abreviada na forma “ESC.”
As escritas devem ser posicionadas abaixo do desenho da planta baixa, de acordo com as especificações da norma.
MINHA RESPOSTA
Segundo a NBR 6492/1994, a indicação da escala deve ser colocada logo abaixo do título do desenho, separada por um traço, utilizando espessura e tamanho de letra específicos para escrita à tinta, conforme o enunciado. Já a NBR 8196/1999 permite que a palavra “ESCALA” seja abreviada como “ESC.”.
As inscrições precisam ser posicionadas na parte inferior da planta baixa, seguindo exatamente as orientações estabelecidas pela norma.
image1.jpeg

Mais conteúdos dessa disciplina