Logo Passei Direto
Buscar
Material
páginas com resultados encontrados.
páginas com resultados encontrados.

Prévia do material em texto

Quarto trabalho prático de Instrumentação e Controle 02_2022 
 
Nome:_________________________________________________________________________________ 
 
 
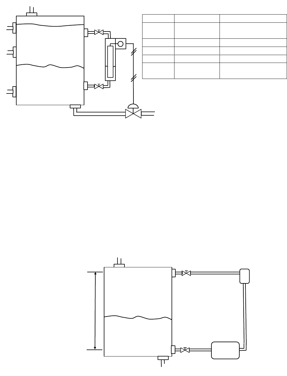
1. Um sistema de separação óleo/água utiliza um medidor de nível do tipo deslocador (displacer) situado em uma 
câmara ao lado do reservatório, como na figura abaixo. O deslocador mede o nível da interface água/óleo, o sinal é 
transmitido a um controlador que atua através de uma válvula de acionamento pneumático retirando água do 
tanque, mantendo a interface no meio do deslocador. Deseja-se fazer a calibração do sistema de acordo com o 
preenchimento da tabela abaixo. 
 
 
 
 
 
 
 
 
 
Dados: - Comprimento do deslocador: 40 in 
- Diâmetro do deslocador: 3 in 
- Massa medida do deslocador: 5000 g 
- Massa específica da água: 1,0 g/cm3 
- Massa específica do óleo: 0,8 g/cm3 
 
 
2. A figura abaixo ilustra um tanque de gasolina fechado (pressurizado) no qual deseja-se fazer a medição de nível 
utilizando um medidor de pressão diferencial. Neste sistema de medição será utilizado um selo na entrada de baixa 
pressão do medidor. Este selo será utilizado para que possíveis condensações não se formem na tubulação de baixa 
pressão, o que mudaria a pressão neste ponto de forma não controlada. Para fazer a selagem é utilizado um líquido 
de densidade diferente (superior) à densidade do líquido do processo colocado em um pote de selagem. Deseja-se 
saber qual a amplitude de medição e o ajuste de zero necessário do medidor de pressão diferencial. Esboce o gráfico 
de nível em função da pressão diferencial. Utilize como unidade de pressão kPa. 
 
 
H= 4000 mm 
ρ1=0,85 g/cm3 (gasolina) 
ρ2=1,0 g/cm3 (água) 
g=9,8 m/s2 
 
 
 
 
 
 
 
 
 
Nivel [%] Massa [g] Obs.: 
0% Deslocador totalmente 
imerso em óleo 
25% 
50% 
75% 
100% Deslocador totalmente 
imerso em água 
óleo 
água 
Pote de 
selagem 
ρ2, água 
ρ1, gasolina ΔP 
H L 
h 
100% 
0%

Mais conteúdos dessa disciplina