Logo Passei Direto
Buscar
Material
páginas com resultados encontrados.
páginas com resultados encontrados.
left-side-bubbles-backgroundright-side-bubbles-background

Experimente o Premium!star struck emoji

Acesse conteúdos dessa e de diversas outras disciplinas.

Libere conteúdos
sem pagar

Ajude estudantes e ganhe conteúdos liberados!

Prévia do material em texto

1.98
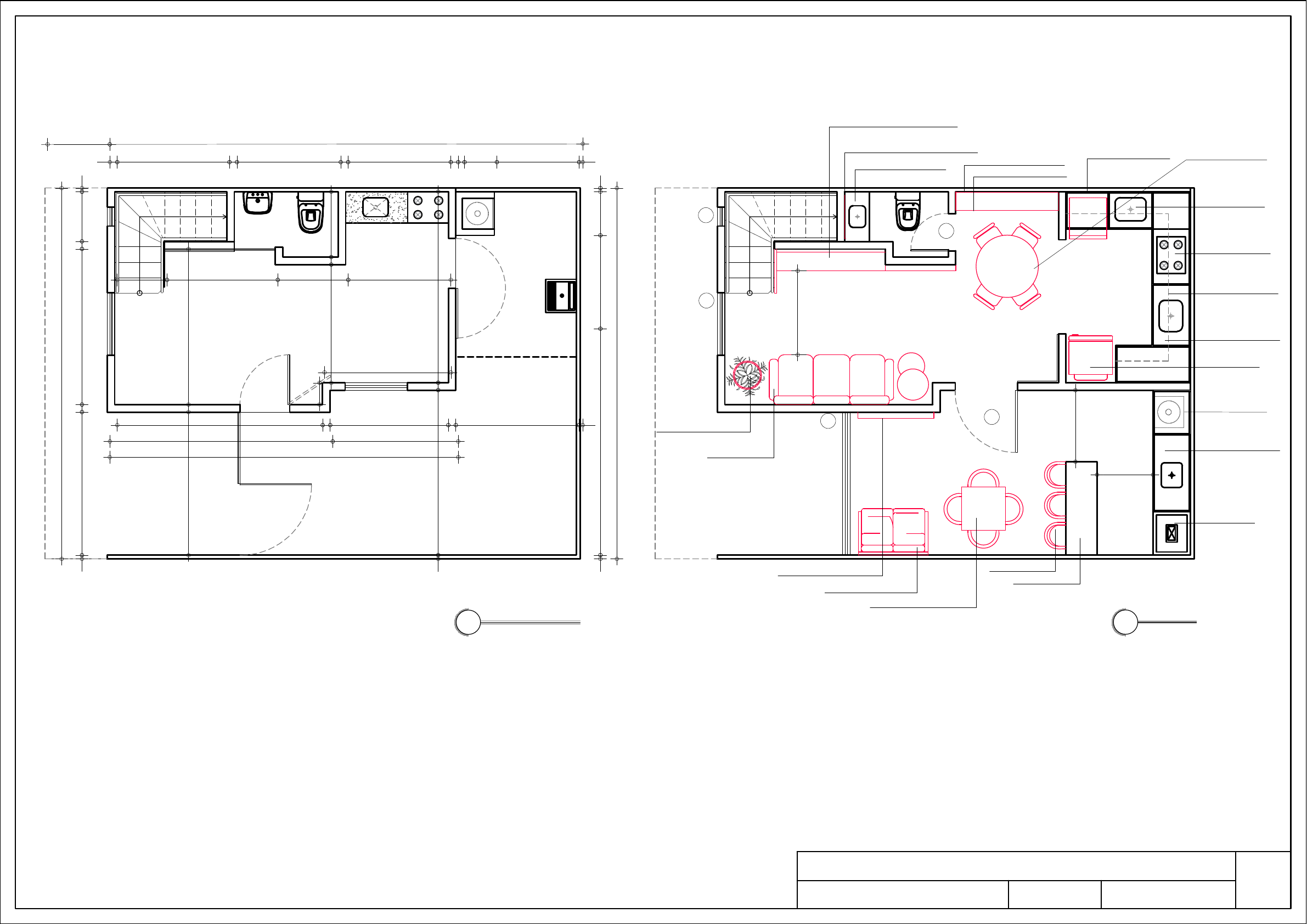
Planta de Levantamento
Escala 1:5001
A= 13,43m²
Sala Estar/Cozinha
A= 8,85m²
Varanda
A= 2,91m²
Área de Serviço
1.00 7.60
.061.32.52.10.121.65.121.67.121.80.12
.0
6
.8
0
.1
2
2.
50
.1
2
2.
30
.0
6
5.
96
A= 1,63m²
Lavabo
.80 1.78 1.13 1.65
2.
50
3.30 .12 1.90 .12
3.58 2.02
5.60
2.
30
.3
5
1.
90
.1
2
1.
05
3.
07
.1
2
2.
65
.0
6
2.03
.06
.0
6
3.
64
1.
50
.7
6
.0
6
5.
96
h=
2,
70
m
pe
ito
ril
=1
,9
5m
h=
1,
20
m
pe
ito
ril
=0
,9
0m
h=1,20m
peitoril=0,90m
Projeção cobertura
P.D=2,50cm
P.D=2,95cm
A= 13,98m²
Área Gourmet
A= 12,92m²
Sala Estar/Jantar
A= 6,41m²
Cozinha
A= 1,63m²
Lavabo
Ga
ra
ge
m
A= 5,07m²
Sala de Jantar
Espelho circular em bronze 4mm
Bancada em mármore
travertino romano
Espelho em bronze 4mm
Aparador sala de jantar
Mesa D=1,00m com
cadeiras
Projeção máquina
lava e seca de 10kg
Tanque de lavar
roupas
Cooktop 4 bocas
Projeção de armário
alto em MDF
Geladeira 425l
Projeção casa de
gás em alvenaria
Bancada em granito
são gabriel
Churrasqueria
pré moldada
Balcão em granito
são gabriel
Banquetas altas
Sofá para área externa
Rack com prateleira, 04 portas
de abrir e painel de TV em MDF
1.
35
Vaso com diâmetro de
50cm e palmeira raphis
Sofá 03 lugares
2,00x0,80cm
Painel de TV 43'' em MDF
Jogo de mesa bar
desmontável 70cmx70cm
1.
15
.90
Bancada em granito
 são gabriel
Planta Layout
Escala 1:5001
P2
P1
PF
J2
J1
Projeto Executivo - Residência Nicarcia e Jonh FOLHA:
ARQUITETA: DANIELLE AYRES ESC.: 1/50 DATA: DEZ./2022 01/06
	Sheets and Views
	Layout1

Mais conteúdos dessa disciplina