Logo Passei Direto
Buscar
Material
páginas com resultados encontrados.
páginas com resultados encontrados.
left-side-bubbles-backgroundright-side-bubbles-background

Crie sua conta grátis para liberar esse material. 🤩

Já tem uma conta?

Ao continuar, você aceita os Termos de Uso e Política de Privacidade

left-side-bubbles-backgroundright-side-bubbles-background

Crie sua conta grátis para liberar esse material. 🤩

Já tem uma conta?

Ao continuar, você aceita os Termos de Uso e Política de Privacidade

Prévia do material em texto

5
%
5
%
5%
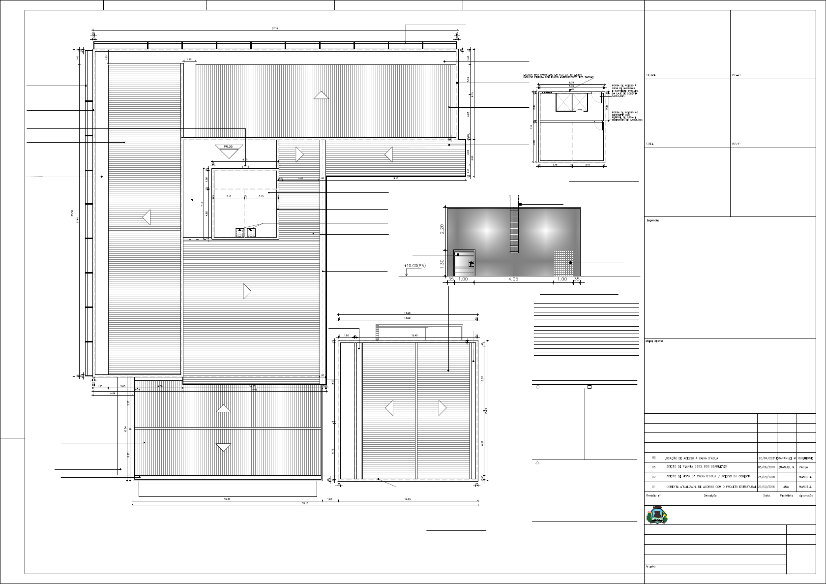
TELHA EM ALUMÍNIO TRAPEZOIDAL
ESP. 0,7mm
COBERTA EM ESTRUTURA METÁLICA
C/TELHA TRAPEZOIDAL DE
ALUMINIO TIPO SANDUICHE
COM POLIURETANO UMA FACE
PRÉ-PINTADA
NA COR BRANCA
PROTEÇÃO SOLAR EM CHAPA PERFURADA
COR BRANCO FOSCO - APENAS
ILUSTRATIVO (LICITAÇÃO A PARTE)
TELHA TRAPEZOIDAL DE
ALUMINIO TIPO SANDUICHE
COM POLIURETANO UMA FACE
PRÉ-PINTADA
NA COR BRANCA
LAJE IMPERMEABILIZADA
C/ MANTA ASFÁLTICA
(CONDENSADORES)
TELHA EM ALUMÍNIO
TRAPEZOIDAL ESP. 0,7mm
CHAPIM PRÉ-MOLDADO
DE CONCRETO
VER DETALHE DE.03 - PR.08
LAJE IMPERMEABILIZADA
C/ MANTA ASFÁLTICA
(CONDENSADORES)
CALHA DE CONCRETO
L
A
J
E
 
I
M
P
E
R
M
E
A
B
I
L
I
Z
A
D
A
C
/
 
M
A
N
T
A
 
A
S
F
Á
L
T
I
C
A
P
/
C
O
N
D
E
N
S
A
D
O
R
E
S
PROJEÇÃO CASA DE MÁQUINAS-ELEV.
PROJEÇÃO
RESERVATÓRIO 01
20.000LTS
TELHA TRAPEZOIDAL DE
ALUMINIO TIPO SANDUICHE
COM POLIURETANO UMA FACE
PRÉ-PINTADA
NA COR BRANCA
5%
5
%
COBERTA EM ESTRUTURA METÁLICA
C/TELHA TRAPEZOIDAL DE
ALUMINIO TIPO SANDUICHE
COM POLIURETANO UMA FACE
PRÉ-PINTADA
NA COR BRANCA
MARQUISE METÁLICA EM ACM
MARQUISE METÁLICA EM ACM
M
A
R
Q
U
I
S
E
 
M
E
T
Á
L
I
C
A
5%
CALHA IMPERM.
CALHA EM ALUMINIO
CALHA EM ALUMINIO
TAMPAS DE VISITA
VER DETALHE - DES.08-PR.44
CHAPIM PRÉ-MOLDADO DE CONCRETO
VER DETALHE DES.03-PR.08
CHAPIM PRÉ-MOLDADO DE CONCRETO
VER DETALHE DES.03-PR.08
PROJEÇÃO
RESERVATÓRIO 02
20.000LTS
LAJE IMPERMEABILIZADA
C/ MANTA ASFÁLTICA
5
%
LAJE IMPERMEABILIZADA
C/ MANTA ASFÁLTICA
1
0
%
1
0
%
PROTEÇÃO SOLAR EM CHAPA
PERFURADA COR BRANCO
FOSCO - APENASILUSTRATIVO
(VER PROJETO ESPECIFICO)
CALHA DE
CONCRETO
CHAPIM PRÉ-MOLDADO DE CONCRETO
VER DETALHE DES.03 - PR.08
ESCADA DE MARINHEIRO
1
PISO
QUADRO DE ESPECIFICAÇÕES
1. PISO DE GRANITINA POLIDA (PISO INDUSTRIAL) COR CINZA EM
 CIMENTO COMUM, (AREIA BRANCA E PEDRISCOS DE
 DOLOMITA MISTA) 12mm DE ESPESSURA ACABADA, EM
 PLACAS DE 100x100cm, COM JUNTA PLÁSTICA COR CINZA.
2. CERÂMICA ESMALTADA 35x35cm PEI-4 C/ TAXA DE ABSORÇÃO
DE ÁGUA<0,1% C/MÍNIMO COEFICIENTE DE ATRITO =0,40, E
MÍNIMA RESISTÊNCIA A MANCHAS=4. COR BRANCO GELO.
3. PISO VINÍLICO EM PLACAS, DIMENSÕES DE 30x30cm, COR
 CINZA CLARO, MODELO: PAVIFLEX OU SIMILAR, COM
 ACABAMENTO EM TESTEIRA PARA PISO VINÍLICO 7, 5cm (NOS
 LOCAIS COM DESNÍVEL).
4. GRANITO CINZA SEM POLIMENTO, PEÇAS 50x50cm (ANTI-
DERRAPANTE) PARA AS RAMPAS E ESCADAS.
5. BLOCO INTERTRAVADO DE CONCRETO - MODELO: BLOCO
 RETANGULAR COM LARGURA 10cm, COMPRIMENTO 20cm E
 ESPESSURA 4cm, CORES E ASSENTAMENTO CONFORME
PAGINAÇÃO.
6. BLOCO INTERTRAVADO DE CONCRETO MODELO: BLOCO
 RETANGULAR COM LARGURA 10cm, COMPRIMENTO 20cm E
 ESPESSURA 6cm,CORES E ASSENTAMENTO CONFORME
PAGINAÇÃO.
7. PISO EM CIMENTADO ÁSPERO FCK 13 A 15 MPa.
8. PISO DA QUADRA EM GRANITINA POLIDA (PISO INDUSTRIAL)
 COR CINZA EM CIMENTO COMUM, (AREIA BRANCA E
 PEDRISCOS DE DOLOMITA MISTA) 17mm DE ESPESSURA
 ACABADA, EM PLACAS DE 1.00x1.00m COM JUNTA PLÁSTICA
 COR CINZA E DEMARCAÇÃO E PINTURA À BASE DE RESINA
 ACRÍLICA NAS CORES BRANCA, LARANJA REF.: AB 351 (CORAL)
 E VERDE NILO REF.: AB 652 (CORAL) OU SIMILAR.
TETO
1. FORRO DE GESSO ACARTONADO COM ESPESSURA15MM 
TIPO FGE C/ACABAMENTO EM PINTURA PVA LATEX NA COR
BRANCO NEVE (CORAL, SUVINIL OU EQUIVALENTE).
2. PLACAS ACÚSTICAS EM FIBRA MINERAL INCOMBUSTÍVEL COM
 ACABAMENTO NA COR BRANCA, MODELO: SONEX ACOUSTIC
 -LINHA FINETTA, NAS DIMENSÕES 0,625x0,625m OU SIMILAR.
3. COBERTA METÁLICA C/ TELHA TRAPEZOIDAL DE ALUMÍNIO TIPO
SANDUÍCHE 0,7mm + EPS 30mm + ALUMÍNIO 0,5mm, i=5%
C/FECHAMENTO EM PLACA CIMENTÍCIA PINTADA NAS
LATERAIS E FORRO DE GESSO ACARTONADO COM
ESPESSURA 15mm TIPO FGE C/PINTURA PVA LATEX NA COR
BRANCO NEVE.
4. COBERTA METÁLICA APARENTE E TELHA TRAPEZOIDAL DE
ALUMÍNIO 0,7mm (QUADRA POLIESPORTIVA).
5. LAJE EMASSADA E PINTADA COM LATEX PVA BRANCO NEVE
 CORAL OU SIMILAR. (QUANDO DA UTILIZAÇÃO DE FORMAS
 PLÁSTICAS NA ESTRUTURA DE CONCRETO, PODERÁ SER
 USADO APENAS REBOCO DE GESSO P/ ACABAMENTO E A
 MESMA PINTURA LÁTEX).
1. PINTURA ACRÍLICA COR BRANCO NEVE, REF. CORAL OU SIMILAR.
2. CERÂMICA 30 x 30cm C/ TAXA DE ABSORÇÃO DE ÁGUA <0,1% E MÍNIMA RESISTÊNCIA A MANCHAS=3. ATÉ 1,80m DO PISO ACABADO,
COM REJUNTE QUARTZOLIT CINZA PLATINA COM PINTURA ACRÍLICA COR BRANCO NEVE ACIMA.
3. CERÂMICA 10 x10cm ELIANE NA COR CAMBURI WHITE LINHA CAMBURI ATÉ 1.10m E 1 FILEIRA EM CERÂMICA 10 x10cm ELIANE NA
COR AZUL ESCURO LINHA ARQUITETURAL OU SIMILAR, NUM TOTAL DE 12 FILEIRAS DE CERÂMICA (ATÉ ALTURA DE 1,20m DO PISO
ACABADO) E REJUNTE QUARTZOLIT CINZA PLATINA; E PINTURA ACRÍLICA NA COR BRANCO NEVE ACIMA. NAS PAREDES EXTERNAS
DO BLOCO DOS VESTIÁRIOS, REVESTIR DE CERÂMICA BRANCA ATÉ O TETO, MANTENDO A FAIXA AZUL NAS MEDIDAS INDICADAS.
4. REBOCO ACÚSTICO DE ESPESSURA 25mm (CIMENTO E VERMICULITA NO TRAÇO 1:3) ATÉ O FORRO. ACABAMENTO EM PINTURA
 ACRÍLICA ACETINADA NA COR BRANCO GELO ATÉ 0,90m DO PISO DE NÍVEL +0,15m DO AUDITÓRIO E ACIMA DA PLACA DE GESSO
 ACARTONADO 2,40X1,20m FIXADA NA ALVENARIA COM PINTURA ACRÍLICA COR "CHEIRO-VERDE" REF. F0-610, CORAL OU PADRÃO
 EQUIVALENTE.
5. TEXTURA ACRÍLICA SOBRE REBOCO, NA COR BRANCO GELO, REF. CORAL OU SIMILAR.
6. PASTILHA DE PORCELANA 5x5cm COR JEANS MESH LINHA ZOOM DA ELIANE (AZUL CLARO) OU EQUIVALENTE C/REJUNTE
QUARTZOLIT NA MESMA COR.
7. PASTILHA DE PORCELANA 5x5cm COR VIZEU M12228 DA ATLAS (LARANJA) OU EQUIV. C/REJUNTE QUARTZOLIT NA MESMA COR.
8. TEXTURA ACRÍLICA NA COR VERDE HAWAI C078 DA FORTEX - OU EQUIVALENTE DA SUVINIL OU CORAL.
9. CERÂMICA 30 x 30cm C/ TAXA DE ABSORÇÃO DE ÁGUA <0,1% E MÍNIMA RESISTÊNCIA A MANCHAS=3. ATÉ O TETO, COM REJUNTE
QUARTZOLIT CINZA PLATINA.
10. TEXTURA ACRÍLICA NA COR LEEDS CHEIO 929A0D DA IBRATIN (GRAFITE) - OU EQUIVALENTE DA SUVINIL OU CORAL.
PAREDE
* 1 * DEVERÁ SER ASSENTADO RODAPÉ VINÍLICO NOS AMBIENTES COM PISO VINÍLICO - AUDITÓRIO (VER DETALHE DES. 06 - PR.13)
* 2 * DEVERÁ SER ASSENTADO RODAPÉ DE ALUMÍNIO PRETO EM TODOS OS AMBIENTES COM PAREDES EM PINTURA. (VER DES.05
PR.13). NAS ALVENARIAS DE APOIO DE BALCÕES DE GRANITO O RODAPÉ DEVERÁ SER UMA FIADA DE CERÂMICA 10x10cm COR AZUL
ESCURO LINHA ARQUITETURAL DA ELIANE OU SIMILAR (VER DET. DES.07-PR.30; DES.05 e 09-PR. 31 - BIBLIOTECA, SECRETARIA E
REPROGRAFIA).
* 3 * DEVERÁ SER EXECUTADO TABICA METÁLICA 3x3cm, NOS AMBIENTES COM FORRO DE GESSO ACARTONADO.
* 4 * DEVERÁ SER COLOCADA CANTONEIRA EM ALUMÍNIO EMBUTIDA NO REBOCO PARA PROTEÇÃO DE TODOS OS "CANTOS VIVOS" NOS
PILARES E PAREDES NAS ROTAS DE MAIOR CIRCULAÇÃO. (VER DETALHE DES.10 - PR.32).
* 5 * DEVERÁ SER COLOCADA CANTONEIRA EM ALUMÍNIO NOS CANTOS DE PAREDES COM REVESTIMENTO EM CERÂMICA (VER DETALHE
DES.11 - PR.32).
* 6 * SOLEIRAS EM GRANITO CINZA POLIDO, CONFORME INDICAÇÃO E DETALHES PR. 12 e 13; PEITORÍS EM GRANITO CINZA POLIDO EM
TODAS AS ESQUADRIAS (VER DETALHE DES.12 - PR.32)
* 7 * TODAS OS MATERIAIS ESPECIFICADOS PODERÃO SER SUBSTITUÍDOS NA EXECUÇÃO DA OBRA, DESDE QUE AS ESPECIFICAÇÕES
 TÉCNICAS SEJAM EQUIVALENTES EM PADRÃO DE QUALIDADE E COM A ANUÊNCIA DOS AUTORES DO PROJETO.
* 8 * OS PILARES E VIGAS DEVERÃO TER ACABAMENTO LISO PARA EMASSAMENTO E PINTURA, E AS PAREDES EXTERNAS REBOCADAS
DEVERÃO FICAR ALINHADAS À ESTES, SEM FORMAÇÃO DE ALTOS RELEVOS NAS FACHADAS.
OBSERVAÇÕES:
ÁREA TOTAL CONSTRUÍDA - PAVIMENTO TÉRREO
QUADRO DE ÁREAS
1.285,05 m²
- ÁREA CONSTRUÍDA ÚTIL - PAVIMENTO TÉRREO 553,39 m²
- AUDITÓRIO 202,21 m²
- ÁREAS COMUNS 529,45 m²
ÁREA TOTAL CONSTRUÍDA - 1° PAVIMENTO 789,44 m²
- ÁREA CONSTRUÍDA ÚTIL - 1° PAVIMENTO 553,39 m²
236,05 m²- ÁREAS COMUNS
ÁREA TOTAL CONSTRUÍDA - 2° PAVIMENTO 789,44 m²
- ÁREA CONSTRUÍDA ÚTIL - 2° PAVIMENTO 553,39 m²
236,05 m²- ÁREAS COMUNS
ÁREA TOTAL CONSTRUÍDA - NOS 03 PAVIMENTOS 2.863,93 m²
ÁREA DA QUADRA POLIESPORTIVA E VESTIÁRIOS 1.042,15 m²
ÁREA TOTAL: 3.906,08 m²
PORTÃO DE
ACESSO AOS
BARRILETES
ESCADA DE
MARINHEIRO
COBOGÓ DE CIMENTO
15x15cm ACAB.
EM PINTURA COR
BRANCO GELO
PROJEÇÃO CASA DE MÁQUINAS-ELEV.
PROJEÇÃO
RESERVATÓRIO 01
20.000LTS
PROJEÇÃO
RESERVATÓRIO02
20.000LTS
ELEV.1 ELEV.2
GUARDA CORPO h=90cm
Planta da Coberta
01 ESCALA 1/100
Vista 01 - Caixa d´Agua
03 ESCALA 1/50
Unidade/Orgão:
Nome do projeto:
Título da folha:
Data:
Escala:
Folha:
SME - SECRETARIA MUNICIPAL DA EDUCAÇÃO
Coord. elab. de projetos: 05/48
SEINF - SECRETARIA MUNICIPAL DA INFRAESTRUTURAFortaleza
Prefeitura de
ENGª PAULA ROCHA L. PINHEIRO
SME-EEFPADRÃO-ARQ-PE-F05-R04.dwg
RNP Nº 060545911-8 CREA-CE
INDICADA
PLANTA DE COBERTA
MAIO/2019
PROJETO ARQUITETÔNICO
ESCOLA DE ENSINO FUNDAMENTAL 
PROJETO PADRÃO
Planta baixa barrilete
02 ESCALA 1/100
Responsável técnico:
MARINA MOURA NOTTINGHAM
CAU-CE Nº A128641-2 E
st
e 
do
cu
m
en
to
 é
 c
óp
ia
 d
o 
or
ig
in
al
 e
 a
ss
in
ad
o 
di
gi
ta
lm
en
te
 s
ob
 o
 n
úm
er
o 
T
Z
N
I3
D
H
N
P
ar
a 
co
nf
er
ir 
o 
or
ig
in
al
, a
ce
ss
e 
o 
si
te
 h
ttp
s:
//a
ss
in
ej
a.
se
po
g.
fo
rt
al
ez
a.
ce
.g
ov
.b
r/
va
lid
ar
/d
oc
um
en
to
, i
nf
or
m
e 
o 
m
al
ot
e 
87
23
10
 e
 c
ód
ig
o 
T
Z
N
I3
D
H
N
ASSINADO POR:
Este documento é cópia do original e assinado digitalmente sob o número TZNI3DHN
Para conferir o original, acesse o site https://assineja.sepog.fortaleza.ce.gov.br/validar/documento, informe o malote 872310 e código TZNI3DHN
		2021-10-07T11:53:56-0300

Mais conteúdos dessa disciplina