Logo Passei Direto
Buscar
Material
páginas com resultados encontrados.
páginas com resultados encontrados.
left-side-bubbles-backgroundright-side-bubbles-background

Crie sua conta grátis para liberar esse material. 🤩

Já tem uma conta?

Ao continuar, você aceita os Termos de Uso e Política de Privacidade

Prévia do material em texto

FIS. 303 (FÍSICA GERAL II) 
Lista de Exercícios 3 (Temperatura) 
 
Prof. Marcelos Peres 
 
1. Uma barra de comprimento �0 = ,77m e 
coeficiente de dilatação térmica 25x10-6 
por grau C é fixada em seus extremos e 
tem uma rachadura em seu centro. Como 
consequência de um aumento de 
temperatura de 320C ele se eleva no 
centro, como mostra a figura 1. Determine 
a elevação x. 
Fig. 1 
2. Mostre que se  depende da temperatura 
T, então � ≌ � [ + ⨜ � ��] 
3. Considere um termômetro de vidro com 
mercúrio. Suponha que a seção reta do 
capilar seja uma constante A e que o volume 
do bulbo de mercúrio a 0 oC seja V. Suponha 
que o mercúrio preencha completamente o 
bulbo a 0 oC. Mostre que o comprimento L da 
coluna de mercúrio no capilar, à temperatura 
T, em oC, é proporcional à temperatura, 
sendo dado por 
� = �� [ − ]� 
onde é o coeficiente de dilatação 
volumétrica do mercúrio e é o coeficiente 
de dilatação linear do vidro. 
4. A densidade é obtida dividindo-se a massa 
pelo volume. Como o volume V depende da 
temperatura, a densidade ρ também deve 
depender dela. Mostre que a variação de 
densidade ∆ρ com a variação de temperatura 
é dada por ∆ρ = − ρ∆� 
onde é o coeficiente de dilatação 
volumétrica. Explique o sinal menos. 
5. Uma barra � é composta pela justa posição 
de duas barras de comprimentos � e � , feitas 
dos materiais 1 e 2, respectivamente, como 
mostra a figura abaixo. Mostre que o 
coeficiente de dilatação linear efetivo dessa 
barra é dado por = � + � /�. 
 
 
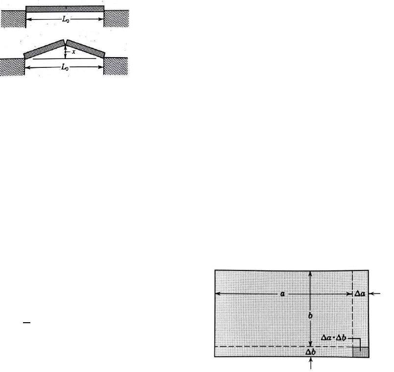
6. A área A de uma placa retangular é ab e 
seu coeficiente de dilatação linear é . Com o 
aumento de temperatura ∆�, o lado a dilata ∆ e o lado b, ∆ . Mostre que, se 
desprezarmos o pequeno termo ∆ ∆ / 
(ver figura abaixo), então ∆� = �∆�.

Mais conteúdos dessa disciplina