Logo Passei Direto
Buscar
Material
páginas com resultados encontrados.
páginas com resultados encontrados.
left-side-bubbles-backgroundright-side-bubbles-background

Crie sua conta grátis para liberar esse material. 🤩

Já tem uma conta?

Ao continuar, você aceita os Termos de Uso e Política de Privacidade

left-side-bubbles-backgroundright-side-bubbles-background

Crie sua conta grátis para liberar esse material. 🤩

Já tem uma conta?

Ao continuar, você aceita os Termos de Uso e Política de Privacidade

Prévia do material em texto

GSEducationalVersion
REV. DESCRIÇÃO MODIFICADO POR DATA
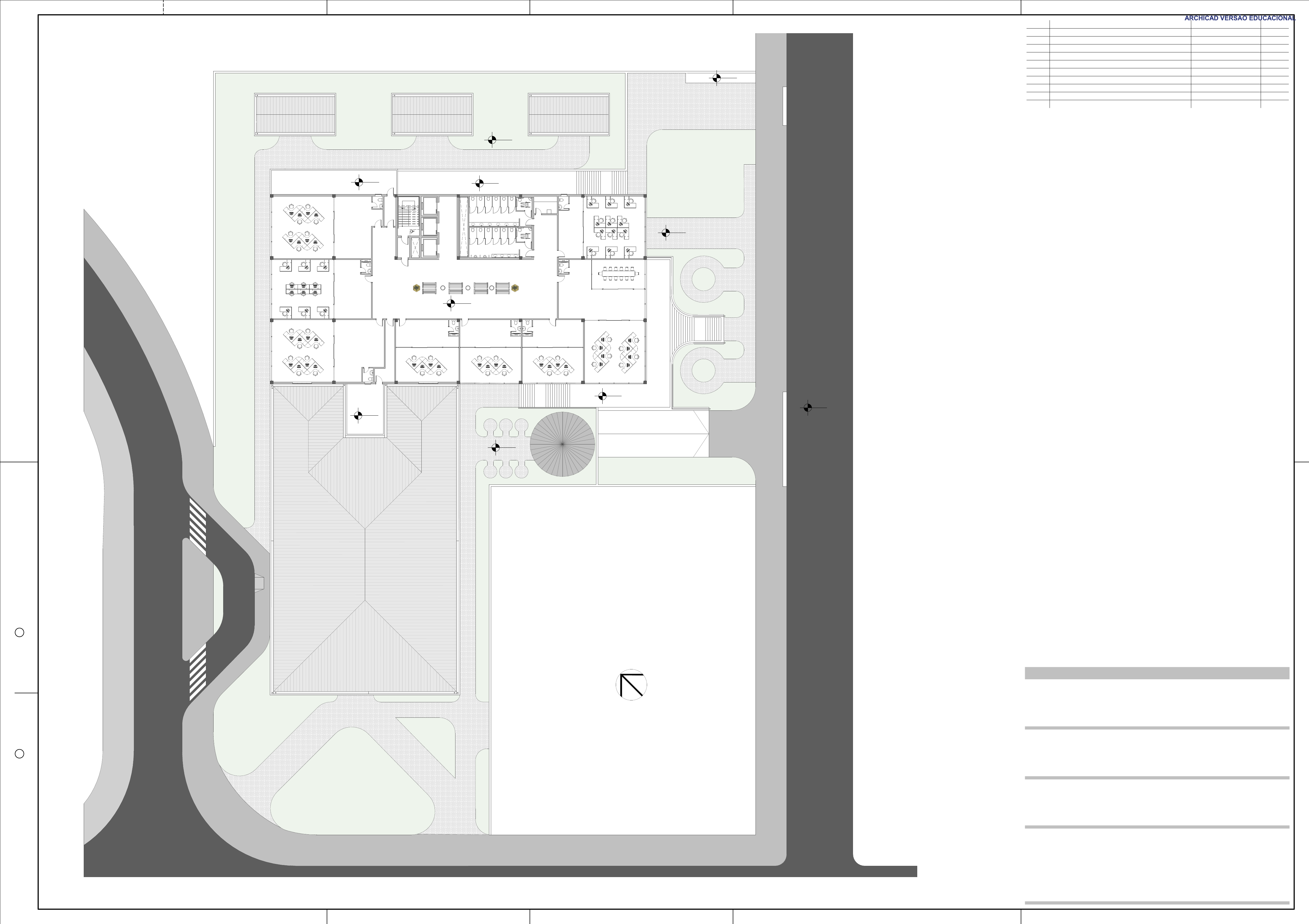
PAVIMENTO TIPO 1
FOLHA
FASE PROJETO ESCALA
PROJETO
ARQUITETO
#Nome do Projeto
05
ENDEREÇO
CIDADE ESTADO
RESPONSÁVEL
DIMENSÃO DA FOLHA
A1
DATA
CONTEÚDO
1:200EP | Estudo Preliminar
#Estado do Terreno
#Nome Completo do Projetista
#Endereço Completo do Terreno
#Cidade do Terreno
#Nome Completo do Cliente
CLIENTE
#Primeiro Nome do Projetista
REVISÃO
 
30/04/2024
#Nº Registro do Projetista
ARQUIVO DIGITAL
TERRENO DILENE RESET.pln
20,00 %
D S
DS
DS
SS
N
M
.R
.
M
.R
.
+3,50
+3,50
+3,50 -3,50
±0,00
±0,00
-3,50
±0,00
+1,50
-0,15
Platibanda 
H= 0,8m
Platibanda 
H= 0,8m
Area Tecnica
A: 30,32 m2
SALA COMERCIAL
A: 107,99 m2
SALA COMERCIAL
A: 97,54 m2
SALA COMERCIAL
A: 112,96 m2
SALA COMERCIAL
A: 64,00 m2
SALA COMERCIAL
A: 64,00 m2
SALA COMERCIAL
A: 64,00 m2
SALA COMERCIAL
A: 148,43 m2
SALA COMERCIAL
A: 89,20 m2
Area Tecnica
A: 49,91 m2
HALL
A: 210,17 m2
1° Pavimento Tipo
Escala: 1:200
GSEducationalVersion
REV. DESCRIÇÃO MODIFICADO POR DATA
PAVIMENTO TIPO 02
FOLHA
FASE PROJETO ESCALA
PROJETO
ARQUITETO
#Nome do Projeto
06
ENDEREÇO
CIDADE ESTADO
RESPONSÁVEL
DIMENSÃO DA FOLHA
A1
DATA
CONTEÚDO
1:200EP | Estudo Preliminar
#Estado do Terreno
#Nome Completo do Projetista
#Endereço Completo do Terreno
#Cidade do Terreno
#Nome Completo do Cliente
CLIENTE
#Primeiro Nome do Projetista
REVISÃO
 
30/04/2024
#Nº Registro do Projetista
ARQUIVO DIGITAL
TERRENO DILENE RESET.pln
20,00 %
D S
DS
DS
SSS
N
M
.R
.
+6,50
+3,50
+3,50
±0,00
+1,50
-3,50
±0,00
±0,00
-3,50
±0,00
SALA COMERCIAL
A: 127,52 m2
SALA COMERCIAL
A: 97,54 m2
SALA COMERCIAL
A: 126,40 m2
SALA COMERCIAL
A: 64,00 m2
SALA COMERCIAL
A: 64,00 m2
SALA COMERCIAL
A: 64,00 m2
SALA COMERCIAL
A: 148,43 m2
SALA COMERCIAL
A: 89,20 m2
HALL
A: 197,76 m2
2° Pavimento Tipo
Escala: 1:200
	EP | Estudo Preliminar
	05 PAVIMENTO TIPO 1
	06 PAVIMENTO TIPO 02

Mais conteúdos dessa disciplina