Logo Passei Direto
Buscar
Material
páginas com resultados encontrados.
páginas com resultados encontrados.
left-side-bubbles-backgroundright-side-bubbles-background

Crie sua conta grátis para liberar esse material. 🤩

Já tem uma conta?

Ao continuar, você aceita os Termos de Uso e Política de Privacidade

Prévia do material em texto

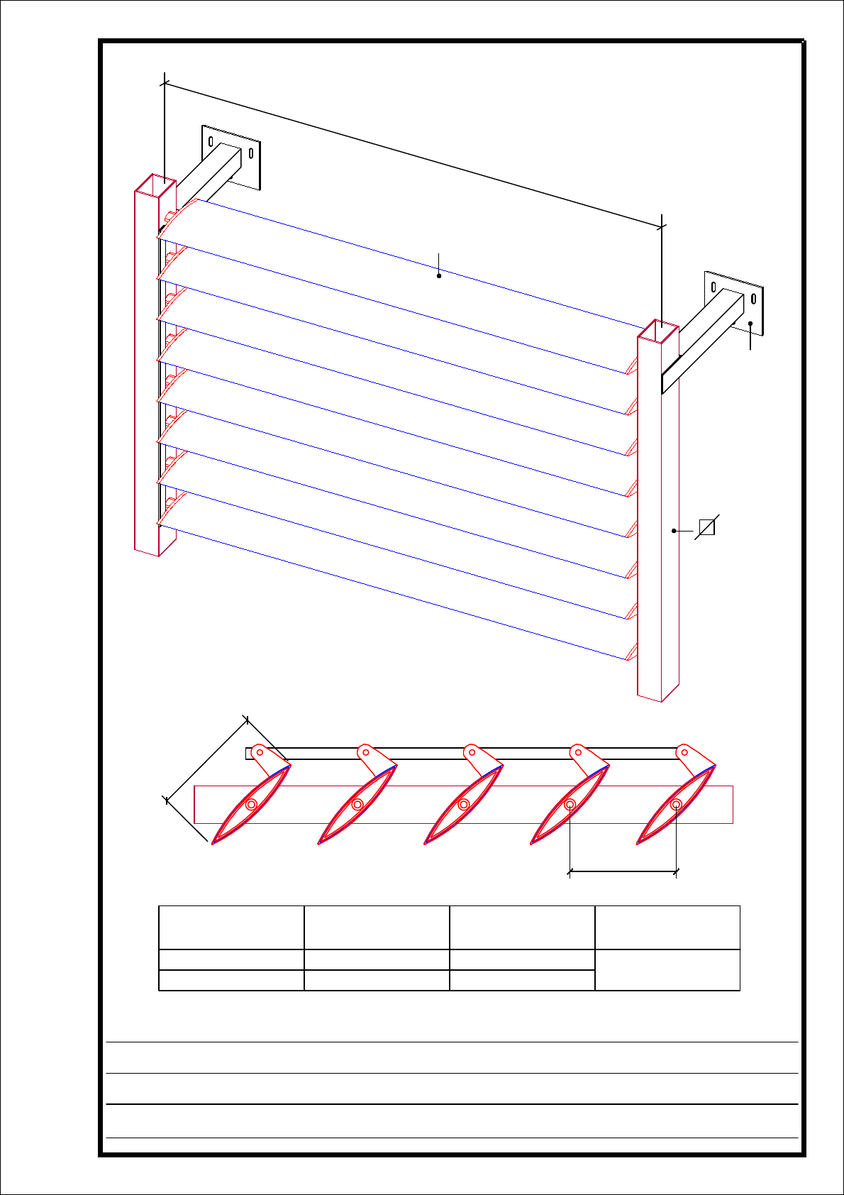
M
á
x
.
 
3
1
0
0
m
m
B
r
i
s
e
 
A
s
a
 
d
e
 
A
v
i
ã
o
 
1
5
0
 
-
 
F
i
x
o
 50x50
(modulado)
Estrutura Auxiliar
de Fixação
140
Brise 150
150
PRODUTO
(COMPONENTES) RENDIMENTO (ml/m²) ESPESSURA (mm) PESO (Kg/m²)
Painel
Porta-Painel
7,14
1,0
1,5
2,0
10
HEBERT ROSSETTO
REVISOR:
JARDENSON COSMO
DATA:
MAIO/2018
ASSUNTO:
TRABALHO AVALIATÓRIO
ESCALA:
S/E
FOLHA:
03
TÍTULO:
DETALHAMENTO DO BRISE
RESPONSÁVEL TÉCNICO:
JARDENSON COSMO
PROFESSOR:
	Sheets and Views
	Layout2

Mais conteúdos dessa disciplina