Logo Passei Direto
Buscar
Material
páginas com resultados encontrados.
páginas com resultados encontrados.

Prévia do material em texto

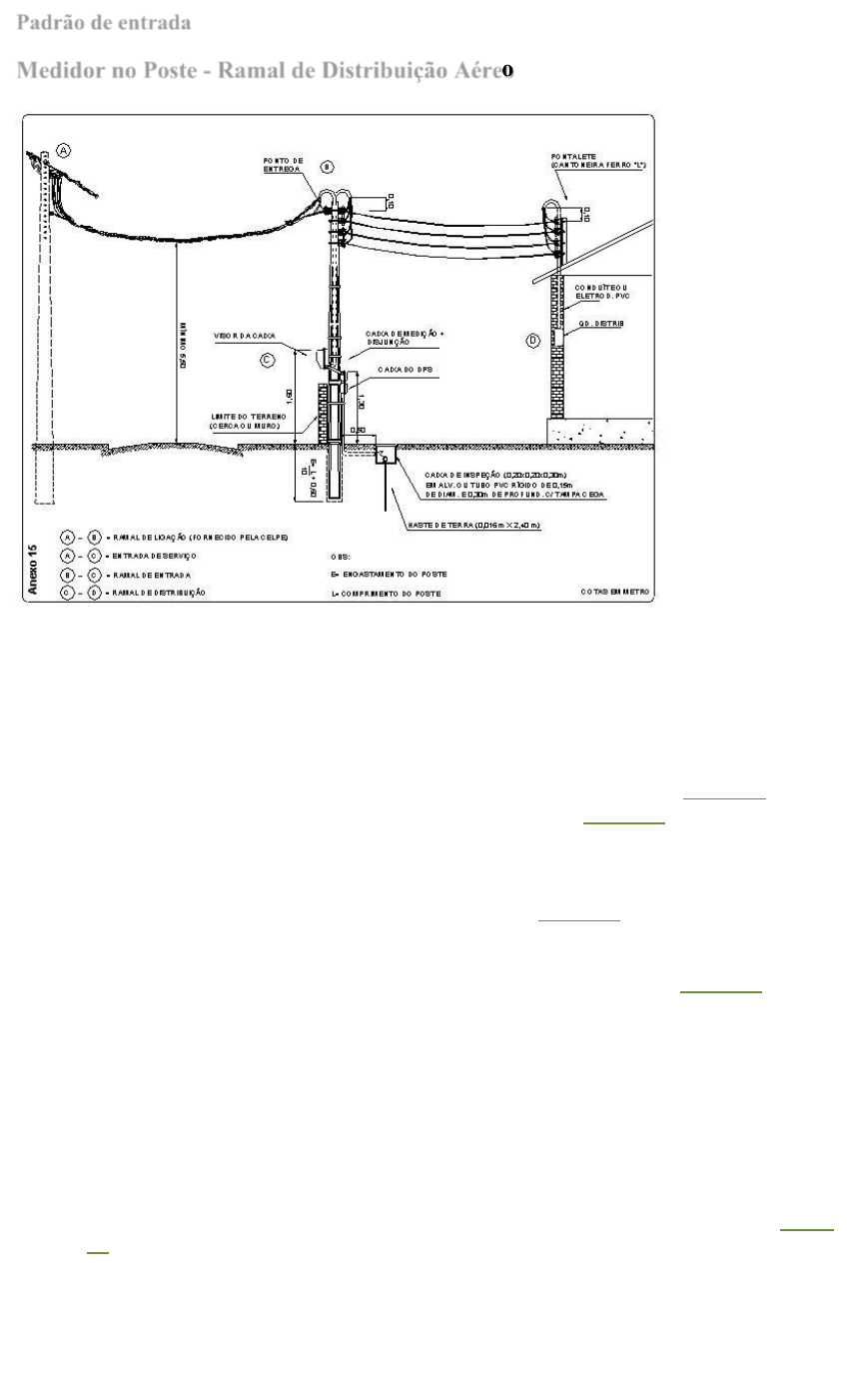
Padrão de entrada 
Medidor no Poste - Ramal de Distribuição Aéreo 
 
• Um parafuso olhal galvanizado de 12 x 200mm ou uma armação vertical de um estribo, 
em ferro galvanizado, com isolador roldana de 76x79mm e um parafuso de máquina de 
12 x 200mm com porcas e arruelas de furo Ø14mm, para fixação do ponto de entrega, 
e quatro armações de dois estribos com oito isoladores roldana de 76 x 79mm e sete 
parafusos de máquina, sendo três de 12 x 200mm e quatro de 12 x 50mm com porcas 
e arruelas de furo Ø14mm, para fixação do ramal de distribuição. 
• Um poste particular duplo T, T ou circular, dimensionado conforme tabela 03. 
• Três bengalas para eletroduto, dimensionado conforme tabela 03. 
• Curva 90º (*). 
• Luvas para eletroduto (*). 
• Buchas e arruelas de alumínio para eletroduto (*). 
• Eletroduto de PVC rígido, dimensionado conforme tabela 03. 
• Uma cantoneira de ferro galvanizado de 38 x 38 x 2000mm com dois parafusos de 12 x 
150mm para fixação na parede (**). 
• Um disjuntor termomagnético tripolar (3f), dimensionado conforme tabela 03. 
• Uma caixa plástica para medidor trifásico padrão CELPE, com buchas plásticas e 
parafusos para instalação no poste. 
• Uma caixa plástica para disjuntor trifásico padrão CELPE, com buchas plásticas e 
parafusos para instalação no poste. 
• Uma haste de aterramento de dimensões mínimas 16 x 2400mm, com conector 
apropriado. 
• Conduite flexível ou eletroduto de PVC, para interligação entre caixa de medidor, caixa 
de disjuntor e caixas de inspeção (*). 
• Três cintas com grampos de fixação, ou braçadeiras para fixar o eletroduto no poste. 
• Condutores com isolamento termoplástico de 750V, dimensionados conforme tabela 
03 (*). 
• Quadro de distribuição. 
• Uma caixa para DPS trifásico (opcional). 
• Nota: 
• A quantidade depende do seu projeto. 
• ** Esse item se torna desnecessário caso o ramal de distribuição entre direto na 
fachada. Obs. A profundidade do poste será de 10% da sua altura + 0,60m. 
https://servicos.celpe.com.br/residencial-rural/PublishingImages/padrao%20de%20entrada/tabela03.jpg
https://servicos.celpe.com.br/residencial-rural/PublishingImages/padrao%20de%20entrada/tabela03.jpg
https://servicos.celpe.com.br/residencial-rural/PublishingImages/padrao%20de%20entrada/tabela03.jpg
https://servicos.celpe.com.br/residencial-rural/PublishingImages/padrao%20de%20entrada/tabela03.jpg
https://servicos.celpe.com.br/residencial-rural/PublishingImages/padrao%20de%20entrada/tabela03.jpg
https://servicos.celpe.com.br/residencial-rural/PublishingImages/padrao%20de%20entrada/tabela03.jpg

Mais conteúdos dessa disciplina