Logo Passei Direto
Buscar
Material
páginas com resultados encontrados.
páginas com resultados encontrados.
details

Libere esse material sem enrolação!

Craque NetoCraque Neto

Ao continuar, você aceita os Termos de Uso e Política de Privacidade

Prévia do material em texto

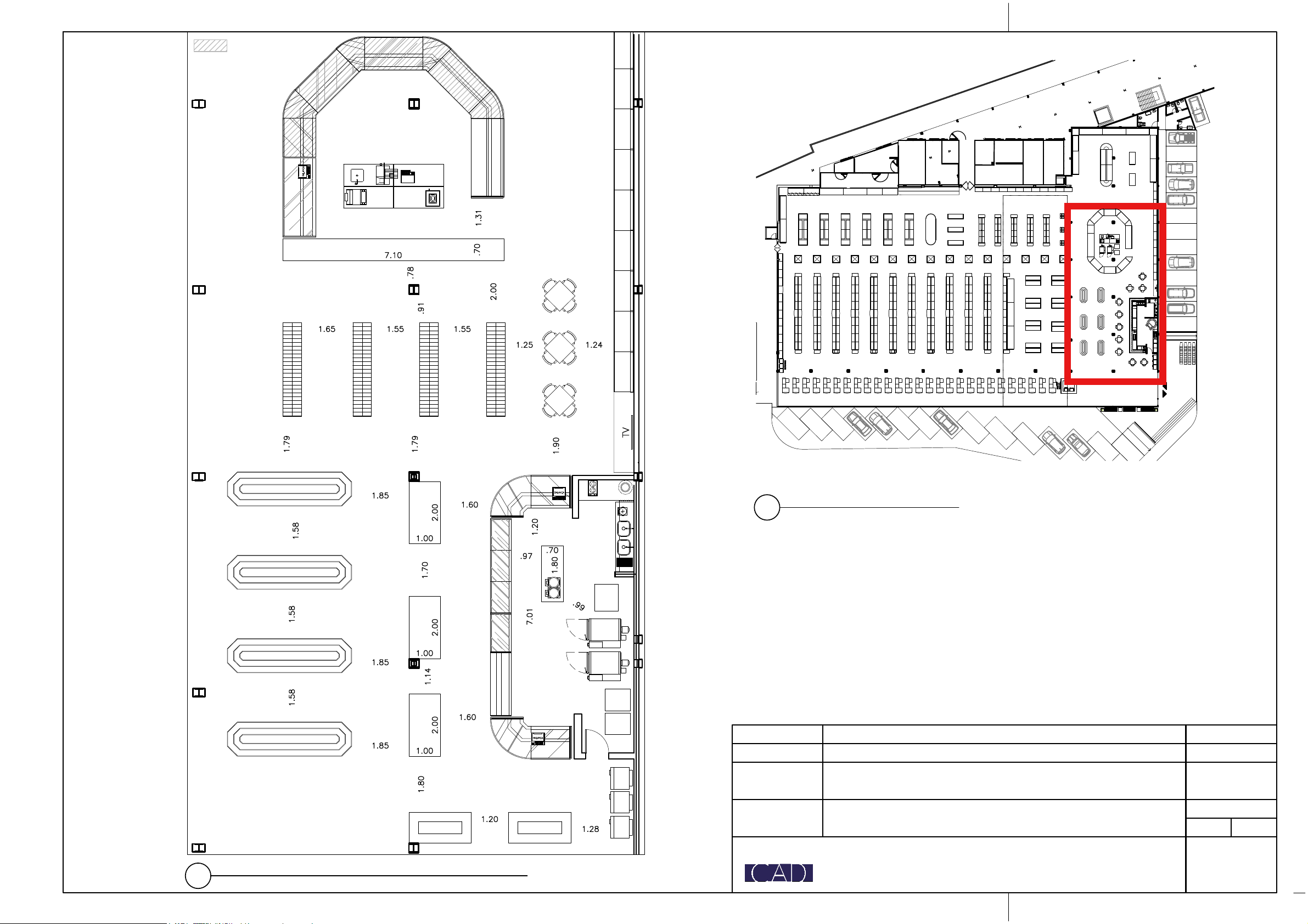
ATEND.FRIOS
BALCÃO EXISTENTE
MESAS 4 LUGARES
D
IS
PL
A
Y
B
IS
C
O
IT
O
S
D
IS
PL
A
Y
PÃ
ES
D
IS
PL
A
Y
PÃ
ES
MESA BOLOS MESA BOLOS
EXPOSITOR PÃES (4.00x1.10m)
EXPOSITOR PÃES (4.00x1.10m)
EXPOSITOR PÃES (4.00x1.10m)
EXPOSITOR PÃES (4.00x1.10m)
C
PREP. PIZZA
ATEND.
PADARIA
C
G
EL
A
D
EI
R
A
S
EX
IS
TE
N
TE
S
ADEGA
EN
O
TE
C
A
 (
3
.0
0
X0
.6
0
m
)
EN
O
TE
C
A
 (
3
.0
0
X0
.6
0
m
)
EN
O
TE
C
A
 (
3
.0
0
X0
.6
0
m
)
EN
O
TE
C
A
 (
3
.0
0
X0
.6
0
m
)
PIZZA (1.25m)
forno pizza
rational
PR
A
TE
LE
IR
A
PÃ
ES
(2
.0
5
m
)
V
IT
R
IN
E
PÃ
ES
(4
.3
0
m
)
FR
IO
S
 F
EC
H
. 
(2
.5
0
m
)
FR
IO
S
 P
R
A
T.
 (
2
.5
0
m
)
re
fr
es
qu
ei
ra
s
TORTAS (1.25m)
ESCALA:DATA:
COORDENAÇÃO:
Av. das Américas - 15700 - sala 205 - Shopping Time Center
 Recreio dos Bandeirantes - Rio de Janeiro - RJ - Cep: 22790-701
(21) 2274-3515 / 99556-7509
 biabreves@intercad.arq.br
www.intercad.arq.br
Bia Breves
DESCRIÇÃO: DESENHO:DATA:
Salão de Vendas e Serviços
Criação do Desenho
arquitetura & design
INTER
PROJETO:CÓD. DO PROJETO:
CÓD. DO DESENHO:
S
M
D
H
-
E
X
E
-
0
1
-
P
L
A
N
T
A
 
B
A
I
X
A
 
P
A
D
A
R
I
A
_
R
0
3
.
D
W
G
SMDH
EP
Amanda Martins
Amanda Martins
JAN/2018 INDICADA
Rua Dom Helder Câmara, nº 2288 e 2341 - Maria da Graça - Rio de Janeiro
SUPERMARKET DOM HELDER CÂMARA
ESTUDO PRELIMINAR - PLANTA BAIXA PADARIA E CAFÉ (PROPOSTO)_R03
01A
15/01/2018
2
PLANTA DE LOCALIZAÇÃO
ESC. 1/500
1
PLANTA BAIXA - AMPLIAÇÃO PADARIA PROPOSTA
ESC. 1/100
AutoCAD SHX Text
TV
AutoCAD SHX Text
BALANÇA
AutoCAD SHX Text
BALANÇA
AutoCAD SHX Text
BALANÇA
AutoCAD SHX Text
SORVETES
AutoCAD SHX Text
TV
	Sheets and Views
	EXECUTIVO