Logo Passei Direto
Buscar
Material
páginas com resultados encontrados.
páginas com resultados encontrados.
left-side-bubbles-backgroundright-side-bubbles-background

Crie sua conta grátis para liberar esse material. 🤩

Já tem uma conta?

Ao continuar, você aceita os Termos de Uso e Política de Privacidade

Prévia do material em texto

CURSO DE ENGENHARIA MECÂNICA 
DISCIPLINA: ESTÁTICA 
Profº José Luiz Salvador 
Acadêmico:______________________________________ 
Lista 09 
 
 
 
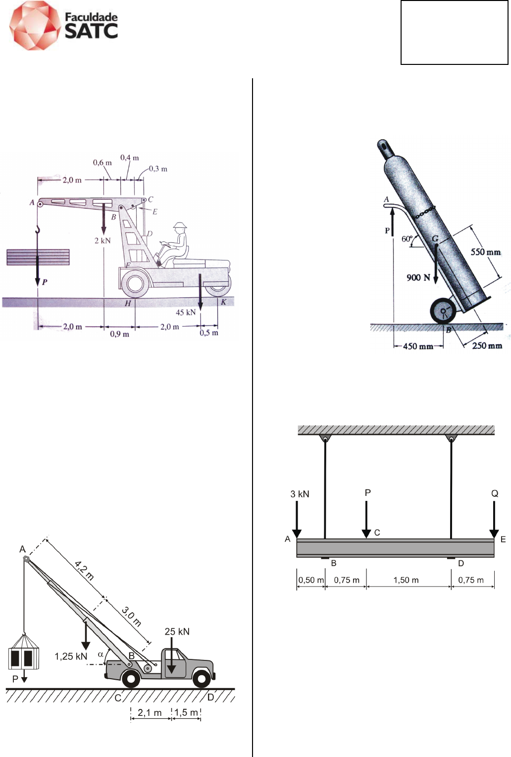
01. Uma carga de madeira de peso P = 20 kN esta 
sendo erguida por um guindaste. O peso da lança 
ABC e o peso combinado do veículo e do 
motorista estão indicados na figura. Determine a 
reação em cada uma das duas rodas: (a) 
dianteira H e (b) traseiras K. 
 
 
 
02. Na mesma situação do exercício anterior, calcule: 
(a) a tração na haste CD e (b) a reação no pino B. 
 
 
03. Determine a maior carga que pode ser erguida 
pelo guindaste do Prob. 01 sem que ele tombe, 
sabendo que a maior força que pode ser exercida 
pelo cilindro hidráulico D é de 96 kN e que a 
maior tração permitida no cabo AEF é 40 kN. 
 
 
04. No guindaste montado no caminhão, determine o 
menor ângulo α para que o caminhão não tombe 
quando a carga P de 15 kN for levantada. 
 
 
 
 
05. Um carrinho de mão é utilizado para transportar 
um cilindro de ar comprimido. Sabendo que o 
peso total do carrinho e do cilindro é de 900 N, 
determine: (a) a força vertical P que deve ser 
aplicada ao braço do carrinho para manter o 
sistema na 
posição ilustrada 
e (b) a reação 
correspondente 
em cada uma 
das rodas. 
 
 
06. Três cargas são aplicadas a uma viga leve 
suspensa por cabos presos em B e D. 
Desprezando o peso da viga, determine o 
intervalo de valores de Q para os quais nenhum 
dos dois cabos fica frouxo quando P = 0. 
 
 
07. Nas condições do exercício anterior, determine o 
intervalo de valores de Q para os quais o 
carregamento é seguro, com P = 1 kN. 
 
RESPOSTAS 
01. a) 54,92 kN ↑ b) 12,08 kN ↑ 
02. a) 64,6 kN b) 106,6 kN ↑ 
03. 30 kN 
04. α = 62º 
05. a) 117 N ↑ b) 392 N ↑ 
06. 0,5 kN ≤ Q ≤ 11 kN 
07. 0,25 kN ≤ Q ≤ 13 kN

Mais conteúdos dessa disciplina