Logo Passei Direto
Buscar
Material
páginas com resultados encontrados.
páginas com resultados encontrados.
left-side-bubbles-backgroundright-side-bubbles-background

Crie sua conta grátis para liberar esse material. 🤩

Já tem uma conta?

Ao continuar, você aceita os Termos de Uso e Política de Privacidade

left-side-bubbles-backgroundright-side-bubbles-background

Crie sua conta grátis para liberar esse material. 🤩

Já tem uma conta?

Ao continuar, você aceita os Termos de Uso e Política de Privacidade

Prévia do material em texto

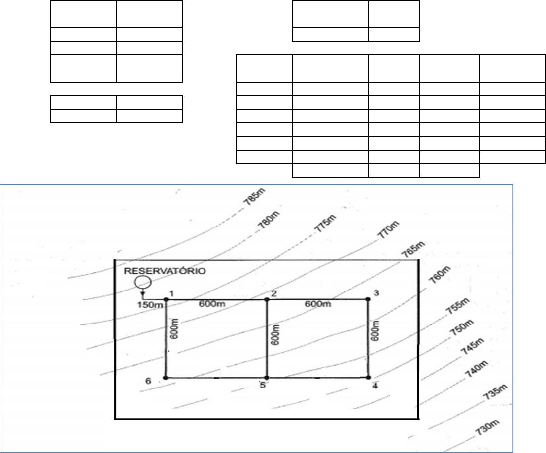
População 
(hab/ha) 480 n 1,85
q (l/hab.dia) 200 C 130
k1 1,2
k2 1,5 Nó Área (ha) Área (m2)Q (l/s)
Somatório 
(l/s)
1 30 300000 60,0 0,0
Q (m3/s.ha) 0,002 2 30 300000 60,0 0,0
Q (l/s.ha) 2,00 3 30 300000 60,0 0,0
4 30 300000 60,0 0,0
5 30 300000 60,0 0,0
6 30 300000 60,0 0,0
180 1800000 360,0
Trecho
Velocidade 
(m/s)
Velocidade 
Porto (m/s)
Diâmetro 
(mm)
Vazão 
Inicial 
(l/s)
Perda de 
carga unitária 
(m/m) L (m)
Perda de 
carga (m) nh0/Q0 ∆Q0 (l/s) Q1 (l/s)
Perda de 
carga (m)
1-2 1,069 1,28 450 170 0,00241 600 1,445 0,016 2,29 172,29 1,481
2-5 0,815 0,98 250 40 0,00290 600 1,740 0,080 2,29 43,99 2,075
5-6 0,990 1,05 300 -70 0,00336 600 -2,016 0,053 2,29 -67,71 -1,896
6-1 1,035 1,20 400 -130 0,00260 600 -1,561 0,022 2,29 -127,71 -1,511
-0,392 0,172 0,149
∆Q 2,286
2-3 0,990 1,05 300 70 0,00336 600 2,016 0,053 -1,71 68,29 1,926
3-4 0,566 0,83 150 10 0,00269 600 1,611 0,298 -1,71 8,29 1,140
4-5 0,707 1,05 300 -50 0,00180 600 -1,082 0,040 -1,71 -51,71 -1,151
2-5 0,815 0,98 250 -40 0,00290 600 -1,740 0,080 -1,71 -43,99 -2,075
0,805 0,472 -0,160
∆Q -1,707
R-1 1,273 1,50 600 360,0 0,00238 150 0,357
Cota
Pressão 
estática
Perda de 
carga
Pressão 
dinâmica -2,64
777,0 13,00 0,36 12,64 790
769,0 21,00 1,84 19,16 780,00
762,5 27,50 3,76 23,74 10,00
750,5 39,50 4,90 34,60 39,50
755,5 34,50 3,91 30,59
761,0 29,00 1,87 27,13
P. E. Máx
Correção
Altura Reserv..
Cota - Reserv.
H-reservatório

Mais conteúdos dessa disciplina