Logo Passei Direto
Buscar
Material
páginas com resultados encontrados.
páginas com resultados encontrados.
left-side-bubbles-backgroundright-side-bubbles-background

Crie sua conta grátis para liberar esse material. 🤩

Já tem uma conta?

Ao continuar, você aceita os Termos de Uso e Política de Privacidade

Prévia do material em texto

Instituto de Matemática e Estatística – Dep. Representação Gráfica 
Desenho Técnico I 
Prof. Carlos Alexandre de Araújo 
 
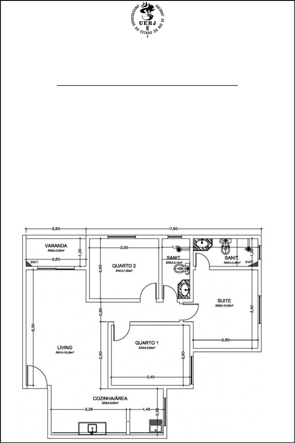
Trabalho 04 – PLANTA HIDRÁULICA E SANITÁRIA 
 
A partir da planta baixa dada, com medidas em metros, crie a planta hidráulica e sanitária 
para a residência. Considere: 
 Paredes externas e internas com 15cm. Indicar o nome dos cômodos da planta 
(sem as áreas). 
 Janelas dos quartos, cozinha e suítes: 1,0m x 1,0m x 1,20m; dos sanitários: 0,60m 
x 0,60m x 1,80m; porta do living: 2,0m. Todos no centro de cada parede. Parede da 
área de serviço: 0,60m de largura. Cantos de portas: 10cm. Portas dos quartos, 
suíte e living: 0,80m x 2,10m; Portas dos banheiros: 0,60m x 2,10m. 
 Não é preciso alocar móveis e utensílios. Não precisa cotar a planta baixa. Não 
precisa indicar os níveis. 
 Deve-se alocar todos os pontos dos equipamentos hidráulicos e sanitários 
(utilizadores): vasos, pias, tanques, máquina de lavar, ralos, esgoto primário e 
secundário, tubos de ventilação, etc. 
 Criar o reservatório (caixa d´água em local apropriado) e todos os acessórios de 
saída de distribuição e entrada da rua (tubos, conexões e válvulas). 
 Não se esqueça do relógio medidor vindo da empresa de abastecimento (CEDAE).

Mais conteúdos dessa disciplina