Logo Passei Direto
Buscar
Material
páginas com resultados encontrados.
páginas com resultados encontrados.
left-side-bubbles-backgroundright-side-bubbles-background

Crie sua conta grátis para liberar esse material. 🤩

Já tem uma conta?

Ao continuar, você aceita os Termos de Uso e Política de Privacidade

Prévia do material em texto

CV523 - Geotecnia I
Lista de Exercícios: Compactação dos Solos
1- Com uma amostra de solo argiloso com areia fina, a ser usado num aterro, foi executado um
ensaio de compactação tipo Proctor Normal. Na tabela abaixo estão as massas dos corpos de
prova determinadas em cinco moldagens feitas num cilindro com volume de 992cm3. Também
estão indicadas na tabela os valores do teor de umidade correspondentes a cada moldagem. Sabe-
se qua a massa específica dos sólidos desse solo é 2,65 g/cm3.
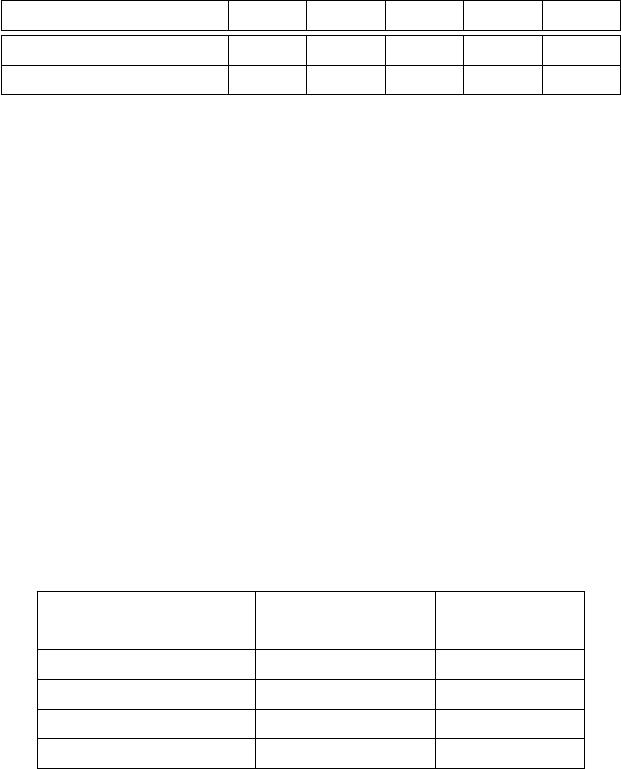
Ensaio nº 1 2 3 4 5
Massa do CP (kg) 1,748 1,817 1,874 1,896 1,874
Teor de umidade (%) 17,73 19,79 21,59 23,63 25,75
Traçar a curva de compactação e determinar o peso específico seco máximo e o teor de
umidade ótimo. Determinar também o grau de saturação do solo no ponto de máximo da curva.
2- O teor de umidade in situ de um solo é 16% e seu peso específico natural é 17,3kN/m3. O
peso específico dos sólidos desse solo é 27,2kN/m3. O solo deverá ser escavado e transportado
para um canteiro de obras para utilização em um aterro compactado. Caso as especificações desse
aterro requeiram que o solo seja compactado com um peso específico de no mínimo 18,1kN/m3
e um teor de umidade de 16%, quantos metros cúbicos de solo deverão ser retirados da área de
empréstimo para um volume de aterro de 2000m3?
3-Um projeto de aterro requer 5000m3 de solo compactado. O índice de vazios especificado para
o aterro é 0,7. Quatro áreas de empréstimo estão disponíveis como indicado na tabela a seguir,
que relaciona os respectivos índices de vazios do solo no local e o custo por metro cúbico do
transporte do solo para o canteiro de obras proposto. Qual a área de empréstimo que apresenta o
menos custo de transporte total, considerando que todos os solos têm o mesmo peso específico
dos sólidos?
Área de empréstimo Índice de vazios Custo ($/m3)
A 0,8 9
B 0,9 6
C 1,1 7
D 0,85 10

Mais conteúdos dessa disciplina