Logo Passei Direto
Buscar
Material
páginas com resultados encontrados.
páginas com resultados encontrados.
left-side-bubbles-backgroundright-side-bubbles-background

Crie sua conta grátis para liberar esse material. 🤩

Já tem uma conta?

Ao continuar, você aceita os Termos de Uso e Política de Privacidade

Prévia do material em texto

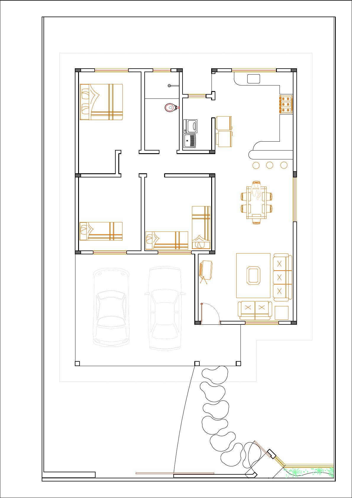
GARAGEM
CIRC.
COZINHA
Muro h=2,20m
QUARTO 1
A:11,55m²
QUARTO 2
A: 9,22m²
QUARTO 3
A: 9,87m²
A: 3,87m²
BANHO
A: 5,43m²
LAV.
A: 3,05m²
A: 15,94m²
A: 26,75m²
JANTAR
A: 12,57m²
ÁREA
A: 3,38m²
ESTAR
A: 12,75m²
P1
P2 P3
P4
P5
P6
P7
P8 P9
P10
P11
P12
P13
P14
P3
P2
P15
Projeção da Cobertura
Projeção da Cobertura
	Folhas e vistas
	Layout1

Mais conteúdos dessa disciplina