Logo Passei Direto
Buscar
Material
páginas com resultados encontrados.
páginas com resultados encontrados.

Prévia do material em texto

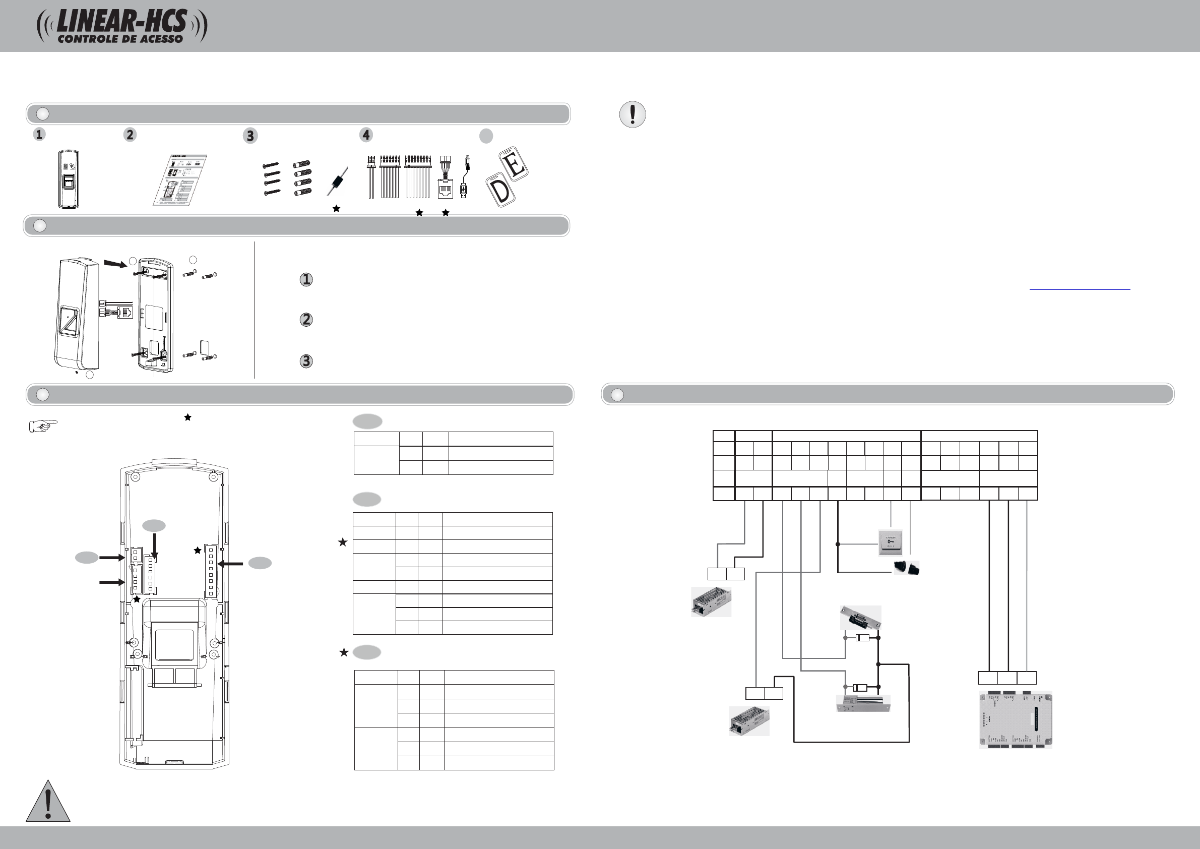
<p>GND D1 D0</p><p>Conexões</p><p>Diagrama de instalação</p><p>Controladora Guia de Instruções Kit de Acessórios</p><p>Conteúdo da Embalagem</p><p>Conectores</p><p>Controladora Digital de Acesso e Interruptor de Alimentação, Alimentação e Leitor de Controle de Acesso</p><p>V3.13</p><p>12</p><p>3</p><p>As interfaces marcadas com são para modelos específicos,</p><p>Por favor, consulte o guia de instalação do equipamento utilizado.</p><p>P1 P2 P3 RJ45 USB</p><p>P1</p><p>P3</p><p>P2</p><p>RJ45(TCP/IP)</p><p>Função PINO Cor Descrição</p><p>1</p><p>2</p><p>12VDC</p><p>Alimentação</p><p>Vermelho</p><p>Preto GND</p><p>P1</p><p>Função PINO Cor Descrição</p><p>Saída</p><p>Wiegand</p><p>RS485</p><p>1</p><p>2</p><p>3</p><p>4</p><p>5</p><p>6</p><p>Branco</p><p>Preto</p><p>Amarelo</p><p>Roxo</p><p>Preto</p><p>DATA1 Saída Wiegand</p><p>DATA0 Saída Wiegand</p><p>GND</p><p>GND</p><p>RS485A</p><p>RS485B</p><p>Verde</p><p>P2</p><p>Função PINO Cor Descrição</p><p>1</p><p>2</p><p>3</p><p>4</p><p>5</p><p>6</p><p>Entrada de DisparoSensor Porta</p><p>Botoeira de Saída</p><p>Roxo</p><p>Amarelo</p><p>Branco</p><p>Branco</p><p>Preto</p><p>Verde</p><p>Laranja</p><p>Azul</p><p>7</p><p>8</p><p>Entrada de Disparo</p><p>Relé</p><p>GND</p><p>COM</p><p>NF</p><p>NA</p><p>GND</p><p>P3</p><p>Antes de energizar os equipamentos, verifique atentamente o esquema de ligação. Qualquer produto danificado devido a</p><p>erros na ligação não serão cobertos pela garantia do produto. Este equipamento é montado em modelo O&M</p><p>(fabricação sob solicitação) em fornecedor internacional com customização especial de firmware para a Linear-HCS.</p><p>Todos os direitos de marcas registrados pela Linear-HCS, assim como as responsabilidades de aplicação, suporte e manutenção.</p><p>6 5 4 3 2 1</p><p>GND GND D1 D0</p><p>Saída Wiegand</p><p>P3</p><p>RS485B RS485A</p><p>RS485</p><p>1</p><p>2</p><p>3 4</p><p>Controladora Digital de Acesso LN5-P</p><p>30/01/2017</p><p>Conector P3</p><p>Conector P3</p><p>Sensor de Porta</p><p>Fech. Elétrica</p><p>(Energiza para</p><p>desbloquear)</p><p>+12V GND</p><p>+</p><p>+</p><p>+</p><p>Porta</p><p>Pino 1 2 8 7 6 5 4 3 2 1</p><p>Função GND</p><p>Conector +12V GND NA NF COM ABRE</p><p>Entrada de</p><p>Alimentação Controlador de Saída</p><p>P1 P2</p><p>Bot.</p><p>de</p><p>Saída</p><p>Sens.</p><p>de</p><p>Porta</p><p>GND PORTA</p><p>Fech. Magnética</p><p>(Desenergiza para</p><p>desbloquear)</p><p>Fonte de Alimentação</p><p>da controladora</p><p>+12V GND</p><p>ou</p><p>Fonte de Alimentação</p><p>das fechaduras</p><p>Diodo</p><p>Diodo</p><p>Passos de Instalação</p><p>1</p><p>2</p><p>3</p><p>F u r e a p a r e d e s e g u i n d o a s</p><p>posições dos furos do painel traseiro.</p><p>Instale e fixe o painel traseiro, conecte</p><p>os cabos relacionados.</p><p>Fixe a controladora de acesso.</p><p>A utilização de equipamentos com reconhecimento biométrico é contraindicado para acesso a portões de garagem com</p><p>entrada de veículos.Para mais informações leia o “Termo de uso de Biometrias” disponível em www.linear-hcs.com.br</p><p>IMPORTANTE</p><p>Atenção!</p><p>NÃO INSTALE este equipamento exposto ao tempo. Recomendamos que se utilize PROTEÇÃO</p><p>total contra sol e chuva em toda e qualquer instalação deste equipamento. O contato com água</p><p>danificará os sensores biométricos, podendo apresentar funcionamento impreciso, erro na leitura</p><p>ou mesmo tentativa de reconhecimento de digital sem que haja alguém utilizando o equipamento.</p><p>A luz solar também danificará o sensor, pois o mesmo não é munido de proteção eletrônica ou</p><p>mecânica contra o forte calor e incidência de luz solar direta.</p><p>Controle de Acesso</p><p>Controladora Digital de Acesso LN5-P</p><p>- 3000 impressões digitais e 50000 registros;</p><p>- RS485, Saída Wiegand66, saída de contato seco, interface de rede TCP / IP.</p><p>Cor VEBOPOAORO POROAOBOBOPOVELAALPOVO</p><p>Cartões RFID</p><p>Enroll Card</p><p>Delete Card</p><p>5</p><p>http://www.linear-hcs.com.br</p><p>Ligação</p><p>Cadastramento de Usuário:</p><p>Furação do parafuso</p><p>Conexão mini usb</p><p>Botão Reset</p><p>Ao alimentar o dispositivo com 12VDC, o LED azul do sensor de impressão digital pisca rapidamente e emite alertas sonoros.</p><p>Acompanham 2 cartões na embalagem: Cadastrar Deletar Usuário (não incluso)</p><p>Embaixo:</p><p>Guia de Operação</p><p>Dimensões e características</p><p>Coloque sempre o dedo</p><p>no centro do sensor.</p><p>NÃO coloque o dedo</p><p>afastado do centro da</p><p>área do sensor.</p><p>Modo correto</p><p>Modo Incorreto:</p><p>Exclusão de usuário:</p><p>NÃO deslize o dedo</p><p>durante o processo de</p><p>verificação da impressão digital</p><p>NÃO tire o dedo durante</p><p>o processo de verificação</p><p>da impressão digital.</p><p>NÃO use apenas</p><p>a ponta do dedo.</p><p>Instruções de posicionamento do dedo no sensor.</p><p>NÃO mova o dedo antes</p><p>da luz de fundo do</p><p>sensor desligar.</p><p>LED</p><p>Leitor de cartões:</p><p>passe o cartão sobre</p><p>essa área.</p><p>O status do dispositivo</p><p>possui três cores:</p><p>Vermelho, Azul e Verde.</p><p>Sensor de Impressão</p><p>Digital: coloque o</p><p>dedo nesse local.</p><p>NÃO coloque o</p><p>dedo em ângulo</p><p>37mm</p><p>1</p><p>4</p><p>5</p><p>m</p><p>m</p><p>55mm</p><p>(Posicione seu dedo sobre o sensor de maneira que o dedo cubra toda a superficie do sensor exercendo uma leve pressão para baixo.)</p><p>Certifique-se de cobrir toda</p><p>a superfície do sensor com</p><p>o máximo de seu dedo possível.</p><p>Passe o</p><p>”Enroll Card“</p><p>para iniciar</p><p>Cadastrando Impressão Digital+Cartão (siga conforme a figura1.3)</p><p>Coloque</p><p>o dedo</p><p>Coloque o dedo</p><p>novamente</p><p>Figura 1.3</p><p>Passe o</p><p>cartão do</p><p>usuário</p><p>Passe o</p><p>”Enroll Card“</p><p>para encerrar.</p><p>Continuar cadastrando</p><p>O LED AZUL</p><p>piscará</p><p>rapidamente</p><p>O LED AZUL</p><p>continua a piscar</p><p>rapidamente</p><p>Piscará o</p><p>LED AZUL</p><p>O Led VERDE se</p><p>acende e 4 bips curtos</p><p>são emitidos indicando</p><p>sucesso na operação</p><p>Nota: Se durante a exclusão o LED</p><p>VERMELHO apagar-se e emitir um bip</p><p>longo, significa que o usuário não existe.</p><p>Figura 1.4</p><p>Excluir Cartão+Impressão Digital: (siga conforme a figura1.4)</p><p>Continuar excluindo Após finalizar a exclusão, siga excluindo outros cadastros</p><p>ou passe o cartão Deletar (Delete Card) para salvar e sair.</p><p>Passe o</p><p>”Delete Card“</p><p>para iniciar</p><p>Piscará o</p><p>LED</p><p>VERMELHO</p><p>O LED VERMELHO</p><p>piscará</p><p>rapidamente</p><p>Passe o</p><p>cartão do</p><p>usuário</p><p>Passe o</p><p>Cartão de</p><p>Usuário</p><p>Novamente</p><p>Passe o</p><p>”Delete Card“</p><p>para encerrar.</p><p>O Led VERDE se</p><p>acende e 4 bips curtos</p><p>são emitidos indicando</p><p>sucesso na operação</p><p>Passe o</p><p>Cartão de</p><p>Usuário</p><p>Figura 1.2</p><p>Passe o</p><p>”Enroll Card“</p><p>para iniciar</p><p>O LED AZUL</p><p>piscará</p><p>rapidamente</p><p>Continuar cadastrando</p><p>Passe o</p><p>”Enroll Card“</p><p>para encerrar.</p><p>Passe o</p><p>Cartão de</p><p>Usuário</p><p>Novamente</p><p>Cadastrando Cartão de Usuário: (siga conforme a figura1.2)</p><p>Após finalizar o cadastro, siga com um novo cadastro</p><p>ou passe o cartão de cadastramento (Enroll Card)</p><p>para salvar e sair.</p><p>Nota: Se durante o cadastramento o LED</p><p>VERMELHO piscar com dois bips longos,</p><p>significa que o cartão de usuário já</p><p>está cadastrado.</p><p>Piscará o</p><p>LED AZUL</p><p>O Led VERDE se</p><p>acende e 4 bips curtos</p><p>são emitidos indicando</p><p>sucesso na operação</p><p>5</p><p>6</p><p>7</p><p>Botão de Função</p><p>NOTA: A operação não irá eliminar todos os dados de usuários</p><p>armazenados no dispositivo.</p><p>No entanto, se a biometria for configurada com Wiegand 66, será</p><p>necessário reconfigurar no software, pois esta configuração volta</p><p>para o padrão wiegand 26, e o tempo de relé volta para o padrão</p><p>de 5 segundos.</p><p>Botão Função</p><p>Para excluir os cartões de Cadastramento (Enroll Card) e o cartão de deletar (Delete Card), pressione e segure o botão</p><p>função, será emitido um bip, mantenha o botão pressionado até ouvir uma sequência de bips. Após a exclusão deverão</p><p>ser cadastrados novos cartões mestres ( Enroll Card e Delete Card) para operar o equipamento.</p><p>Figura 1.5</p><p>Botão Função</p><p>Cadastrando Cartões Mestres (Enroll Card e Delete Card)</p><p>Passe o</p><p>”Enroll Card“</p><p>para iniciar</p><p>Status inicial</p><p>Piscando o</p><p>LED AZUL</p><p>Passe o</p><p>”Delete Card“</p><p>para encerrar.</p><p>O Led VERDE se</p><p>acende e 4 bips</p><p>curtos são emitidos</p><p>LED VERMELHO</p><p>piscando</p><p>O Led VERDE se</p><p>acende e 4 bips</p><p>curtos são emitidos</p><p>8</p><p>V3.13Controladora Digital de Acesso LN5-P</p><p>Nota: Se durante o cadastramento o LED</p><p>VERMELHO piscar com dois bips longos,</p><p>significa que o cartão de usuário já</p><p>encontra-se cadastrado.</p><p>Após finalizar o cadastro, siga com um novo cadastro</p><p>ou passe o cartão de cadastramento (Enroll Card)</p><p>para salvar e sair.</p><p>30/01/2017</p><p>Comunicação PC-HCS 2010</p><p>Para monitorar e gerenciar as biometrias série LN através de um PC utilizando o Sistema Linear (Módulo Guarita), acesse o site</p><p>, e na opção ‘Software’ baixe o Comunicação PC-HCS (Software HCS).www.linear-hcs.com.br</p><p>9</p><p>Enroll Card</p><p>SN:000000000000</p><p>Delete Card</p><p>SN:000000000000</p><p>Cartões</p><p>http://www.linear-hcs.com.br</p><p>Página 1</p><p>Página 2</p>

Mais conteúdos dessa disciplina