Logo Passei Direto
Buscar
Material
páginas com resultados encontrados.
páginas com resultados encontrados.
left-side-bubbles-backgroundright-side-bubbles-background

Experimente o Premium!star struck emoji

Acesse conteúdos dessa e de diversas outras disciplinas.

Libere conteúdos
sem pagar

Ajude estudantes e ganhe conteúdos liberados!

left-side-bubbles-backgroundright-side-bubbles-background

Experimente o Premium!star struck emoji

Acesse conteúdos dessa e de diversas outras disciplinas.

Libere conteúdos
sem pagar

Ajude estudantes e ganhe conteúdos liberados!

left-side-bubbles-backgroundright-side-bubbles-background

Experimente o Premium!star struck emoji

Acesse conteúdos dessa e de diversas outras disciplinas.

Libere conteúdos
sem pagar

Ajude estudantes e ganhe conteúdos liberados!

Prévia do material em texto

UNIVERSIDADE CEUMA 
Disciplina: Mecânica Geral. 
Curso de Engenharia civil – 3º Período. 
Prof. Wesdney Melo 
 
LISTA DE EXERCÍCIOS 02 
 
1ª) O transformador elétrico de 1500 N com 
centro de gravidade em G é sustentado por um 
pino em A e um apoio em B. Determine as 
componentes horizontal e vertical da reação no 
pino A e a reação do apoio B sobre o 
transformador. 
 
 
 
2ª) A régua abaixo é homogenia e está em 
equilíbrio estático. Calcule o valor de F. 
 
 
 
 
 
 
 
3ª) Encontre a tração no pino A desenvolvida 
no cabo BC usado para sustentar a estrutura 
de aço. 
 
 
 
 
 
 
 
 
 
 
 
 
 
 
4ª) Determine as componentes horizontal e 
vertical no pino C e a tração no cabo AB da 
treliça da figura. 
 
 
 
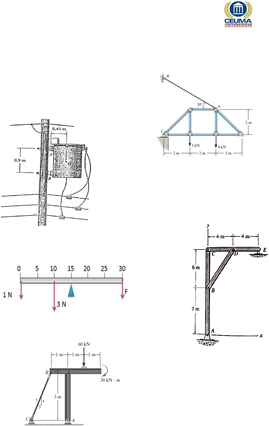
5ª) Cada um dos três elementos da estrutura 
tem massa por unidade de comprimento de 6 
kg/m. Localize a posição (x,y) do centro de 
gravidade. Despreze as dimensões dos pinos 
nas juntas e a espessura dos elementos. 
Calcule também as reações no pino A e no 
rolete E. 
 
 
 
 
 
 
 
 
 
 
 
 
 
 
 
 
 
 
 
 
6ª) A barragem de gravidade é feita de 
concreto. Determine a localização do centro de 
gravidade G para a parede. 
 
 
 
 
 
 
 
 
 
 
 
 
 
 
 
 
 
7ª) Localize o centroide y da seção transversal 
do pedestal. 
 
 
 
 
 
 
 
 
 
 
 
 
 
 
 
 
8ª) As placas de aço e alumínio estão 
montadas com parafusos e estão montadas 
com parafusos e estão presas na parede. Cada 
placa tem largura constante na direção z igual 
a 200 mm e espessura de 20 mm. Sendo as 
densidades de A e B iguais a ρaço = 7850 kg/m
3 
e, para C, ρal=2710 kg/m
3, determine a 
localização X do centro de massa. Despreze as 
dimensões dos parafusos. 
 
 
 
 
 
 
 
 
 
 
 
 
 
 
9ª) Localize o centróide (x,y,z) do fio. 
 
 
 
10ª) Localize o centróide (x,y,z) do fio que está 
dobrado na figura abaixo. 
 
 
 
 
 
 
 
 
 
 
 
 
11ª) A treliça composta de sete membros, cada 
um tendo uma massa por unidade de 
comprimento de 6kg/m. Localize a posição 
(x,y) do centro de massa. Despreze a massa 
das placas de ligação das juntas. 
 
 
 
12ª) Localize o centróide (x,y) da área da 
seção transversal do canal. 
 
 
13ª) Localize o centróide x da área composta 
da figura abaixo. 
 
 
 
14ª) Resolva a questão anterior para r0=5mm e 
ri=3mm. 
 
15ª) Localize o centróide x e y da área 
composta da figura a seguir. 
 
 
 
16ª) Determine o momento de inercia em 
relação ao eixo y da figura abaixo. 
 
 
17ª) Determine a distância y até o centróide da 
área da seção transversal da viga, depois 
encontre o momento de inércia em relação ao 
eixo x’. 
 
 
18ª) Determine o momento de inércia da área 
composta em relação aos eixos x e y.

Mais conteúdos dessa disciplina